ул. Колхозная, д. 20
-
- Member
- Сообщения: 88
- Зарегистрирован: 11 апр 2009 10:31
ул. Колхозная, д. 20
Тут же все написано: http://riakom.com/newbuildings/resident/k20
ул. Колхозная, д. 20
Смущает то, что будут строить этот дом в две очереди. И цена завышенная как мне кажется.
Дом П111м. Вроде чуть выше (на 5см) потолки должны быть по сравнению с соседними риакомовскими домами, зато 19 этажей и панели наверное просто покрашены будут снаружи. Мне больше нравится отделка плиткой, как в П3М. Считаю, что такие панели долговечнее.
По планировкам - не нравится мне узкий проход рядом с сортиром. Маловаты кухни (кроме трёшек в центральной секции). Кладовки совсем маленькие. В большинстве однушек неудобная комната. В целом жилая площадь тоже маловата. Много жилых комнат рядом со стояками канализационными, что тоже не есть гуд. Вид из окон не фонтанистый будет. В угловой секции, если окна выходят во внутрь, вообще лучше светонепроницаемые шторы вешать.
Дом П111м. Вроде чуть выше (на 5см) потолки должны быть по сравнению с соседними риакомовскими домами, зато 19 этажей и панели наверное просто покрашены будут снаружи. Мне больше нравится отделка плиткой, как в П3М. Считаю, что такие панели долговечнее.
По планировкам - не нравится мне узкий проход рядом с сортиром. Маловаты кухни (кроме трёшек в центральной секции). Кладовки совсем маленькие. В большинстве однушек неудобная комната. В целом жилая площадь тоже маловата. Много жилых комнат рядом со стояками канализационными, что тоже не есть гуд. Вид из окон не фонтанистый будет. В угловой секции, если окна выходят во внутрь, вообще лучше светонепроницаемые шторы вешать.

-
- Member
- Сообщения: 88
- Зарегистрирован: 11 апр 2009 10:31
ул. Колхозная, д. 20
Так материал не понятно какой будет, плитка, монолит или кирпич?
ул. Колхозная, д. 20
Вроде П111 - это просто крашеный бетон. Внутри наружных стен - утеплитель, разумеется. Внутренние стены и перекрытия- стандартные панели.beaver2002 писал(а):Так материал не понятно какой будет, плитка, монолит или кирпич?
А что, что-то не так?
-
- Member
- Сообщения: 88
- Зарегистрирован: 11 апр 2009 10:31
ул. Колхозная, д. 20
Как то странно новострой и такие маленькие кухни, от чего люди стараются бежать к тому же и возвращаются получается, и не понятны цены, еще даже котлована нет, а уже не дешево.
ул. Колхозная, д. 20
ребят,никто еще не купил тут?
ул. Колхозная, д. 20
На Садовой лучше возьмите. Цены там ещё нормалные. И сдадут быстрее, и дома ближе к транспорту, и планировки получше.Julianna писал(а):ребят,никто еще не купил тут?
Не без уважения, ваш Вольдемар Абрамович
ул. Колхозная, д. 20
Тут пока только бронируют (40-50 тыс. р., в зависимости от числа комнат в квартире). По словам менеджеров, после получения разрешения на строительство (ориентировочно в ноябре) еще с месяц займёт регистрация первого договора долевого участия. И только потом уже надо будет заносить деньги.Julianna писал(а):ребят,никто еще не купил тут?
ул. Колхозная, д. 20
Swedly
Aviator
спасибо
Aviator
спасибо
ул. Колхозная, д. 20
Подработка наборщиком текстов
удалено, бан
удалено, бан
-
- Member
- Сообщения: 88
- Зарегистрирован: 11 апр 2009 10:31
ул. Колхозная, д. 20
котлован там не роют еще, кто нибудь знает?
ул. Колхозная, д. 20
beaver2002
А на сайт новостройки слабо зайти и посмотреть довольно свежую фотографию, на которой имеется исчерпывающий ответ на Ваш вопрос?
А на сайт новостройки слабо зайти и посмотреть довольно свежую фотографию, на которой имеется исчерпывающий ответ на Ваш вопрос?
ул. Колхозная, д. 20
Ну так строить будут целый дом или половинку?
P.S. Пришлось снизить цены. Думаю, что на трёшки ещё придётся снижать, т.к. в соседнем доме предложение выгоднее по трёшкам
P.S. Пришлось снизить цены. Думаю, что на трёшки ещё придётся снижать, т.к. в соседнем доме предложение выгоднее по трёшкам
-
- Member
- Сообщения: 88
- Зарегистрирован: 11 апр 2009 10:31
ул. Колхозная, д. 20
вчера заходила, еще не было информации, спасибо что с ориентировали.vja4es1av писал(а):beaver2002
А на сайт новостройки слабо зайти и посмотреть довольно свежую фотографию, на которой имеется исчерпывающий ответ на Ваш вопрос?
ул. Колхозная, д. 20
Числа 11 декабря там экскаватор работал, но сколько раскопал мне не видно было из-за 7к2.beaver2002 писал(а):котлован там не роют еще, кто нибудь знает?
По поводу получения разрешения на строительство в этот раз сказали, что ждут до конца года.

Upd:
О, действительно, новости и свежие фотки появились!
-
- Member
- Сообщения: 88
- Зарегистрирован: 11 апр 2009 10:31
ул. Колхозная, д. 20
старт продаж начнется в марте, как получат все документы. вот.
ул. Колхозная, д. 20
Интересное дело.. А зачем тогда цены висят на сайте, если ничего не продаётся? Да ещё и уменьшаются периодически. Просто, чтобы лучше в соседнем доме брали что ли?beaver2002 писал(а):старт продаж начнется в марте, как получат все документы. вот.

-
- Member
- Сообщения: 88
- Зарегистрирован: 11 апр 2009 10:31
ул. Колхозная, д. 20
видимо цены висят для предварительного бронирования, но и возможно маркетинговый ход такой



ул. Колхозная, д. 20
И что же это за "маркетинговый ход", если приходится показывать всем, что цены падают? Какой-то неправильный маркетинговый ход получается. Лучше бы собрались с силами и стали бы строить целый дом, а не его половинку. Потому как не все поверят, что сдавать будут именно половинку дома, что несомненно скажется на ценах. Правда для этого ещё нужно расселить дома.beaver2002 писал(а):видимо цены висят для предварительного бронирования, но и возможно маркетинговый ход такой![]()
ул. Колхозная, д. 20
Дело там не в отсутствии сил, а в бумагах. Вопрос они решат, просто в один день дела не решаются у нас.Угрюмый писал(а):Лучше бы собрались с силами и стали бы строить целый дом, а не его половинку.
Так что не знаешь - лучше помолчи со своими прогнозами.


Там очень большой дом, то ли 7, то ли 8 секций. Вполне можно сдавать его частями. Как у РПК на Пионерской. Они сначала одну половину построили, а потом к нему же рядом пристраивают ещё две секции.Угрюмый писал(а):Потому как не все поверят, что сдавать будут именно половинку дома
Не без уважения, ваш Вольдемар Абрамович
ул. Колхозная, д. 20
Да ну?Aviator писал(а):Так что не знаешь - лучше помолчи со своими прогнозами.![]()
![]()


Не, ты опять не прав. Там 9 секций.Aviator писал(а):Там очень большой дом, то ли 7, то ли 8 секций. Вполне можно сдавать его частями. Как у РПК на Пионерской. Они сначала одну половину построили, а потом к нему же рядом пристраивают ещё две секции.

ул. Колхозная, д. 20
Конечно, лучше быть богатым и здоровым, чем бедным и больным.Угрюмый писал(а):лучше строить и продавать целый дом, чем его половинку

Не пиши просто глупостей про "собрались бы с силами". Они вполне готовы собраться, просто есть объективные обстоятельства, которые пока не дают возможности строить весь дом сразу.
Я ещё больше прав. В том, что такой большой дом можно сдавать частями.Угрюмый писал(а):Не, ты опять не прав. Там 9 секций.

Не без уважения, ваш Вольдемар Абрамович
ул. Колхозная, д. 20
Ну как же, как же. Вон, в ЖК Бородино "никому неизвестный застройщик" (как многие поначалу поднимали панику) строит сразу ТРИ дома и котельную. А тут такой "монстр", у которого уже несколько сданных домов прямо здесь же, и ещё три "в проекте" не может осилить строительство 9-подъездного дома. Как-то неубедительно будет выглядеть.Aviator писал(а):Не пиши просто глупостей про "собрались бы с силами". Они вполне готовы собраться, просто есть объективные обстоятельства, которые пока не дают возможности строить весь дом сразу.
"Обстоятельства" там небось стандартные - никто не хочет вкладываться даже на пару-тройку лет вперёд. Хотят побыстрее срочно начать строить очередной дом (ну хоть половинку), не сдав два дома рядом, и дом на Парковой. Точнее не строить хотят начать, а ПРОДАВАТЬ разумеется. Вот и все "объективные обстоятельства". СтарО как мир. Называются эти "объективные обстоятельства" - жадность и "срубить бабла здесь и сейчас".
Ага, больше правым по-моему уже быть просто невозможно!Угрюмый писал(а):Я ещё больше прав. В том, что такой большой дом можно сдавать частями.

Можно-то оно можно конечно. Но не факт, что так и будут делать. Это ещё "бабка надвое сказала". А вторую часть дома чтобы достроить - нужно ещё двухэтажки расселять. Накладно и долго. И теперь представь, если они не будут сдавать половинку дома, а будут сдавать целый - на сколько лет могут попасть счастливые инвесторы. Года на четыре запросто могут.
Ну и самое главное - ты "ещё меньше прав" в том, что так делать хорошо.

ул. Колхозная, д. 20
Нет, ты неправ. Там другие обстоятельства.Угрюмый писал(а):"Обстоятельства" там небось стандартные - никто не хочет вкладываться даже на пару-тройку лет вперёд
Можно и 11 лет строить, как некоторые у нас в городе. Только зачем гадать?Угрюмый писал(а):И теперь представь, если они не будут сдавать половинку дома, а будут сдавать целый - на сколько лет могут попасть счастливые инвесторы. Года на четыре запросто могут.

Не без уважения, ваш Вольдемар Абрамович
ул. Колхозная, д. 20
Рассказывай. А то пока как-то неубедительно звучит.Aviator писал(а):Нет, ты неправ. Там другие обстоятельства.

ул. Колхозная, д. 20
Угрюмый
Мне их озвучивали не для того, чтобы я их озвучивал тебе. Там ничего криминального, просто я ж не трепло.
Можешь сходить в господину Дьякову и пообщаться. Тем более, ты его клиент. С радостью примет. Он в конторе на Садовой обычно по понедельникам и четвергам бывает.
Мне их озвучивали не для того, чтобы я их озвучивал тебе. Там ничего криминального, просто я ж не трепло.

Можешь сходить в господину Дьякову и пообщаться. Тем более, ты его клиент. С радостью примет. Он в конторе на Садовой обычно по понедельникам и четвергам бывает.

Не без уважения, ваш Вольдемар Абрамович
ул. Колхозная, д. 20
Во-первых, откуда тебе знать, для чего их тебе озвучивали. Этот вопрос находится в компетенции того, кто озвучивает, а не того, кому озвучивают.Aviator писал(а):Угрюмый Мне их озвучивали не для того, чтобы я их озвучивал тебе. Там ничего криминального, просто я ж не трепло.![]()

А во-вторых, раз уж сказал "А", говори и "Б" тогда уже. А уж криминал там или нет - каждый решит для себя сам.

По-моему это всё-таки стандартное желание "понадкусывать" побольше с целью максимизации сиюминутной прибыли.

Ну несолидно строить половинку дома и убеждать всех, что это здорово и они её сдадут очень быстро, а рядом ещё несколько лет "почти не будет шума и грязи". Несерьёзный подход.
ул. Колхозная, д. 20
Сейчас уже говорят, что разрешение на строительство ждут в середине марта, а в конце марта - начале апреля начнут собирать деньги.
А пока неспешно работают - рабочих, вроде немного, но даже в выходные что-то делают.
А пока неспешно работают - рабочих, вроде немного, но даже в выходные что-то делают.
ул. Колхозная, д. 20
Всем привет.
сейчас стоимость квадратного метра маленькой однушки = 69 тыр
Каково ваше мнение, перед госкомиссией стоимость около 90 тыс руб - реальна для такой квартиры?
и насколько велика вероятность того, что уважаемый Диском доведет строительство до госкомиссии?
Заранее спасибо.
сейчас стоимость квадратного метра маленькой однушки = 69 тыр
Каково ваше мнение, перед госкомиссией стоимость около 90 тыс руб - реальна для такой квартиры?
и насколько велика вероятность того, что уважаемый Диском доведет строительство до госкомиссии?
Заранее спасибо.
ул. Колхозная, д. 20
Сегодня позвонили из Риакома и сказали, что дом будут сдавать не в две очереди, а целиком: сдача - 4-й квартал 2015-го, ключи - начало 2016-го года.
Деньги будут собирать с конца марта, после получения разрешения на строительство, как и обещали, но можно принести сейчас и получить скидку 5% от цены указанной в договоре бронирования.
Деньги будут собирать с конца марта, после получения разрешения на строительство, как и обещали, но можно принести сейчас и получить скидку 5% от цены указанной в договоре бронирования.

- Mikhail_Podolsk
- Advanced Member
- Сообщения: 263
- Зарегистрирован: 28 окт 2013 13:50
ул. Колхозная, д. 20
Вы планируете получать скидку?Swedly писал(а):Сегодня позвонили из Риакома и сказали, что дом будут сдавать не в две очереди, а целиком: сдача - 4-й квартал 2015-го, ключи - начало 2016-го года.
Деньги будут собирать с конца марта, после получения разрешения на строительство, как и обещали, но можно принести сейчас и получить скидку 5% от цены указанной в договоре бронирования.
ул. Колхозная, д. 20
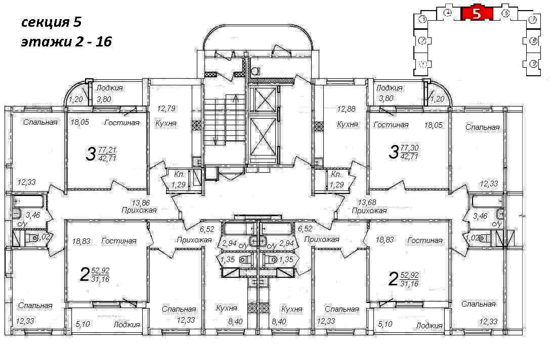
На сайте Риакома выложили новые планировки. Что странно: раньше по этим планировкам дом был переменной этажности (17-19 этажей), а сейчас - все секции 16 этажей.
ул. Колхозная, д. 20
16 этажей - это лучше, чем 19. Планировки вроде те же, т.к. разделить санузел и самому можно.
Лучше бы они нашли в себе силы строить сразу весь дом, а не по половинкам
Лучше бы они нашли в себе силы строить сразу весь дом, а не по половинкам
ул. Колхозная, д. 20
Угрюмый
там проблемо. они старые дома снести не могут. На сайте администрации есть обращение и ответ на него:
Вопрос: По улице Колхозная есть дом №30, который выселили еще летом 2013 года, и он теперь стоит как дом-призрак. Мимо него в темное время суток страшно ходить, отсутствует уличное освещение. Местные жители из него превратили в помойку, а бомжи - место для посиделок. Перед Новым годом в нем кто-то устроил пожар. Вокруг него уже началось строительство нового дома, а его не сносят. Пожалуйста, примите меры по его сносу. Спасибо!!! Рядом с этим домом есть здание бывшего магазина. По вечерам его растаскивают на стройматериалы. Его тоже не сносят. Что с ним будет?
Ответ: По информации инвестора застройщика ООО «Диском» в настоящее время ведется работа по оформлению документов по перерегистрации жителей, из жилых домов №№ 30, 32 по ул. Колхозная, после снятия с учета граждан проживающих в данных домах, строения будут снесены.
Двухэтажное здание по адресу: г. Подольск, ул. Колхозная, д. 28, где был размещен магазин, находится на развиваемой территории микрорайона «Красная горка», но не входит в перечень жилых домов попадающих под переселение. Данное строение с прилегающим земельным участком находится в частной собственности ООО «Нико».
В настоящее время инвестор-застройщик ООО «Диском» проводит переговоры по выкупу данного строения и земельного участка, для освобождения территории под строительство многоэтажного, 6-ти секционного, многоквартирного жилого дома.
Планируемый срок сноса домов-февраль 2014 года.
там проблемо. они старые дома снести не могут. На сайте администрации есть обращение и ответ на него:
Вопрос: По улице Колхозная есть дом №30, который выселили еще летом 2013 года, и он теперь стоит как дом-призрак. Мимо него в темное время суток страшно ходить, отсутствует уличное освещение. Местные жители из него превратили в помойку, а бомжи - место для посиделок. Перед Новым годом в нем кто-то устроил пожар. Вокруг него уже началось строительство нового дома, а его не сносят. Пожалуйста, примите меры по его сносу. Спасибо!!! Рядом с этим домом есть здание бывшего магазина. По вечерам его растаскивают на стройматериалы. Его тоже не сносят. Что с ним будет?
Ответ: По информации инвестора застройщика ООО «Диском» в настоящее время ведется работа по оформлению документов по перерегистрации жителей, из жилых домов №№ 30, 32 по ул. Колхозная, после снятия с учета граждан проживающих в данных домах, строения будут снесены.
Двухэтажное здание по адресу: г. Подольск, ул. Колхозная, д. 28, где был размещен магазин, находится на развиваемой территории микрорайона «Красная горка», но не входит в перечень жилых домов попадающих под переселение. Данное строение с прилегающим земельным участком находится в частной собственности ООО «Нико».
В настоящее время инвестор-застройщик ООО «Диском» проводит переговоры по выкупу данного строения и земельного участка, для освобождения территории под строительство многоэтажного, 6-ти секционного, многоквартирного жилого дома.
Планируемый срок сноса домов-февраль 2014 года.