летучка писал(а):papa_jons
Это если работа на Летуале каком-нибудь. А то можно и полчаса идти.
я вот все спрашиваю в разных темах, а никто так и не откликается
неужели никого не волнует, что же все таки строят на Знамя за Рязановским шоссе?

летучка писал(а):papa_jons
Это если работа на Летуале каком-нибудь. А то можно и полчаса идти.
переехал и уже работает, сегодня там быллетучка писал(а):Нужна точная информация переехал он или как...
Переехал. Есть на сайте.летучка писал(а):Нужна точная информация переехал он или как... На сайте банка ее нет.
Отделение Сбербанка осталось подольскимsr.drag писал(а):Москва ху..ли_)))!!!


А к чему тут, на подольском форуме нужна эта тема, если это уже Москва?гоша писал(а):хлопушка
к чему было мусорить здесь,если и карта и расписание есть на Подольск ру?
я не так давно живу там и до сих пор путаюсь в нумерациях домов - мне например удобно )))bvz rfr bvz писал(а):А к чему тут, на подольском форуме нужна эта тема, если это уже Москва?гоша писал(а):хлопушка
к чему было мусорить здесь,если и карта и расписание есть на Подольск ру?

Удобно путаться?хлопушка писал(а): я не так давно живу там и до сих пор путаюсь в нумерациях домов - мне например удобно )))
http://www.podolsk.ru/news/n19485.htmlВ минувшую среду состоялась встреча главы администрации поселения Рязановское Николая Бобылева с жителями поселка Знамя Октября. Она началась со знакомства жителей с новым главой администрации поселения, который вступил в должность 10 декабря 2014 года.
Встреча была тематической: управляющая компания УК «Стимул» отчитывалась перед жителями об итогах работы за минувший год. С докладом о проделанной работе и планах на ближайшую перспективу рассказал исполнительный директор УК «Стимул» Леча Гайтукаев.
Управляющей компанией осуществляется содержание 84 многоквартирных жилых домов на территории поселения, предоставление коммунальных услуг, очистка от снега и наледи кровель и пешеходных дорожек внутри поселка, ремонт входных групп и цоколей.
Самыми популярными вопросами, которые волнуют жителей, по-прежнему являются ремонт многоквартирных домов, утепление торцевых стен, ремонт подъездов, благоустройство и развитие территории. На вопросы, ответы на которые жители не получили непосредственно на встрече с главой, будут рассмотрены, отработаны и даны ответы.
Глава администрации Николай Бобылев предложил жителям активно участвовать в жизни поселения, высказывать свои предложения по улучшению жизни конкретных домов и поселков.
Встречи главы администрации с населением запланированы один раз в месяц. Объявления о времени и месте их проведения размещаются на официальном сайте органов местного самоуправления поселения Рязановское, информационных стендах в поселках. Также можно узнать информацию об очередной встрече в администрации поселения Рязановское по номеру (495) 867-87-80.
http://ryazanovskoe.ru20 мая 2015 года в 19.00 в сквере ветеранов поселка Знамя Октября прошла встреча главы администрации поселения Рязановское Николая Бобылева с населением поселка Знамя Октября. На встрече присутствовало более 30 человек. Первый заместитель главы администрации Валерий Мазур ознакомил присутствующих с планом мероприятий по комплексному благоустройству территории поселка Знамя Октября на 2015 год.
Затем обсуждались актуальные для жителей вопросы. В частности, жители интересовались приведением в надлежащий порядок площадок для мусора, освещением придомовых территорий, устройством дополнительных детских площадок и приведением существующих малых архитектурных форм в соответствующий вид, а также размещением на детских площадках табличек о запрете выгула собак. Особенно жителей волновала проблема парковок для личного автотранспорта и обустройство тротуаров.
Все заданные вопросы взяты под личный контроль главой администрации поселения Рязановское.
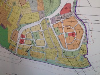
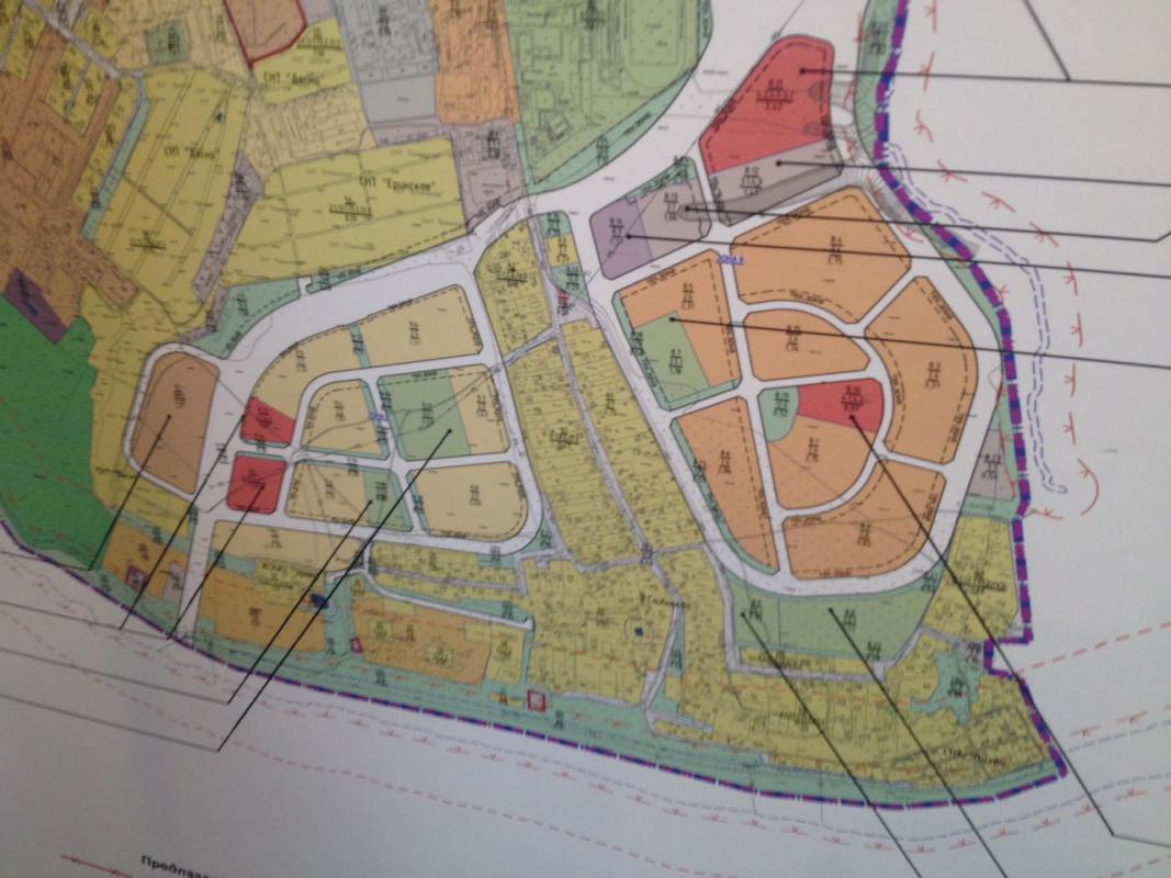
http://ryazanovskoe.ru/novosti/18086/В поселении Рязановское открылась экспозиция по материалам публичных слушаний
Сегодня, 9 декабря, в СКЦ «Пересвет» открылась экспозиция по материалам публичных слушаний, которые состоятся в поселении Рязановское 22 декабря.
На экспозиции представлены два проекта развития территории поселения. Один из них – проект планировки территории в районе с. Остафьево, п. Никульское, д. Рязаново, п. Фабрики им. 1 мая, д. Рыбино, д. Армазово и д. Студенцы поселения Рязановское Новомосковского административного округа города Москвы, второй – проект планировки территории вблизи пос. Знамя Октября и д. Девятское поселения Рязановское, Воскресенское Новомосковского административного округа города Москвы.
В первые часы работы экспозиции ее посетили более 50 человек, в том числе депутаты Совета депутатов поселения Рязановское.
На экспозиции работают консультанты по ознакомлению с проектами планировки.
Напомним, что экспозиция по материалам публичных слушаний проходит с 9 по 15 декабря по адресу пос. Знамя Октября, д. 31, стр. 3, в холле 2-го этажа СКЦ «Пересвет». Часы работы в будние дни с 10.00 до 17.00, в выходные с 10.00 до 12.00.

http://mkr-rodniki.ru/forum/5-12274-37Уважаемые соседи!
В адрес инициативной группы от г. Петрова поступило следующее предложение. Он предлагает не трогать забор, но путем переноса шлагбаумов и КПП внутрь микрорайона сделать часть территории микрорайона вдоль 8, 9 и 10 домов открытой для общего доступа с размещением на ней парковки для посетителей магазинов и иных лиц.
Любой перенос незаконен без решения Общего Собрания Собственников и последующего утверждения Советом депутатов нашей администрации.
Есть опасения, что эти незаконные действия приведет к дальнейшим, незаконным перепланировкам территории района со стороны собственников нежилых помещений.
Мы предлагаем узаконить ограждения микрорайона согласно действующему законодательству РФ. На общем Собрании Собственников будут вынесены варианты по ограждению мкр. Родники. Предварительное голосование пройдет в этой группе, чтобы понимать настрой жителей и завтра донести его до Петрова.
Сделай свой выбор: 1 или 2 (без эмоций, все обсуждения в группе для обсуждения)
1-план Петрова: создание парковки для посетителей магазина+перенос шлагбаумов, а как следствие, открытие части территории микрорайона для общего доступа;
2- план инициативной группы: сохранение микрорайона в нынешних границах
Виталий Семенов освобожден от должности заместителя префекта Троицкого и Новомосковского административных округов столицы. Соответствующее распоряжение подписал мэр Москвы Сергей Собянин.
«Освободить В.Семенова от замещаемой должности заместителя префекта Троицкого и Новомосковского административных округов Москвы и уволить с государственной гражданской службы Москвы по собственной инициативе», — говорится в документе.
На должность заместителя префекта Троицкого и Новомосковского административных округов Виталий Семенов был назначен в июле 2015 года. Соответствующее сообщение было опубликовано на официальном портале мэра и правительства столицы. С Виталием Семеновым был заключен контракт сроком н 5 лет.
Ранее Виталий Анатольевич занимал должность заместителя префекта Южного административного округа Москвы. Он курировал вопросы промышленности, науки, малого предпринимательства и взаимодействия с правоохранительными органами.
http://ryazanovskoe.ru/Как Вы считаете, где на территории поселения Рязановское лучше проводить массовое праздничное мероприятие, посвященное Дню Победы?
Площадь СКЦ «Пересвет», поселок Знамя Октября - 40 (47.62%)
Музей-усадьба «Остафьево» - «Русский Парнас», село Остафьево - 14 (16.67%)
https://dobrodel.tv/uploads/monthly_201 ... d283c.jpegг.Москва,ТиНАО,поселение Рязановское,деревня Андреевское.
Добрый день!
Коллективное заявление ( жалоба) общего собрания жителей деревни Андреевское, поселения Рязановское , г. Москвы, в лице председателя деревни Соколова Виктора Михайловича
Доводим до вашего сведения, что на краю деревни Андреевское, в природоохранной зоне реки Десна ,В ТЕЧЕНИИ ПОЛУТОРА ЛЕТ происходит отсыпка мусора.За этот период завезено 15.000 м3 мусора и завоз продолжается.
НЕ СМОТРЯ НА НАШИ МНОГОЧИСЛЕННЫЕ ОБРАЩЕНИЯ ,ПРЕФЕКТУРА ,ОАТИ, ДПП и ООС, Межрайонная Природоохранная прокуратура, Прокуратура ТиНАО,Гос Инспекция по контролю за использованием объектов недвижимости по г. Москве ,НИКАК НЕ РЕАГИРУЮТ НА СЛОЖИВШУЮСЯ СИТУАЦИЮ.
В связи с тем , что процесс загрязнения природоохранной территории производится очень быстрыми темпами, просим вас СРОЧНО принять меры по данному вопросу.
С уважением,
Общее собрание жителей д. Андреевское , Председатель Виктор Михайлович 8 985 726 50 62 D.ANDREEVSKOE@MAIL.RU
https://dobrodel.tv/topic/45203-загрязн ... еки-десна/

За год ?Yury писал(а):за год построили новое здание детского сада

там пока даже коммуникации не подвели, вот сейчас ведут - перекрыли двор воле почтыЛЮЛЮША писал(а):построить то построили ,но внутри еще не полностью произвели отделку. и площадку вокруг садика ни как домучать не могут
дорогу раскопали не из-за садика.в садике уже давно трубы все закапали и электро щитовую поставили. обещали оба садика сдать к 1 сентябрю ( но один садик уже точно не откроется, там даже родителям сказали что с 1 сентября будут возить детей на фабрику), а со вторым пока не понятно-но кажется тоже не успеют(хотя как они могут успеть когда днем там не видно ни одного человека).Zaxarov писал(а):там пока даже коммуникации не подвели, вот сейчас ведут - перекрыли двор воле почтыЛЮЛЮША писал(а):построить то построили ,но внутри еще не полностью произвели отделку. и площадку вокруг садика ни как домучать не могут

посмотри, куда ведёт траншея ))) в садике закопали, на дороге раскопалиЛЮЛЮША писал(а):дорогу раскопали не из-за садика.в садике уже давно трубы все закапалиZaxarov писал(а):там пока даже коммуникации не подвели, вот сейчас ведут - перекрыли двор воле почтыЛЮЛЮША писал(а):построить то построили ,но внутри еще не полностью произвели отделку. и площадку вокруг садика ни как домучать не могут