ЖК "Весенний"

Tatyana Klychkova
New member
New member
Сообщения: 33
Зарегистрирован: 18 фев 2014 11:56

ЖК "Весенний"

Сообщение Tatyana Klychkova »

Вико писал(а): Вчера звонила застройщику 8 (495) 221-11-34, попросила скинуть проектные размеры нашей квартиры. Скинули в течении 10 минут на элект. почту.
Спасибо! :oops:
1 корпус, 6 секция
Anatoly
Advanced Member
Advanced Member
Сообщения: 444
Зарегистрирован: 03 мар 2012 19:45

ЖК "Весенний"

Сообщение Anatoly »

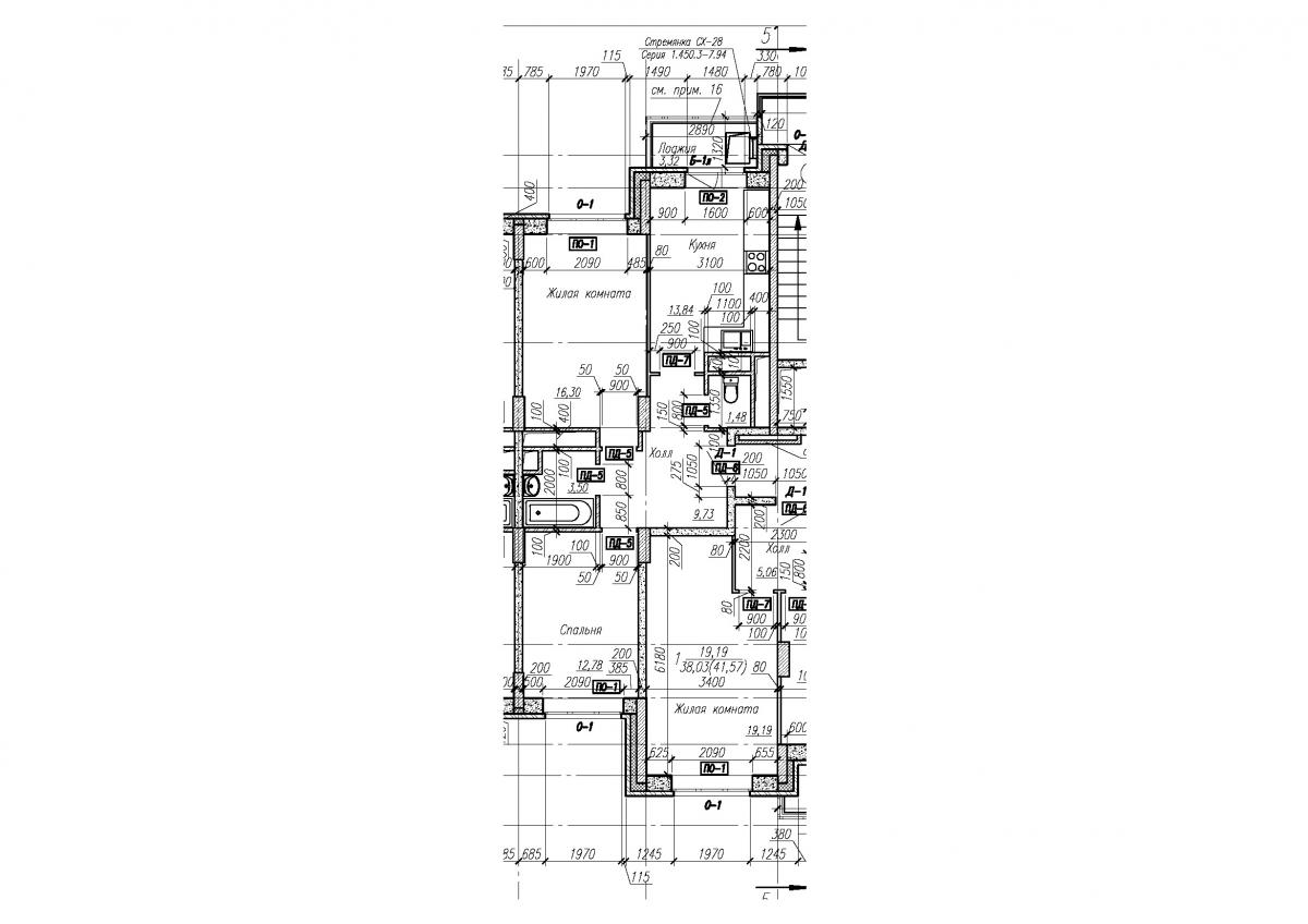
Кому интересно - размеры двушки 61,4 кв.м:
кв 152.jpg
udjin333
New member
New member
Сообщения: 34
Зарегистрирован: 12 фев 2014 09:40

ЖК "Весенний"

Сообщение udjin333 »

Tatyana474 писал(а):
Вико писал(а): Вчера звонила застройщику 8 (495) 221-11-34, попросила скинуть проектные размеры нашей квартиры. Скинули в течении 10 минут на элект. почту.
Спасибо! :oops:
Позвонил по данному номеру, мне отказали не в очень мягкой форме, звякнул в Азбуку жилья, мне сказали что у них размеров нет, предложили приехать на объект с рулеткой и померить, но на сколько я понял, мереть на объекте не разрешают, получается замкнутый круг????
udjin333
New member
New member
Сообщения: 34
Зарегистрирован: 12 фев 2014 09:40

ЖК "Весенний"

Сообщение udjin333 »

Anatoly писал(а):Кому интересно - размеры двушки 61,4 кв.м:
кв 152.jpg
А есть у кого ни будь первый корпус 7 секция или второй корпус 1 или 6 секция ? мне интересна длинна комнаты.
Anatoly
Advanced Member
Advanced Member
Сообщения: 444
Зарегистрирован: 03 мар 2012 19:45

ЖК "Весенний"

Сообщение Anatoly »

udjin333 писал(а):
Tatyana474 писал(а):
Вико писал(а): Вчера звонила застройщику 8 (495) 221-11-34, попросила скинуть проектные размеры нашей квартиры. Скинули в течении 10 минут на элект. почту.
Спасибо! :oops:
Позвонил по данному номеру, мне отказали не в очень мягкой форме, звякнул в Азбуку жилья, мне сказали что у них размеров нет, предложили приехать на объект с рулеткой и померить, но на сколько я понял, мереть на объекте не разрешают, получается замкнутый круг????
Попробуйте позвонить по этому телефону - 8 800 250-77-66 и скажите чтобы соединили с отделом продаж. Только сегодня им звонил и где-то часа через 2 выслали на почту размеры.
Anatoly
Advanced Member
Advanced Member
Сообщения: 444
Зарегистрирован: 03 мар 2012 19:45

ЖК "Весенний"

Сообщение Anatoly »

И может те, кто уже получил проектные размеры - здесь выложат файлы по типовым размерам квартир, чтобы каждому не звонить застройщику.
Вико
Member
Member
Сообщения: 135
Зарегистрирован: 08 май 2013 19:21

ЖК "Весенний"

Сообщение Вико »

А как файл pdf тут прикрепить?
корпус 2 секция 6
udjin333
New member
New member
Сообщения: 34
Зарегистрирован: 12 фев 2014 09:40

ЖК "Весенний"

Сообщение udjin333 »

Вико писал(а):А как файл pdf тут прикрепить?
Можно развернуть на весь экран и сделать прин скрин
Аватара пользователя
marisha888
New member
New member
Сообщения: 68
Зарегистрирован: 11 мар 2013 23:00

ЖК "Весенний"

Сообщение marisha888 »

есть 1 корпус 2 секция автокад
Anatoly
Advanced Member
Advanced Member
Сообщения: 444
Зарегистрирован: 03 мар 2012 19:45

ЖК "Весенний"

Сообщение Anatoly »

Вико писал(а):А как файл pdf тут прикрепить?
Pdf не прикрепляет - в adobe сохраните его как .jpg
телец
Member
Member
Сообщения: 188
Зарегистрирован: 24 окт 2013 00:08

ЖК "Весенний"

Сообщение телец »

Анатолий, спасибо за размеры! :5+: ...на плане и моя "однушка" поместилась)
antonkol
Out of range
Out of range
Сообщения: 3
Зарегистрирован: 24 фев 2014 21:19

ЖК "Весенний"

Сообщение antonkol »

Подскажите,кто покупал у КАПИТАЛА по договору уступки,деньги когда оплачивали?
Elisson
New member
New member
Сообщения: 57
Зарегистрирован: 06 янв 2014 18:17

ЖК "Весенний"

Сообщение Elisson »

antonkol, я покупала у Капитала, оплатила в день подписания договора уступки (без оплаты они договор на регистрацию не подают).
Аватара пользователя
Diyakon_Frost
Member
Member
Сообщения: 168
Зарегистрирован: 31 авг 2010 09:26

ЖК "Весенний"

Сообщение Diyakon_Frost »

marisha888 писал(а):
Diyakon_Frost писал(а):Я читал что многие уже прошли на осмотр квартир в корпус 1
Расскажите к кому вы подходили и под каким предлогом? (я догадываюсь - хочу купить - покажите)
Хочу померить однушку 41,5 км2
А и что точно стало известно что они возводят теперь межкомнатные стены?

Мы с женой приобрели там квартиру в 1к 2п 9э 111кв (кстати соседи отзовитесь если читаете давайте знакомиться :) пока что на форуме)
Здравствуйте,какие размеры вас интересуют? про межкомнатные перегородки обсуждали в сентябре-октябре...страниц 30-35 назад....там даже фото были
Спасибо...
На стр. 40 нашел ваши фото квартирки
У вас случайно не однушка тоже 41,5 (очень похожа) ?
Про размеры: Ну хотел бы воссоздать квартиру в какой нибудь программке для это нужна длины и ширине стен... (Хотя бы узнаем примерно во сколько ремонт нам выльется и насколько затянется, ну и какой примерно мы хотим видеть квартирку)
Аватара пользователя
marisha888
New member
New member
Сообщения: 68
Зарегистрирован: 11 мар 2013 23:00

ЖК "Весенний"

Сообщение marisha888 »

Diyakon_Frost писал(а):
marisha888 писал(а):
Diyakon_Frost писал(а):Я читал что многие уже прошли на осмотр квартир в корпус 1
Расскажите к кому вы подходили и под каким предлогом? (я догадываюсь - хочу купить - покажите)
Хочу померить однушку 41,5 км2
А и что точно стало известно что они возводят теперь межкомнатные стены?

Мы с женой приобрели там квартиру в 1к 2п 9э 111кв (кстати соседи отзовитесь если читаете давайте знакомиться :) пока что на форуме)
Здравствуйте,какие размеры вас интересуют? про межкомнатные перегородки обсуждали в сентябре-октябре...страниц 30-35 назад....там даже фото были
Спасибо...
На стр. 40 нашел ваши фото квартирки
У вас случайно не однушка тоже 41,5 (очень похожа) ?
Про размеры: Ну хотел бы воссоздать квартиру в какой нибудь программке для это нужна длины и ширине стен... (Хотя бы узнаем примерно во сколько ремонт нам выльется и насколько затянется, ну и какой примерно мы хотим видеть квартирку)
да однушка 41,5...есть чертеж секции в автокаде
Аватара пользователя
Diyakon_Frost
Member
Member
Сообщения: 168
Зарегистрирован: 31 авг 2010 09:26

ЖК "Весенний"

Сообщение Diyakon_Frost »

marisha888 писал(а): Спасибо...
На стр. 40 нашел ваши фото квартирки
У вас случайно не однушка тоже 41,5 (очень похожа) ?
Про размеры: Ну хотел бы воссоздать квартиру в какой нибудь программке для это нужна длины и ширине стен... (Хотя бы узнаем примерно во сколько ремонт нам выльется и насколько затянется, ну и какой примерно мы хотим видеть квартирку)
да однушка 41,5...есть чертеж секции в автокаде[/quote]


Дайте дайте дайте :D
Скинте пожалуйста на почту
Последний раз редактировалось Diyakon_Frost 03 мар 2014 11:23, всего редактировалось 1 раз.
Аватара пользователя
MarsGaspar
Member
Member
Сообщения: 207
Зарегистрирован: 02 авг 2013 12:42

ЖК "Весенний"

Сообщение MarsGaspar »

Если кто будет однушку 44.8 запрашивать, закинтье в личку.
Когда интересно закроют дорогу? Который день езжу, все открыто, хотя яндекс упорно показывает перекрытия, но все давно знают, что он еще тот врунишка :D
Аватара пользователя
Svetik N
Member
Member
Сообщения: 153
Зарегистрирован: 02 авг 2013 16:25

ЖК "Весенний"

Сообщение Svetik N »

У кого есть размеры двушки 2 корпус 59,9 ????? выложите пожалуйста!!!
2к.1сек 8эт
Kanistra
Advanced Member
Advanced Member
Сообщения: 288
Зарегистрирован: 12 фев 2014 13:35

ЖК "Весенний"

Сообщение Kanistra »

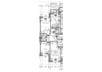
Это однушка 44,8 - 2 корпус 1 секция Изображение
Аватара пользователя
MarsGaspar
Member
Member
Сообщения: 207
Зарегистрирован: 02 авг 2013 12:42

ЖК "Весенний"

Сообщение MarsGaspar »

Kanistra

Спасибо!!!
Ppave
New member
New member
Сообщения: 10
Зарегистрирован: 09 авг 2013 12:40

ЖК "Весенний"

Сообщение Ppave »

Добрый день. А у кого есть размеры однушки 44.8 , та что в 1 корпусе 7 секция?
Kanistra
Advanced Member
Advanced Member
Сообщения: 288
Зарегистрирован: 12 фев 2014 13:35

ЖК "Весенний"

Сообщение Kanistra »

Все однушки 44,8 одинаковые. Мы, например, купили во втором корпусе, но нас водили смотреть на квартиру в первом корпусе 7 секции, т.к. во втором корпусе еще на тот момент перегородок нигде не было.
Таисия
Advanced Member
Advanced Member
Сообщения: 423
Зарегистрирован: 01 дек 2010 09:29

ЖК "Весенний"

Сообщение Таисия »

sv.kos писал(а):У кого есть размеры двушки 2 корпус 59,9 ????? выложите пожалуйста!!!
почту в ЛС сброшу....2 корпус,1 секция, двушка 59,9
udjin333
New member
New member
Сообщения: 34
Зарегистрирован: 12 фев 2014 09:40

ЖК "Весенний"

Сообщение udjin333 »

Ppave писал(а):Добрый день. А у кого есть размеры однушки 44.8 , та что в 1 корпусе 7 секция?
А в чем у них разница? :D :D :D
Вирус
Out of range
Out of range
Сообщения: 1
Зарегистрирован: 01 мар 2014 12:25

ЖК "Весенний"

Сообщение Вирус »

Доброго дня.
Встречайте нового соседа
Кор 1 сек 5 эт 2 кв 3 на площадке
Dachnik
Out of range
Out of range
Сообщения: 1
Зарегистрирован: 01 мар 2014 12:44

ЖК "Весенний"

Сообщение Dachnik »

Добрый день,форумчане! в понедельник собираюсь начать покупку квартиры 547 во втором корпусе,подскажите какие подводные камни могут ожидать,может соседи объявятся...
BLOND76
Member
Member
Сообщения: 173
Зарегистрирован: 10 дек 2013 15:50

ЖК "Весенний"

Сообщение BLOND76 »

Тропарь писал(а):Оу, товарищи, грязи льёте больше, чем грузовики со стройки вывозят на колесах.
Прекратите срач ) что ни страница - так негатив. Высказались, хватит. Оставьте форум для жильцов и тех, кто в перспективе видит себя жильцом. Советовать, вернее хаять, на каждой странице - попугая удел, твердить фразы одни. Кто Ищет информацию, тот прочтет ВСЮ ветку, и выводы свои сделает.
Не нравится - не лезьте, если вы уж такие сердобольные, то лучше энергию направьте в помощь животным и сироткам, им она нужнее будет.
Поддерживаю! Правильно говоришь!))))
Чтобы в старости не мерзнуть от мороза.... Нельзя дышать прохладой на детей....
Аватара пользователя
chestoy-ili-ment
Advanced Member
Advanced Member
Сообщения: 465
Зарегистрирован: 24 ноя 2013 15:37

ЖК "Весенний"

Сообщение chestoy-ili-ment »

Таисия писал(а):
sv.kos писал(а):У кого есть размеры двушки 2 корпус 59,9 ????? выложите пожалуйста!!!
почту в ЛС сброшу....2 корпус,1 секция, двушка 59,9
А размеров трёшки у вас случайно нет? 79,1 кв.м... :oops: :)
Таисия
Advanced Member
Advanced Member
Сообщения: 423
Зарегистрирован: 01 дек 2010 09:29

ЖК "Весенний"

Сообщение Таисия »

chestoy-ili-ment писал(а):
Таисия писал(а):
sv.kos писал(а):У кого есть размеры двушки 2 корпус 59,9 ????? выложите пожалуйста!!!
почту в ЛС сброшу....2 корпус,1 секция, двушка 59,9
А размеров трёшки у вас случайно нет? 79,1 кв.м... :oops: :)
:) нет,на трешку как то денег не хватило....
Аватара пользователя
chestoy-ili-ment
Advanced Member
Advanced Member
Сообщения: 465
Зарегистрирован: 24 ноя 2013 15:37

ЖК "Весенний"

Сообщение chestoy-ili-ment »

Люди,кто мимо Весеннего ездит, сделайте плиз фотки первого корпуса со стороны дороги. Давно что-то свежих нет. :( На ВСН только какие-то обрезки фоток , крыша и окрестности :)
ЗастроЙЩЕГ
Out of range
Out of range
Сообщения: 4
Зарегистрирован: 02 мар 2014 16:30

ЖК "Весенний"

Сообщение ЗастроЙЩЕГ »

Доброго времени суток Вам товарищи приобредшие жилье и сочувствующие! Давайте знакомиться, я буду для Вас консультантом по всем проблемам (насущным и не только)
ЗастроЙЩЕГ
Out of range
Out of range
Сообщения: 4
Зарегистрирован: 02 мар 2014 16:30

ЖК "Весенний"

Сообщение ЗастроЙЩЕГ »

http://www.жк-весенний.рф/fotogalereya/aktualnoe-sostoyanie-korpusa-1.html

там на конец января, есть более свежие фото, давайте адрес, скину на почту
Elisson
New member
New member
Сообщения: 57
Зарегистрирован: 06 янв 2014 18:17

ЖК "Весенний"

Сообщение Elisson »

Уважаемый, ЗастроЙЩЕГ! Если у Вас есть свежие фото выложите их пожалуйста здесь на всеобщее обозрение и желательно фото не только первого корпуса, но и второго!
Аватара пользователя
chestoy-ili-ment
Advanced Member
Advanced Member
Сообщения: 465
Зарегистрирован: 24 ноя 2013 15:37

ЖК "Весенний"

Сообщение chestoy-ili-ment »

ЗастроЙЩЕГ писал(а):http://www.жк-весенний.рф/fotogalereya/aktualnoe-sostoyanie-korpusa-1.html

там на конец января, есть более свежие фото, давайте адрес, скину на почту
На конец января уже совсем не актуальное состояние ;) , в первом корпусе уже остекление до 17 этажа и лоджии стеклить начали :5+: , а фотки 1,5 -месячной "свежести" всё висят
Аватара пользователя
chestoy-ili-ment
Advanced Member
Advanced Member
Сообщения: 465
Зарегистрирован: 24 ноя 2013 15:37

ЖК "Весенний"

Сообщение chestoy-ili-ment »

Elisson писал(а):Уважаемый, ЗастроЙЩЕГ! Если у Вас есть свежие фото выложите их пожалуйста здесь на всеобщее обозрение и желательно фото не только первого корпуса, но и второго!
Через пару недель будем в тех местах, пощелкаю оба корпуса, если раньше кто-нибудь не выложит :)
Ответить

Вернуться в «Новостройки города»