Перепланировка квартиры в Подольске
Перепланировка в кредитной квартире
БТИ, мэру и комиссии абсолютно всё равно, как Вы купили квартиру. Они согласовывают перепланировку по запросу собственника помещения. Подавайте документы как обычно. Проблемы с банком возникнут, только если они как-то об этом узнают. Например, будет возврат залога или Вы сами им сообщите. Если что, будете разбираться с банком сами.
Узаконить после выплаты кредита - к стандартной процедуре согласования добавляется суд.
А вообще, есть уже тут тема про перепланировку, воспользуйтесь поиском и почитайте.
Узаконить после выплаты кредита - к стандартной процедуре согласования добавляется суд.
А вообще, есть уже тут тема про перепланировку, воспользуйтесь поиском и почитайте.
Не без уважения, ваш Вольдемар Абрамович
Перепланировка в кредитной квартире
Тему нашёл, в "ремонте и дизайне". Читал её уже, не помню, рассматривался ли там подобный моему пример, посмотрю ещё раз позже.
Просто у меня был уже один случай подобный - в старой хрущёвке разломали шиферные стены старой кабины санузла и срезали металлический каркас, вместо них поставили стены из блоков, но при этом сделали дверь в санузел наискосок, ну как если на виде сверху отпилить у квадрата один угол. При приватизации квартиры приходила комиссия из БТИ, в общем, я уже плохо всё это помню, т.к. мать всей этой канителью занималась, но итог был такой, что без особой беготни мы были вызваны в суд, где нам зачитали итог, смыслом которого было то, что перепланировку узаконили, а оплатить пришлось только какие-то судебные и т.п. пошлины.
Вот меня и интересует, какова будет эта процедура сейчас?
Я не могу остановить ремонт и ждать, пока всё это будет согласовано в БТИ и т.п. организациях. Я хочу взять и сделать перепланировку, и побыстрее вселиться, а потом уже всё узаконить, скорее всего после погашения кредита, чтобы не вовлекать во всё это ещё и банк.
Просто у меня был уже один случай подобный - в старой хрущёвке разломали шиферные стены старой кабины санузла и срезали металлический каркас, вместо них поставили стены из блоков, но при этом сделали дверь в санузел наискосок, ну как если на виде сверху отпилить у квадрата один угол. При приватизации квартиры приходила комиссия из БТИ, в общем, я уже плохо всё это помню, т.к. мать всей этой канителью занималась, но итог был такой, что без особой беготни мы были вызваны в суд, где нам зачитали итог, смыслом которого было то, что перепланировку узаконили, а оплатить пришлось только какие-то судебные и т.п. пошлины.
Вот меня и интересует, какова будет эта процедура сейчас?
Я не могу остановить ремонт и ждать, пока всё это будет согласовано в БТИ и т.п. организациях. Я хочу взять и сделать перепланировку, и побыстрее вселиться, а потом уже всё узаконить, скорее всего после погашения кредита, чтобы не вовлекать во всё это ещё и банк.
Перепланировка в кредитной квартире
little
Если перепланировка сделана незаконно, т.е. БТИ уже столкнулось с фактом её наличия, к стандартное процедуре согласования добавляется суд.
Если перепланировка сделана незаконно, т.е. БТИ уже столкнулось с фактом её наличия, к стандартное процедуре согласования добавляется суд.
Не без уважения, ваш Вольдемар Абрамович
Перепланировка в кредитной квартире
Aviator, ну а исход суда-то можно как-то предсказать? Капитальные стены не сносятся, санузлы и водопроводы над жилыми помещениями не возводятся, лишь немного уменьшается жилая площадь.
Перепланировка в кредитной квартире
little
Как думаешь, посадят Тимошенку или не посадят?
Я ж не судья, чтоб гадать и предсказывать решения...
Думаю, что если ничего серьёзного не делается (несущие стены и стояки не двигаются), то суд - формальность по факту.
Как думаешь, посадят Тимошенку или не посадят?

Думаю, что если ничего серьёзного не делается (несущие стены и стояки не двигаются), то суд - формальность по факту.
Не без уважения, ваш Вольдемар Абрамович
- vasilisa346
- New member
- Сообщения: 55
- Зарегистрирован: 12 янв 2012 06:15
Тепличная 22
кстати,...про перепланировку
http://www.rg.ru/2011/11/14/pereplan.html
http://www.rg.ru/2011/11/14/pereplan.html
-
- Member
- Сообщения: 118
- Зарегистрирован: 03 янв 2012 18:32
Перепланировка квартиры
А кто знает как лучше,сначало зарегистрироваться в квартире и все дела-а потом делать перепланировку?
ЖК "Рязановский" (Рязановское ш, 19) (ПЖИ)
http://forum.podolsk.ru/viewtopic.php?f=109&t=83785Gindger писал(а):Кто занимался вопросами перепланировок? Если здесь это обсуждалось, то просьба указать номер страницы.
http://forum.podolsk.ru/viewtopic.php?f=75&t=15314
Не без уважения, ваш Вольдемар Абрамович
ЖК "Рязановский" (Рязановское ш, 19) (ПЖИ)
Уважаемый Авиатор, к сожалению первая ссылка ничего не разъясняет, а вторая не актуальна по законодательству. Может кто конкретно с нового ПЖИ дома уже задумывался или хоть как-то занимался этим вопросом? У нас уже готов план будущей перепланировки, мне интересны вопросы, как именно это происходит в Подмосковье? У них есть служба одного окна и что конкретно из планировки нам категорически нельзя делать? Сколько по времени занимает проверка БТИ и т.д. Мне бы хотелось поменять план квартиры....
Кстати, а какой здесь контингент возрастной? Нам по 25 лет. Интересно - молодой домик у нас?
Кстати, а какой здесь контингент возрастной? Нам по 25 лет. Интересно - молодой домик у нас?
ЖК "Рязановский" (Рязановское ш, 19) (ПЖИ)
Gindger
По второй ссылке читайте с 4-5 страницы.
Что там неактуального? Есть положение о перепланировке в г. Подольске, утверждённое городской администрацией. Читайте его, там есть выдержки, ссылки и полное название. Есть обсуждение, куда идти и как всё делать.
Если были какие-то изменения (а их вроде бы не было), то будут указаны изменения в это существующее городское положение.
По второй ссылке читайте с 4-5 страницы.
Что там неактуального? Есть положение о перепланировке в г. Подольске, утверждённое городской администрацией. Читайте его, там есть выдержки, ссылки и полное название. Есть обсуждение, куда идти и как всё делать.
Если были какие-то изменения (а их вроде бы не было), то будут указаны изменения в это существующее городское положение.
Не без уважения, ваш Вольдемар Абрамович
ЖК "Рязановский" (Рязановское ш, 19) (ПЖИ)
Aviator писал(а):Gindger
По второй ссылке читайте с 4-5 страницы.
Что там неактуального? Есть положение о перепланировке в г. Подольске, утверждённое городской администрацией. Читайте его, там есть выдержки, ссылки и полное название. Есть обсуждение, куда идти и как всё делать.
Если были какие-то изменения (а их вроде бы не было), то будут указаны изменения в это существующее городское положение.
В том то все и дело, что с 1 декабря 2011 года внесены изменения, по крайней мере в Москве. (Постановление Правительства Москвы №508-ПП от 25/10/11) Теперь все очень упрощено, но что по поводу Подольска? Во второй ссылке старые даты публикации на форуме..
ЖК "Рязановский" (Рязановское ш, 19) (ПЖИ)
Что ж Вы так поискать не хотите и почитать всю тему по 2-й ссылке.Gindger писал(а):что по поводу Подольска? Во второй ссылке старые даты публикации на форуме..
Введите в поисковике название указанного постановления по г. Подольску и почитайте его и все изменения к нему.
Также это постановление есть в базах законодательства.
У нас в городе есть МУП "Документ-Сервис", которое единственное занимается согласованием перепланировки и консультациями по данному вопросу. Позвоните им или съездите туда, они Вам всё подробно расскажут по этапам и по документам, как это делается в Подольске.
Не без уважения, ваш Вольдемар Абрамович
ЖК "Рязановский" (Рязановское ш, 19) (ПЖИ)
Aviator писал(а):Что ж Вы так поискать не хотите и почитать всю тему по 2-й ссылке.Gindger писал(а):что по поводу Подольска? Во второй ссылке старые даты публикации на форуме..
Введите в поисковике название указанного постановления по г. Подольску и почитайте его и все изменения к нему.
Также это постановление есть в базах законодательства.
У нас в городе есть МУП "Документ-Сервис", которое занимается согласованием перепланировки и консультациями по данному вопросу. Позвоните им или съездите туда, они Вам всё подробно расскажут по этапам и по документам, как это делается в Подольске.
Отлично! Вот это достойный ответ. Спасибо) А пишу здесь - потому что много подводных камней в этом во всем и уж очень не приятно, что МО так отличается от Москвы.
ЖК "Рязановский" (Рязановское ш, 19) (ПЖИ)
Самое интересное - в этом МУПе никто ничего не знает))) Только что им звонила уточнить насколько актуально ПОСТАНОВЛЕНИЕ от 10 августа 2005 г. N 1654-п - ОНИ НЕ ЗНАЮТ!!!! И даже не могут мне подсказать кому позвонить. Нормально? Смех и грех.
ЖК "Рязановский" (Рязановское ш, 19) (ПЖИ)
Gindger
Вы не так спросили. Надо не спрашивать, действует ли что-то, а "Я хочу сделать перепланировку, что мне делать?" Умных у нас не любят.
Съездите к ним. В Подольске перепланировкой занимаются и согласовывают только они. Всё они знают, но по телефону не хотят разговаривать. Со мной тоже не хотели. Раньше говорили "Приезжайте", сейчас говорят "Мы не знаем". Нормально.
Вы не так спросили. Надо не спрашивать, действует ли что-то, а "Я хочу сделать перепланировку, что мне делать?" Умных у нас не любят.

Съездите к ним. В Подольске перепланировкой занимаются и согласовывают только они. Всё они знают, но по телефону не хотят разговаривать. Со мной тоже не хотели. Раньше говорили "Приезжайте", сейчас говорят "Мы не знаем". Нормально.
Не без уважения, ваш Вольдемар Абрамович
- nikolai0405
- Member
- Сообщения: 252
- Зарегистрирован: 08 сен 2011 02:54
Перепланировка квартиры
я вклинюсь в Ваш разговор, непротив?
мне очень интересно, до ГосКомисси возможно сделать некоторые изменения? Например объеденить балкон с кухней, кто-то делал? А то строители перегородки делают - а мы сносим
мне очень интересно, до ГосКомисси возможно сделать некоторые изменения? Например объеденить балкон с кухней, кто-то делал? А то строители перегородки делают - а мы сносим
Перепланировка квартиры
Вообще ни под каким соусом нельзяобъеденить балкон с кухней
Лучше дождаться права собственности, а потом уже сносить.
- nikolai0405
- Member
- Сообщения: 252
- Зарегистрирован: 08 сен 2011 02:54
Перепланировка квартиры
понятно, тогда при ремонте придетсься сносить, а потом оформлять (узаканивать) 

Перепланировка квартиры
По правилам надо бы СНАЧАЛА сделать проект, получить одобрение и потом снести. Просто узаконивание происходит через наш родной подольский суд - а этот тот еще пестетс. Там захотят - узаконят, не захотят - не узаконят. Они выкладывали даже на сроки рассмотрения дел, про более глобальные вещи вообще молчу. Там вполне можно зависнуть потом года так на 2-3 с этими перепланировками. В БТИ могут много порассказать про это 
предупреждение за ненормативную лексику

предупреждение за ненормативную лексику
Перепланировка квартиры
frei писал(а):Вообще ни под каким соусом нельзяобъеденить балкон с кухней
Лучше дождаться права собственности, а потом уже сносить.
А если я перефразирую - лоджию с кухней?
Товарищ Авиатор, вот видите, в Москве можно не согласовывать это больше, а тут пишут, что категорически нельзя, нельзя балкон объединять, но мы говорим про Рязановский, а там по проекту лоджия.
Перепланировка квартиры
Может здесь есть специалист, который в тезисах может изложить, что можно делать в новострое в МО. желательно свежие данные на 2012 год, что было до декабря 2011 - меня мало волнует.
Перепланировка квартиры
frei писал(а):По правилам надо бы СНАЧАЛА сделать проект, получить одобрение и потом снести. Просто узаконивание происходит через наш родной подольский суд - а этот тот еще пестетс. Там захотят - узаконят, не захотят - не узаконят. Они выкладывали даже на сроки рассмотрения дел, про более глобальные вещи вообще молчу. Там вполне можно зависнуть потом года так на 2-3 с этими перепланировками. В БТИ могут много порассказать про это
предупреждение за ненормативную лексику
Вот видите, ситуация с Подольском все таки не ясна. Жесть, конечно.
Перепланировка квартиры
Ну тут уже советовали - надо ехать в документ-сервис. Все равно без них не обойтись (это такой узаконенный способ отъема денег у населения), так что пущай свои 4500 отрабатывают и рассказывают, что можно, а что нельзя.
Перепланировка квартиры
Мне-то Вы зачем пытаетесь что-то доказать? Если Вам разрешат, да хоть все стены полностью снесите нафик и сделайте там спортивный зал с кухней сбоку.Gindger писал(а):Товарищ Авиатор, вот видите, в Москве можно не согласовывать это больше, а тут пишут, что категорически нельзя, нельзя балкон объединять, но мы говорим про Рязановский, а там по проекту лоджия.
Что можно сносить, а что нельзя, Вам скажут только архитекторы местные, когда Вы к ним понесёте имеющийся план квартиры и свои пожелания по перепланировке.
Вам уже сказали - идите в Документ-Сервис. Ссылку дали на обсуждение. Адрес их дали. Ссылку на Постановление о перепланировке дали, где всё подробно расписано.Gindger писал(а):Вот видите, ситуация с Подольском все таки не ясна. Жесть, конечно.
Вы всё это читать не хотите, в Документ-сервисе не были и опять - "ситуация не ясна". Это и правда - жесть, конечно.

Не без уважения, ваш Вольдемар Абрамович
Перепланировка квартиры
Да что я туда пойду, если дом еще не построен, вот если бы меня кто-то на форуме понатаскал и подготовил... по моему для этого форумы и нужны. Я писала хочу объединить лоджию с кухней, кухню с комнатой, туалет с ванной. ВСЕ! Что можно, что нельзя? Сколько стоит и как долго? когда можно начинать? вопросы то элементарные. У меня 2-ка в 1 секции (Рязановский), план квартиры там есть. Бью в колокол, что бы знать во в сколько все это обойдется и стоит ли начинать.... хотя, по любому стоит.
Перепланировка квартиры
И, кстати, почему именно Документ-Сервис??? Альтернатив нет?
Перепланировка квартиры
Gindger
По-моему, вы просто хотите бесплатно получить консультацию. Ведь именно для этого форумы и нужны, да?
Альтернатива есть, как же
http://www.podolsk.ru/catalog/view.php? ... e=0&cat=69
По-моему, вы просто хотите бесплатно получить консультацию. Ведь именно для этого форумы и нужны, да?

Альтернатива есть, как же
http://www.podolsk.ru/catalog/view.php? ... e=0&cat=69
Перепланировка квартиры
Альтернатив нет.Gindger писал(а):Альтернатив нет?
Не без уважения, ваш Вольдемар Абрамович
Перепланировка квартиры
летучка писал(а):Gindger
По-моему, вы просто хотите бесплатно получить консультацию. Ведь именно для этого форумы и нужны, да?
Альтернатива есть, как же
http://www.podolsk.ru/catalog/view.php? ... e=0&cat=69
О , ну наконец-от, да хочу инфу бесплатно, на форуме.

Перепланировка квартиры
ага, спасибо, яндексом я пользоваться умею.
Перепланировка квартиры
Ну так в чем вопрос? Там все есть, очень доходчиво.
Перепланировка квартиры
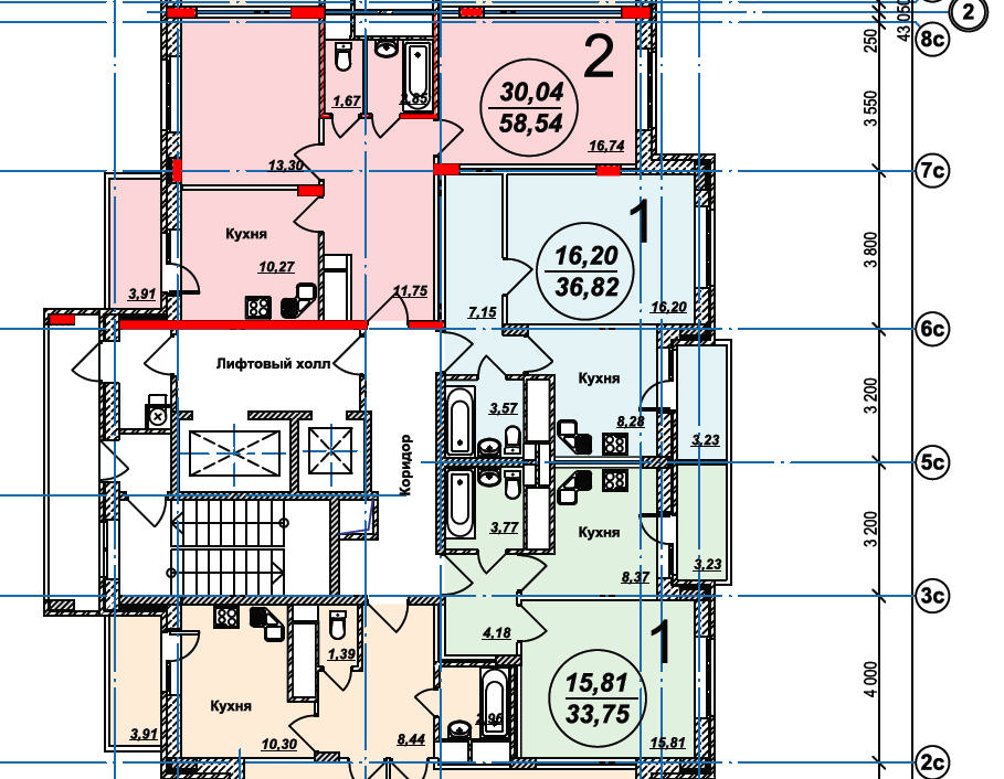
Все что Вы хотите сделать - можно. У нас в Рязановском нет несущих стен между комнатами, прихожими, кухнями. Их можно сносить. Есть только монолитные пилоны - их трогать нельзя! Все остальное - можно. С проектом только. С согласованием.Gindger писал(а):Я писала хочу объединить лоджию с кухней, кухню с комнатой, туалет с ванной. ВСЕ! Что можно, что нельзя?
Stand!
Перепланировка квартиры
MF-B писал(а):Все что Вы хотите сделать - можно. У нас в Рязановском нет несущих стен между комнатами, прихожими, кухнями. Их можно сносить. Есть только монолитные пилоны - их трогать нельзя! Все остальное - можно. С проектом только. С согласованием.Gindger писал(а):Я писала хочу объединить лоджию с кухней, кухню с комнатой, туалет с ванной. ВСЕ! Что можно, что нельзя?
Спасибо огромное!!!! таким ответом, вы мне очень облегчили задачу.
Перепланировка квартиры
Gindger
Балкон, лоджию по закону присоединять нельзя. Тем более сносить стену между ними.
Балкон, лоджию по закону присоединять нельзя. Тем более сносить стену между ними.
Коммунизм отменили.