Публичные слушания в Подольске, общественные обсуждения

Жизнь города, его проблемы, новости

Модераторы: летучка, mike

Аватара пользователя
летучка
Модератор
Модератор
Сообщения: 42332
Зарегистрирован: 17 дек 2004 11:07

Публичные слушания

Сообщение летучка »

Общественные обсуждения концепции благоустройства ул. 50 лет ВЛКСМ в Подольске состоятся 17 января в 18.30 в школе № 28 ( ул. Б.Серпуховская, д. 20/1).
Аватара пользователя
летучка
Модератор
Модератор
Сообщения: 42332
Зарегистрирован: 17 дек 2004 11:07

Публичные слушания

Сообщение летучка »

Согласно постановлению Главы Городского округа Подольск от 28.12.2017 № 391-ПГ были назначены публичные слушания по вопросу предоставления разрешения на отклонение от предельных параметров разрешенного строительства, реконструкции объектов капитального строительства (в части уменьшения минимального отступа от границ земельных участков – до 1м) для земельных участков с кадастровыми номерами 50:27:0000000:132556 и 50:27:0000000:132557, площадью 1464 кв.м и 382 кв.м соответственно, категория земель – «земли населенных пунктов», вид разрешенного использования – «для комплексного освоения в целях жилищного строительства», местоположение: Московская область, Городской округ Подольск, вблизи д. Бережки.

Информация о проведении публичных слушаний была опубликована в газете «Подольский рабочий» от 29.12.2017 № 99 и на официальном сайте Администрации Городского округа Подольск http://подольск-администрация.рф/ 28.12.2017.

Открытое обсуждение по данному вопросу состоялось 10.01.2018 в 16.00, в котором приняли участие представители Комиссии – 4 чел., представители юридического лица – 2 чел. Предложений и замечаний по вопросу, рассмотренному на публичных слушаниях, не поступало.

17.01.2018 Комиссией по подготовке проекта правил землепользования и застройки муниципального образования «Городской округ Подольск Московской области» принято решение одобрить предоставление разрешения на отклонение от предельных параметров разрешенного строительства, реконструкции объектов капитального строительства (в части уменьшения минимального отступа от границ земельных участков – до 1м) для земельных участков с кадастровыми номерами 50:27:0000000:132556 и 50:27:0000000:132557, площадью 1464 кв.м и 382 кв.м соответственно, категория земель – «земли населенных пунктов», вид разрешенного использования – «для комплексного освоения в целях жилищного строительства», местоположение: Московская область, Городской округ Подольск, вблизи д. Бережки.
Аватара пользователя
летучка
Модератор
Модератор
Сообщения: 42332
Зарегистрирован: 17 дек 2004 11:07

Публичные слушания

Сообщение летучка »

депутаты Совета депутатов г.о. Подольск утвердили ПЗЗ.

Требования и предложения жителей п. Дубровицы учтены на 100%.
Наша совместная работа принесла свой результат!

Вместо предлагавшейся изначально промзоны и многоэтажной застройки - зона комплексного устойчивого развития (КУРТ), не выше 5 этажей.
Назначение КУРТ - малоэтажная жилая застройка, соц. обслуживание, бытовое обслуживание, здравоохранение, образование, культура, спорт, гостиницы, историко-культурная деятельность, отдых, деловое управление, магазины и т.д.
https://vk.com/wall-114471453_3391
Аватара пользователя
Алехандро
Expert
Expert
Сообщения: 2144
Зарегистрирован: 13 сен 2016 12:16

Публичные слушания

Сообщение Алехандро »

Где-то недавно проскакивала инфа, что хотят принять закон об отмене публичных слушаний. Как неактуальной формы работы.
А в Подольске,смотрю, довольно эффективно форма работает.
Аватара пользователя
Aviator
Странный гуру с адептами
Странный гуру с адептами
Сообщения: 33250
Зарегистрирован: 28 май 2007 10:42

Публичные слушания

Сообщение Aviator »

Алехандро писал(а):А в Подольске,смотрю, довольно эффективно форма работает.
Это что, шутка такая? crazy:
Не без уважения, ваш Вольдемар Абрамович
Аватара пользователя
Tarsius
Super expert
Super expert
Сообщения: 8854
Зарегистрирован: 29 дек 2008 22:54
Откуда: Тридевятое царство

Публичные слушания

Сообщение Tarsius »

Алехандро писал(а):А в Подольске,смотрю, довольно эффективно форма работает.
Что за бред? На Силикатной-2 на публичных слушаниях был один проект. На приватных другой. В работе естественно второй, где и новый домом сплошь из однушек, и дом с дополнительным подъездом построенным вместо спортивной школы и т.п.

Как по мне уж лучше полностью нужно исключать участие города, населения, бизнеса, и прочих непрофессионалов, в развитии градостроительной архитектуры. Это должны делать обученные специалисты. Чтобы не допустить ситуацию как на несчастной Силикатной-2 с официальными ответами администрации: "извините, места на строительство поликлиник у вас не осталось, так получилось, и все что вы можете сделать, это убиться об стену"

В Москве это работает, там, как в Бутово например, стоят недостроенные поликлиники и переизбыток школ, и при этом пространство есть между домами, и дороги можно новые впихнуть через 10 лет после застройки района facepalm:
Аватара пользователя
papa_jons
Out of range
Out of range
Сообщения: 32518
Зарегистрирован: 14 фев 2004 16:04
Откуда: планета Земля

Публичные слушания

Сообщение papa_jons »

Aviator писал(а):
Алехандро писал(а):А в Подольске,смотрю, довольно эффективно форма работает.
Это что, шутка такая? crazy:
и ведь они все там так думают :mrgreen:
мудрому не нужен закон, у него есть разум(с)
Аватара пользователя
Алехандро
Expert
Expert
Сообщения: 2144
Зарегистрирован: 13 сен 2016 12:16

Публичные слушания

Сообщение Алехандро »

Tarsius писал(а):Как по мне уж лучше полностью нужно исключать участие города, населения, бизнеса, и прочих непрофессионалов, в развитии градостроительной архитектуры. Это должны делать обученные специалисты.
Тогда всё-таки дорогу от Кирова до Свердлова нужно делать? Мнение местного населения можно не учитывать.
Ведь градостроительная наука требует там дорогу.
Аватара пользователя
Tarsius
Super expert
Super expert
Сообщения: 8854
Зарегистрирован: 29 дек 2008 22:54
Откуда: Тридевятое царство

Публичные слушания

Сообщение Tarsius »

Алехандро писал(а):Ведь градостроительная наука требует там дорогу.
Вот именно об этом я и говорю. Это локальное решение проблемы. То бишь костыль. Причем лютый. Чтобы не возникала потребность в этой дороге, нужна организация бессветофорного движения на главном перекрестке города посредством круга или простенькой двухуровневой развязки

После этого уже можно вводить дополнительные дороги в городе подобные, и они не будут пробкогенератором, а будут улучшать транспортную доступность в городе. Этой дороги действительно не хватает. Но подавляющее большинство тех, кто за думает "ааа, а я там пробку объезжать буду", и ни у одного, я уверен, мысли не было, что от станции скорой помощи или до роддома сократится время в пути для той же улицы Свердлова (хотя по сравнению с Силикатной-2 они все-равно в выигрыше, но все-таки кто-то живет в центре, кто-то в заднице)
Аватара пользователя
Севенши
Super expert
Super expert
Сообщения: 6714
Зарегистрирован: 06 янв 2010 16:12
Откуда: город ПОДОЛЬСК

Публичные слушания

Сообщение Севенши »

Tarsius писал(а):кто-то живет в центре, кто-то в заднице)
в центре задницы :oldman:
…наиболее выгодным для производства является тот товар, который необходимо выбрасывать после использования.(William Painter)
«Конечно, не каждый человек это на себе ощущает. Но это правда!»
Весь объем информации держать в голове неспособен ни один человек, кроме Путина (с)
Аватара пользователя
Aviator
Странный гуру с адептами
Странный гуру с адептами
Сообщения: 33250
Зарегистрирован: 28 май 2007 10:42

Публичные слушания

Сообщение Aviator »

Tarsius
Надо дорогу расширять и делать выделенную полосу для автобусов от моста до Щербинки. Проект давно уже обсуждался, Пестов нам года три-четыре назад под Новый год рассказывал, как уже проект почти готов, но денег нет.
В городе иногда непонятные действия по организации движения происходят. Тот же светофор на Стекольникова на поворот, которым тут же создали пробку, отменив 10 секунд на поворот. Зачем?
Про обычную разметку с выделенными карманами на поворот и разворот перед всеми перекрестками на двух центральных улицах и до Щербинки уже говорили. Власти реализовать это не захотели. Почему? Никто не знает. Пестов не захотел, а перечить ему никто не захотел. Доводы он ничьи не слушает, хотя и наши, и областные гаишники на словах были за.
Ну и дальше по светофорам есть вопросы с циклами. Перечислять можно долго. Толку только никакого.
Кузнечикам надо, наконец, сделать этот выезд на южоп с 43 армии, чтобы они на Октябрьском не. Откатись и не занимали собой городские улицы. Но, тоже ж не могут. Или не хотят. Всё причины ищут и оправдания.
Чтобы сделать круг на площади, надо подземные переходы копать. А этого никто тоже делать не будет. Был глин, его закопали. Теперь там все между машинами к ВР перебегают. Почему закрыли? А там бомжи ссут.
Не без уважения, ваш Вольдемар Абрамович
Аватара пользователя
Севенши
Super expert
Super expert
Сообщения: 6714
Зарегистрирован: 06 янв 2010 16:12
Откуда: город ПОДОЛЬСК

Публичные слушания

Сообщение Севенши »

Aviator писал(а):выделенную полосу для автобусов от моста до Щербинки.
от какого моста? :-k
…наиболее выгодным для производства является тот товар, который необходимо выбрасывать после использования.(William Painter)
«Конечно, не каждый человек это на себе ощущает. Но это правда!»
Весь объем информации держать в голове неспособен ни один человек, кроме Путина (с)
Аватара пользователя
Aviator
Странный гуру с адептами
Странный гуру с адептами
Сообщения: 33250
Зарегистрирован: 28 май 2007 10:42

Публичные слушания

Сообщение Aviator »

Севенши
Подумай и догадаешься. Тему тут поищи соответствующую. Проект давно рисовали уже.
Не без уважения, ваш Вольдемар Абрамович
Аватара пользователя
летучка
Модератор
Модератор
Сообщения: 42332
Зарегистрирован: 17 дек 2004 11:07

Публичные слушания

Сообщение летучка »

Согласно постановлению Главы Городского округа Подольск от 18.01.2018 № 6-ПГ были назначены публичные слушания по вопросу предоставления разрешения на отклонение от предельных параметров разрешенного строительства, реконструкции объектов капитального строительства (в части изменения минимального отступа от границ земельного участка до 0 метров, увеличения максимального процента застройки до 94%) для земельного участка с кадастровым номером 50:55:0010293:27, площадью 7062 кв.м, категория земель – «земли населенных пунктов», вид разрешенного использования – «для промышленных целей», расположенного по адресу: Московская область, Городской округ Подольск, г. Подольск, ш. Рязановское.

Информация о проведении публичных слушаний была опубликована в газете «Подольский рабочий» от 19.01.2018 № 4, на официальном сайте Администрации Городского округа Подольск http://подольск-администрация.рф/ в разделе «Документы», подраздел «Публичные слушания» 18.01.2018.

Открытое обсуждение по данному вопросу состоялось 26.01.2018 в 16.00, в котором приняли участие представители Комиссии – 4 чел., физические лица – 16 чел., представители юридических лиц – 3 чел. Предложений и замечаний по вопросу, рассмотренному на публичных слушаниях, не поступало.

02.02.2018 Комиссией по подготовке проекта правил землепользования и застройки муниципального образования «Городской округ Подольск Московской области» принято решение одобрить предоставление разрешения на отклонение от предельных параметров разрешенного строительства, реконструкции объектов капитального строительства (в части изменения минимального отступа от границ земельного участка до 0 метров, увеличения максимального процента застройки до 94%) для земельного участка с кадастровым номером 50:55:0010293:27, площадью 7062 кв.м, категория земель – «земли населенных пунктов», вид разрешенного использования – «для промышленных целей», расположенного по адресу: Московская область, Городской округ Подольск, г. Подольск, ш. Рязановское.
http://xn----8sbancyabljpnebm2aiit6frfs ... ushanij-4/
Аватара пользователя
pocomaxa
Expert
Expert
Сообщения: 2864
Зарегистрирован: 08 фев 2001 18:51
Откуда: Толбино

Публичные слушания

Сообщение pocomaxa »

http://www.podolsk.ru/news/n29658.html
мастера заголовков - "Кабельному цеху под окнами жилого дома в Подольске разрешили расшириться" - а где статья с заголовком - "В 50 метрах от Кабельного завода строят многоквартирный дом?"
В двухстах метрах от предприятия находится многоквартирный дом 2 по Тепличной улице, чуть дальше - МКД на Подольской улице, 18 и Рязановском шоссе, 19, а также средняя школа № 33. Жители домов неоднократно жаловались на неприятный запах от кабельного производства вкупе с другими выбросами промзон. В связи с этим организаторы слушаний постарались не проинформировать о них широкую общественность.
Жилой дом находится не в 200м а в 50м от производства, т.к. дом строился изначально без разрешения, после просто уменьшили санитарную зону.
По всем многократным жалобам жителей (как ни странно не из ближнего дома) есть ответы от соответствующих органов - о полном соответствии экологическим и прочим нормам.
Организаторы слушаний сделали всё по закону, объявление в Подольском рабочем, и на сайте администрации в соответствующем разделе в положенное законом время.

По факту никакого расширения нет, просто из-за уточнения границ, процент застройки на участке вырос выше нормы, что и пришлось узаконивать.

Всем кто пришел на слушания была предложена экскурсия по заводу, но почему то никто не захотел.
--=XAOC=--
Аватара пользователя
летучка
Модератор
Модератор
Сообщения: 42332
Зарегистрирован: 17 дек 2004 11:07

Публичные слушания

Сообщение летучка »

pocomaxa писал(а):а где статья с заголовком - "В 50 метрах от Кабельного завода строят многоквартирный дом?"
Прямо сейчас строят?
Аватара пользователя
pocomaxa
Expert
Expert
Сообщения: 2864
Зарегистрирован: 08 фев 2001 18:51
Откуда: Толбино

Публичные слушания

Сообщение pocomaxa »

летучка писал(а):Прямо сейчас строят?
Нет конечно, но построили
дом 2 по Тепличной улице, чуть дальше - МКД на Подольской улице, 18 и Рязановском шоссе, 19, а также средняя школа № 33
значиииительно позжей чем кабельный завод.
Так вот почему когда их возводили никто не написал статью о том что строят их прям рядом с легально работающим, между прочим градообразующим, если кто не в курсе, заводом ?

В последнем абзаце как минимум 2 неверных утверждения - про дом в 200м - он ближе(яндекс карты вам в руки), и про то что организаторы пытались что то там скрыть - абсолютно по закону были размещены объявления на сайте и в Подольском рабочем.
--=XAOC=--
Аватара пользователя
летучка
Модератор
Модератор
Сообщения: 42332
Зарегистрирован: 17 дек 2004 11:07

Публичные слушания

Сообщение летучка »

pocomaxa

Я ждала, что вы придете защищать свое предприятие. Но речь в статье не о нем, а об администрации Подольска, для которой сейчас Силикатная-2 - красная тряпка.
Материал слеплен сыро, на коленке, не на конкурс профмастерства. После шока от публикации январского постановления главы округа на сайте администрации задним числом в феврале. Для информирования жителей, которые ничего не знали о слушаниях. (Вы вот знали, но не сказали почему-то).

Дом на Тепличной, 2 начали строить в 2008 году, если не ошибаюсь. 10 лет назад. Поднимать проблему было некому - никто тогда рядом с заводом не жил, а строительство без разрешения было в порядке вещей. Почему завод молчал - вот в чем вопрос. И тогда, и сегодня.
Аватара пользователя
pocomaxa
Expert
Expert
Сообщения: 2864
Зарегистрирован: 08 фев 2001 18:51
Откуда: Толбино

Публичные слушания

Сообщение pocomaxa »

летучка
Я лично на сайте администрации видел объявление о слушаниях за неделю до них точно.
Просто странно слышать что это было задним числом.
Если хотите могу попробовать договориться о экскурсии, напишите статью.
--=XAOC=--
Аватара пользователя
летучка
Модератор
Модератор
Сообщения: 42332
Зарегистрирован: 17 дек 2004 11:07

Публичные слушания

Сообщение летучка »

pocomaxa
Я говорю про постановление главы округа в разделе нормативных документов.
http://xn----8sbancyabljpnebm2aiit6frfs ... a-podolsk/

В начале февраля там не было ни одного постановления главы округа за январь 2018.

Готова опубликовать материал предприятия - про безопасность и соответствия.
Аватара пользователя
летучка
Модератор
Модератор
Сообщения: 42332
Зарегистрирован: 17 дек 2004 11:07

Публичные слушания

Сообщение летучка »

Вчера из интернет-приемной администрации прислали ответ на вопрос от 2 февраля 2018 г. о нормативном документе, который дает возможность выборочно публиковать постановления главы округа и администрации.

Постановление главы округа "Об утверждении Порядка работы с муниципальными правовыми актами в Администрации Городского округа Подольск" № 623-П от 29.04.2016 г.

Последний апдейт постановления - 7 февраля 2018 г. и 9 просмотров. То есть его загрузили после обращения в приемную.
http://xn----8sbancyabljpnebm2aiit6frfs ... 9-04-2016/


В постановлении читаем:
Нормативные правовые акты Главы Городского округа Подольск подлежат официальному опубликованию (обнародованию) в течение 14 дней с момента подписания.
Про сайты и газеты ни слова:
4. Подготовка правовых актов Главы городского округа Подольск с целью официального опубликования (обнародования),
направления в ГУТП для включения в Регистр
и в Подольскую городскую прокуратуру

4.1. При подготовке проектов правовых актов Главы Городского округа Подольск должностные лица, являющиеся разработчиками данных проектов, обязаны размещать их в системе электронного документооборота «Дело». В случае изменения проекта правового акта в процессе согласования разработчик проекта обязан незамедлительно разместить в системе электронного документооборота «Дело» актуальную версию указанного проекта.
4.2. При поступлении проекта правового акта Главы Городского округа Подольск для правовой экспертизы в МКУ «ПРАВО» ответственный сотрудник МКУ «ПРАВО» делает в системе «Дело» отметки о нормативности и необходимости официального опубликования (в отношении правовых актов, носящих нормативный характер). Кроме того, в правовом заключении к проекту нормативного правового акта указывается информация о его нормативности.
4.3. Начальник Организационно-правового управления при согласовании проекта нормативного правового акта делает в листе согласований отметку о нормативности.
4.4. После подписания нормативных правовых актов Главы Городского округа Подольск отдел документационного обеспечения Администрации Городского округа Подольск (далее – отдел документационного обеспечения) незамедлительно направляет копии указанных правовых актов на бумажном носителе в Управление и в Организационный отдел Управления делами, а также в системе «Дело» обеспечивает их размещение на бланке с указанием в нормативных правовых актах, в том числе в приложениях к ним, дат их принятия и номеров.
4.5. После поступления из отдела документационного обеспечения копий нормативных правовых актов Главы Городского округа Подольск начальник Управления незамедлительно дает указание ответственному должностному лицу Управления о необходимости обеспечить опубликование соответствующих нормативных актов в срок, указанный в пункте 2.3 настоящего Порядка.
4.6. Управление осуществляет следующие административные процедуры:
- регистрация поступившего нормативного правового акта;
- выгрузка электронной версии нормативного правового акта из системы «Дело» с целью последующей предпечатной подготовки;
- официальное опубликование (обнародование) нормативного правового акта Главы Городского округа Подольск на официальном сайте Администрации Городского округа Подольск с соблюдением срока, указанного в пункте 2.3 настоящего Порядка;
- предпечатная подготовка муниципального нормативного правового акта в отделе по информационной политике Управления в соответствии с разделом 5 настоящего Порядка;
- направление нормативного правового акта Главы Городского округа в соответствующую типографию для его официального опубликования (обнародования) в «Вестнике» в срок, указанный в пункте 2.3 настоящего Порядка.
4.7. После официального опубликования (обнародования) нормативных правовых актов Главы Городского округа Управление незамедлительно вносит в систему электронного документооборота «Дело» сведения об опубликовании, дате и источниках официального опубликования нормативных актов.
4.8. МКУ «ПРАВО» осуществляет мониторинг официального опубликования (обнародования) нормативных правовых актов Главы Городского округа и в случае отсутствия в системе «Дело» не более, чем за 3 дня до окончания срока, установленного для опубликования, отметки об источнике и дате официального опубликования (обнародования) нормативного правового акта уведомляет Управление о необходимости его официального опубликования (обнародования).
4.9. Управление делами направляет копии нормативных правовых актов Главы Городского округа Подольск в ГУТП для включения в Регистр в установленном законом порядке, а также копии правовых актов Главы Городского округа Подольск в Подольскую городскую прокуратуру в срок до 20 числа месяца, следующего за отчетным.
4.10. Блок-схема подготовки правовых актов Главы Городского округа Подольск с целью официального опубликования (обнародования), направления в ГУТП для включения в Регистр и в Подольскую городскую прокуратуру наглядно представлена в приложении №2 к настоящему Порядку.
В целях распространения «Вестника» Управление незамедлительно направляет экземпляры «Вестника»:
- Главе Городского округа Подольск;
- в Совет депутатов;
- в Общественную палату Городского округа Подольск;
- первым заместителям, заместителям Главы Администрации для дальнейшего распространения в соответствии с пунктом 7.3 настоящего Порядка ;
- в самостоятельные органы Администрации, находящиеся в непосредственном подчинении Главы Городского округа;
- в общественные организации.
Вложения
Б.png
Безымянный.png
Аватара пользователя
летучка
Модератор
Модератор
Сообщения: 42332
Зарегистрирован: 17 дек 2004 11:07

Публичные слушания

Сообщение летучка »

Рассмотрение предложений и замечаний в рамках общественных обсуждений или публичных слушаний в сфере градостроительной деятельности стало возможно в электронном виде через региональный портал государственных и муниципальных услуг - https://uslugi.mosreg.ru/ (РПГУ МО). «Заявитель может подать предложения и замечания, касающиеся вопросов генерального плана, правил землепользования и застройки, проекта планировки и проекта межевания территории, рассматриваемых на общественных обсуждениях или публичных слушаниях»,- рассказал начальник Главархитектуры Московской области Владислав Гордиенко. Предложения и замечания можно подать из дома или офиса, что исключает необходимость очного присутствия и существенно экономит время. После подачи заявки через РПГУ МО заявитель получает уведомления о ходе рассмотрения его обращения.

Услуга предназначена для физических лиц, постоянно проживающих в границах территории муниципального образования или в границах территории части муниципального образования Московской области, применительно к которой рассматривается вопрос на общественных обсуждениях или публичных слушаниях, а также для физических и юридических лиц, индивидуальных предпринимателей, являющихся правообладателями земельных участков, объектов капитального строительства или помещений, являющихся частью указанных объектов капитального строительства, расположенных в границах территории, применительно к которой рассматривается вопрос на общественных обсуждениях или публичных слушаниях.

Информация об участниках публикуется в оповещении о проведении публичных слушаний или общественных обсуждений по указанным вопросам градостроительной деятельности. Оповещение о проведении публичных слушаний или общественных обсуждений в течение одного рабочего дня размещается на официальном сайте администрации муниципального образования Московской области, в течение семи рабочих дней размещается в официальном печатном издании муниципального образования Московской области. Дополнительно оповещение о проведении публичных слушаний или общественных обсуждений размещается на информационных стендах, оборудованных около здания уполномоченного на проведение публичных слушаний или общественных обсуждений органа местного самоуправления, в местах массового скопления граждан.

Для предоставления услуги необходимо подать следующие документы:

- Заявление;

- Документ, удостоверяющий личность заявителя (представителя Заявителя);

- Документ, подтверждающий полномочия представителя заявителя;

- Документ, подтверждающий место жительства заявителя или правоустанавливающие (либо правоудостоверяющие) документы на земельный участок и (или) объект капитального строительства, помещение, являющееся частью объекта капитального строительства, оформленные до введения в действие Федерального закона от 21.07.1997 № 122-ФЗ «О государственной регистрации прав на недвижимое имущество и сделок с ним», сведения о которых не содержатся Едином государственном реестра недвижимости;

- Документы, подтверждающие полномочия лица действовать от имени юридического лица.

Срок рассмотрения предложений и замечаний не может превышать 8 календарных дней со дня регистрации заявления.

Результатом предоставления услуги является уведомление о включении предложений и замечаний в протокол общественных обсуждений или публичных слушаний, либо уведомление об отказе включения предложений и замечаний.

Результат направляется в виде электронного документа в личный кабинет Заявителя на РПГУ МО посредством государственной информационной системы обеспечения градостроительной деятельности Московской области.
http://www.komstroi-podolsk.ru/news/n563.html
Аватара пользователя
летучка
Модератор
Модератор
Сообщения: 42332
Зарегистрирован: 17 дек 2004 11:07

Публичные слушания

Сообщение летучка »

Уполномоченный орган — Комиссия по подготовке проекта правил землепользования и застройки муниципального образования «Городской округ Подольск Московской области» (далее Комиссия) информирует о проведении публичных слушаний по вопросу предоставления разрешения на отклонение от предельных параметров разрешенного строительства, реконструкции объектов капитального строительства (в части увеличения максимального процента застройки до 91,36% и уменьшения минимальных отступов от границы земельного участка от точки 2 до точки 3 согласно ГПЗУ № RU50334000-14-153 до 0 м) для земельного участка с кадастровым номером 50:55:0020231:16, площадью 2354 кв.м, категория земель – «земли населенных пунктов», вид разрешенного использования – «для промышленных целей», расположенного по адресу: Московская область, г. Подольск, ул. Машиностроителей, 11.

Участники публичных слушаний — члены Комиссии, жители, а также правообладатели земельных участков и (или) объектов капитального строительства, находящихся в границах территорий, в отношении которых подготовлены проекты документов, подлежащие рассмотрению на публичных слушаниях.

Общий срок проведения публичных слушаний с 28.02.2018 по 16.03.2018.

Информационные материалы по теме публичных слушаний представлены на сайте Комитета по строительству и архитектуре Администрации Городского округа Подольск в разделе «Архитектура и Градостроительство» подраздел «Публичные слушания» (www.komstroi-podolsk.ru) и на экспозиции по адресу: Московская область, Городской округ Подольск, г. Подольск, ул. Кирова, д. 4, у каб. 311. Экспозиция открыта с 28.02.2018 по 16.03.2018.

Открытое обсуждение по вопросу данных публичных слушаний состоится 13 марта 2018 года в 16.00 по адресу: Московская область, г. Подольск, ул. Машиностроителей,д. 11, время начала регистрации участников открытого обсуждения в 15.45.

Предложения и замечания от участников публичных слушаний, принимаются в письменном виде по адресу: Московская область, Городской округ Подольск, г. Подольск, ул. Кирова, д. 4, каб. 311, в срок до 16.03.2018 года. Телефон для справок 55-57-39.
http://xn----8sbancyabljpnebm2aiit6frfs ... shaniya-9/
Аватара пользователя
летучка
Модератор
Модератор
Сообщения: 42332
Зарегистрирован: 17 дек 2004 11:07

Публичные слушания

Сообщение летучка »

Уполномоченный орган — Комиссия по подготовке проекта правил землепользования и застройки муниципального образования «Городской округ Подольск Московской области» (далее Комиссия) информирует о проведении публичных слушаний по вопросу предоставления разрешения на условно разрешенный вид использования «для ведения личного подсобного хозяйства» земельного участка площадью 1202 кв.м с кадастровым номером 50:27:0020625:304, категория земель – «земли сельскохозяйственного назначения», вид разрешенного использования — «для ведения садоводства», расположенного по адресу: Московская область, Подольский район, сельское поселение Лаговское, СНТ «Лучинское», вблизи д. Лучинское.

Участники публичных слушаний — члены Комиссии, жители, а также правообладатели земельных участков и (или) объектов капитального строительства, находящихся в границах территорий, в отношении которых подготовлены проекты документов, подлежащие рассмотрению на публичных слушаниях.

Общий срок проведения публичных слушаний с 10.04.2018 по 27.04.2018.

Информационные материалы по теме публичных слушаний представлены на сайте Комитета по строительству и архитектуре Администрации Городского округа Подольск в разделе «Архитектура и Градостроительство» подраздел «Публичные слушания» (www.komstroi-podolsk.ru) и на экспозиции по адресу: Московская область, Городской округ Подольск, г. Подольск, ул. Кирова, д. 4, у каб. 311. Экспозиция открыта с 10.04.2018 по 27.04.2018 в рабочие дни с 9.00 до 18.00 часов.

Открытое обсуждение по вопросу данных публичных слушаний состоится 24 апреля 2018 года в 16.00 по местоположению земельного участка с кадастровым номером 50:27:0020625:304: Московская область, Городской округ Подольск, вблизи д. Лучинское, СНТ «Лучинское», время начала регистрации участников открытого обсуждения в 15.45.

Предложения и замечания от участников публичных слушаний, принимаются в письменном виде (по форме) по адресу: Московская область, Городской округ Подольск, г. Подольск, ул. Кирова, д. 4, каб. 311, в срок до 27.04.2018 года. Форма заявления о предложениях и замечаниях представлена в приложение 7 к Порядку предоставления предложений и замечаний по вопросу, рассматриваемому на публичных слушаниях в сфере градостроительной деятельности, опубликована по ссылке: http://www.komstroi-podolsk.ru/getfile.php?fid=94.
Аватара пользователя
летучка
Модератор
Модератор
Сообщения: 42332
Зарегистрирован: 17 дек 2004 11:07

Публичные слушания

Сообщение летучка »

Согласно постановлению Главы Городского округа Подольск от 23.03.2018 № 60-ПГ были назначены публичные слушания по вопросу предоставления разрешения на условно разрешенный вид использования «магазины» земельного участка площадью 1500 кв.м с кадастровым номером 50:56:0030305:13, категория земель – «земли населенных пунктов», вид разрешенного использования — «для индивидуального жилищного строительства», расположенного по адресу: Московская область, г. Климовск, ул. Циолковского.

Информация о проведении публичных слушаний была опубликована в газете «Подольский рабочий» от 23.03.2018 № 22, на официальном сайте Администрации Городского округа Подольск http://подольск-администрация.рф/ в разделе «Документы», подраздел «Публичные слушания» 23.03.2018, на официальном сайте

Комитета по строительству и архитектуре Администрации Городского округа Подольск http://www.komstroi-podolsk.ru/ в разделе «Архитектура и Градостроительство», подраздел «Публичные слушания» 23.03.2018, на информационном стенде у Администрации Городского округа Подольск, на территории земельного участка с кадастровым номером 50:56:0030305:13.

Открытое обсуждение по данному вопросу состоялось 4.04.2018 в 16.00, в котором приняли участие представители Комиссии – 5 чел., физические лица – 1 чел. Предложений и замечаний по вопросу, рассмотренному на публичных слушаниях, не поступало.

13.04.2018 Комиссией по подготовке проекта правил землепользования и застройки муниципального образования «Городской округ Подольск Московской области» принято решение одобрить предоставление разрешения на условно разрешенный вид использования «магазины» земельного участка площадью 1500 кв.м с кадастровым номером 50:56:0030305:13, категория земель – «земли населенных пунктов», вид разрешенного использования — «для индивидуального жилищного строительства», расположенного по адресу: Московская область, г. Климовск, ул. Циолковского. Данный земельный участок расположен на пересечении двух улиц, рядом находится ГРП, что создает не благоприятные условия при использовании земельного участка для индивидуального жилищного строительства.
Аватара пользователя
летучка
Модератор
Модератор
Сообщения: 42332
Зарегистрирован: 17 дек 2004 11:07

Публичные слушания

Сообщение летучка »

Народные избранники также внесли изменения в Положение о порядке организации и проведения публичных слушаний в муниципальном образовании «Городской округ Подольск Московской области», положение было утверждено решением горсовета № 1/11 от 21.09.2015 года. Проект решения представил заместитель главы администрации по строительному комплексу П. В. Гапонов. Он отметил, что внесение поправок в Положение связано с изменившимся действующим законодательством. Изменения вносятся в части определения порядка и срока проведения публичных слушаний по вопросам градостроительной деятельности. Теперь публичные слушания по данным вопросам могут проводиться в будние дни с 16.00 до 21.00, в выходные дни с 10.00 до 18.00. Если ранее для участия в публичных слушаниях по данным вопросам мог быть зарегистрирован любой совершеннолетний житель, то теперь для участия будут регистрировать только правообладателей земельных участков и объектов недвижимости, расположенных в границах рассматриваемой территории и зарегистрированных на данной территории. Еще один момент: ранее не была конкретно регламентирована численность жителей на территориях, на которых проводились публичные слушания. Теперь на территории в округе или в отдельно взятом населенном пункте должно быть не более 20 тысяч жителей для рассмотрения вопроса на публичных слушаниях.
http://xn----8sbancyabljpnebm2aiit6frfs ... 9-aprelya/
Аватара пользователя
летучка
Модератор
Модератор
Сообщения: 42332
Зарегистрирован: 17 дек 2004 11:07

Публичные слушания

Сообщение летучка »

Согласно постановлению Главы Городского округа Подольск от 10.04.2018 № 73-ПГ были назначены публичные слушания по вопросу предоставления разрешения на условно разрешенный вид использования «для ведения личного подсобного хозяйства» земельного участка площадью 1202 кв.м с кадастровым номером 50:27:0020625:304, категория земель – «земли сельскохозяйственного назначения», вид разрешенного использования — «для ведения садоводства», расположенного по адресу: Московская область, Подольский район, сельское поселение Лаговское, СНТ «Лучинское», вблизи д. Лучинское.

Информация о проведении публичных слушаний была опубликована в газете «Подольский рабочий» от 11.04.2018 № 27, на официальном сайте Администрации Городского округа Подольск http://подольск-администрация.рф/ в разделе «Документы», подраздел «Публичные слушания» 10.04.2018, на официальном сайте Комитета по строительству и архитектуре Администрации Городского округа Подольск http://www.komstroi-podolsk.ru/ в разделе «Деятельность», подраздел «Архитектура и Градостроительство», подраздел «Публичные слушания» 10.04.2018, на информационном стенде у Администрации Городского округа Подольск, на территории СНТ «Лучинское».

Открытое обсуждение по данному вопросу состоялось 24.04.2018 в 16.00, в котором приняли участие представители Комиссии – 6 чел., физические лица – 8 чел. Поступило 10 предложений и замечаний по вопросу, рассмотренному на публичных слушаниях.

27.04.2018 Комиссией по подготовке проекта правил землепользования и застройки муниципального образования «Городской округ Подольск Московской области» принято решение отклонить предоставление разрешения на условно разрешенный вид использования «для ведения личного подсобного хозяйства» земельного участка площадью 1202 кв.м с кадастровым номером 50:27:0020625:304, категория земель – «земли сельскохозяйственного назначения», вид разрешенного использования — «для ведения садоводства», расположенного по адресу: Московская область, Подольский район, сельское поселение Лаговское, СНТ «Лучинское», вблизи д. Лучинское. Статьей 78 Земельного кодекса Российской Федерации и ст. 4 Федерального Закона Российской Федерации «О личном подсобном хозяйстве» определено использование земель сельскохозяйственного назначения. Условно разрешенный вид использования «для ведения личного подсобного хозяйства» (код ВРИ — 2.2), который предполагает размещение жилого дома для постоянного проживания, для земельных участков с категорией «земли сельскохозяйственного назначения» не может быть применен. Для таких земельных участков с категорией «земли сельскохозяйственного назначения» возможен вид разрешенного использования «Ведение личного подсобного хозяйства на полевых участках» (код ВРИ — 1.16), который подразумевает производство сельскохозяйственной продукции без права возведения объектов капитального строительства. Также застройка садового товарищества «Лучинское» не соответствует требованиям для жилой застройки (ширина улично-дорожной сети не соответствует нормативным требованиям, отсутствие социальных объектов и т.д.).
http://xn----8sbancyabljpnebm2aiit6frfs ... ushanij-2/
Аватара пользователя
летучка
Модератор
Модератор
Сообщения: 42332
Зарегистрирован: 17 дек 2004 11:07

Публичные слушания

Сообщение летучка »

Согласно постановлению Главы Городского округа Подольск от 20.04.2018 № 92-ПГ были назначены публичные слушания по вопросу предоставления разрешения на условно разрешенный вид использования «объекты придорожного сервиса» земельного участка площадью 719 кв.м с кадастровым номером 50:56:0030203:167, категория земель – «земли населенных пунктов», вид разрешенного использования — «для ведения садоводства», расположенного по адресу: Московская область, г. Климовск, СНТ «Весна-9», уч. 127.

Информация о проведении публичных слушаний была опубликована в газете «Подольский рабочий» от 25.04.2018 № 31, на официальном сайте Администрации Городского округа Подольск http://подольск-администрация.рф/ в разделе «Документы», подраздел «Публичные слушания» 20.04.2018, на официальном сайте Комитета по строительству и архитектуре Администрации Городского округа Подольск http://www.komstroi-podolsk.ru/ в разделе «Деятельность», подраздел «Архитектура и Градостроительство», подраздел «Публичные слушания» 20.04.2018, на информационном стенде у Администрации Городского округа Подольск, на территории СНТ «Весна-9».

Открытое обсуждение по данному вопросу состоялось 11 .05.2018 в 16.00 , в котором приняли участие представители Комиссии – 3 чел., физические лица – 5 чел. Поступило 3 предложения по вопросу, рассмотренному на публичных слушаниях.
18.05.2018 Комиссией по подготовке проекта правил землепользования и застройки муниципального образования «Городской округ Подольск Московской области» принято решение отклонить предоставление разрешения на условно разрешенный вид использования «объекты придорожного сервиса» земельного участка площадью 719 кв.м с кадастровым номером 50:56:0030203:167, категория земель – «земли населенных пунктов», вид разрешенного использования — «для ведения садоводства», расположенного по адресу: Московская область, г. Климовск, СНТ «Весна-9», уч. 127, в связи с тем, что земельный участок с кадастровым номером 50:56:0030203:167 не соответствует минимальному предельному размеру земельного участка для условно разрешенного вида использования «объекты придорожного сервиса» в зоне, предназначенной для ведения садоводства и дачного хозяйства (СХ-2) , а также с невозможностью организовать выезд с данного земельного участка на перекресток автодорог с соблюдением безопасности движения. Устранить выявленное нарушение, согласно выписанного предписания от 15.03.2018 № 9 об устранении выявленных нарушений (использование земельного участка не по целевому назначению в соответствии с его разрешенным использованием).
Аватара пользователя
летучка
Модератор
Модератор
Сообщения: 42332
Зарегистрирован: 17 дек 2004 11:07

Публичные слушания

Сообщение летучка »

Депутаты утвердили дату публичных слушаний по исполнению бюджета за 2017 год - 7 июня в 11 часов в администрации.

https://www.youtube.com/watch?v=YEkT6T3xsew
Аватара пользователя
летучка
Модератор
Модератор
Сообщения: 42332
Зарегистрирован: 17 дек 2004 11:07

Публичные слушания

Сообщение летучка »

Публичные слушания по проекту Решения Совета депутатов Городского округа Подольск «Об исполнении бюджета Городского округа Подольск за 2017 год» прошли в четверг. Ранее проект бюджета опубликовали в средствах массовой информации, утвердили состав комиссии по организации и проведению публичных слушаний, на которые пригласили участников бюджетного процесса.

— Согласно основным параметрам бюджета Городского округа Подольск за 2017 год, общий объем доходов составил 11 миллиардов 130 миллионов рублей, или 89% к утвержденному плану. Общая сумма расходов — 11 миллиардов 564 миллиона рублей, что составляет 88,5% от плановых назначений. Дефицит составил 433,5 миллиона рублей, — сказала председатель Комитета по финансам и налоговой политике администрации Светлана Николаевна Коткова.

По ее словам, проект Решения об исполнении бюджета 2017 года прошел общественные слушания, теперь депутаты будут утверждать его на очередной рабочей встрече, которая пройдет до конца июня.
http://xn----8sbancyabljpnebm2aiit6frfs ... -2017-god/
Вложения
Byudzh-696x465.jpg
Аватара пользователя
летучка
Модератор
Модератор
Сообщения: 42332
Зарегистрирован: 17 дек 2004 11:07

Публичные слушания

Сообщение летучка »

Информационные материалы по теме общественных обсуждений представлены на экспозиции по адресу: Московская область, Городской округ Подольск, г. Подольск, ул. Кирова, д. 4, у каб. 311. Экспозиция открыта с 08.06.2018 по 16.07.2018 в рабочие дни. Часы работы: 9.00 до 18.00. 22.06.2018 в 15.00 на выставке проводятся консультации по теме общественных обсуждений.

В период общественных обсуждений участники общественных обсуждений (граждане, постоянно проживающие на территории, в отношении которой подготовлен данный проект межевания, правообладатели находящихся в границах этой территории земельных участков и (или) расположенных на них объектов капитального строительства, а также правообладатели помещений, являющихся частью указанных объектов капитального строительства) имеют право представить свои предложения и замечания в срок с 08.06.2018 до 16.07.2018 по обсуждаемому проекту посредством:

— записи предложений и замечаний в период работы экспозиции;
— личного обращения в уполномоченный орган;
— портала государственных и муниципальных услуг Московской области;
— почтового отправления.

Информационные материалы по проекту межевания территории, расположенной по адресу: Московская область, Городской округ Подольск, г. Подольск, ул. Парковая, 2б, размещены на сайте Комитета по строительству и архитектуре администрации Городского округа Подольск в разделе «Деятельность», подраздел «Архитектура и Градостроительство», подраздел «Публичные слушания» (www.komstroi-podolsk.ru)
Телефон для справок 55 57 39.
Согласно приказа Министерства строительства и жилищно-коммунального хозяйства Российской Федерации от 25 апреля 2017г. No 738/пр «Об утверждении видов элементов планировочной структуры», номер и (или) наименование элемента планировочной структуры, в границах которой расположена рассматриваемая территория: Городской округ Подольск, г. Подольск, микрорайон Ивановское, в границах квартала: ул. Солнечная, ул. Парковая, граница СНТ «Культработник», Парковый переулок. Категория земель – Земли населенных пунктов. Проект межевания территории разработан в целях отмены красных линий для застроенных территорий.
В рамках реализации проекта межевания планируется отмена красных линий для застроенных территорий.
Красные линии установлены вдоль автомобильной дороги общего пользования регионального значения ул. Парковая; красные линии установлены
в увязке с существующей осью дороги в границах полосы отвода. Существующие красные линии отображены в соответствии с проектом планировки
территории, утвержденным постановлением Главы города Подольска Московской области от 30.03.2012 г. No500-П «Об утверждении проекта планировки территории в границах улиц: Солнечная, Парковая, граница СНТ «Культработник», Парковый переулок». Проектом предусмотрена отмена с
уществующих красных линий и линий отступа.
Отмене подлежат красные линии и линии отступа в точках от 1 ́-6 ́, так как на данном участке, согласно утвержденных решением Совета депутатов городского округа Подольск Московской области правил землепользования и застройки от 25.01.2018 г. No 43/1 «Об утверждении Правил землепользования и застройки территории (части территории) Городского округа Подольск Московской области» планируемая ранее дорога, не предусмотрена, из чего следует, что установленные красные линии и линии отступа целесообразно отменить (указано в информационных целях, не являются предметом утверждения).
Отменяемые красные линии и линии отступ в точках от 7 ́-14 ́ подлежат утверждению в составе проекта межевания территории.
Предложения по установлению новых красных линий и линий отступа автодороги регионального значения ул. Парковая в точках от 1-3 указаны в информационных целях, не являются предметом утверждения. Ширина красных линий 30,0 метров.
Аватара пользователя
летучка
Модератор
Модератор
Сообщения: 42332
Зарегистрирован: 17 дек 2004 11:07

Публичные слушания

Сообщение летучка »

Публичные слушания по проекту решения Совета депутатов «О внесении изменений и дополнений в Устав муниципального образования «Городской округ Подольск Московской области» 29 августа в 14.00 в кабинете № 420.
Аватара пользователя
летучка
Модератор
Модератор
Сообщения: 42332
Зарегистрирован: 17 дек 2004 11:07

Публичные слушания

Сообщение летучка »

На общественные обсуждения представляется проект решения о предоставлении разрешения на условно разрешенный вид использования «магазины» земельного участка площадью 240 кв.м, с кадастровым номером 50:55:0020260:15, категория земель – «земли населенных пунктов», вид разрешенного использования — «территориальная зона-К-коммунальная зона», расположенного по адресу: Московская область, Городской округ Подольск, г. Подольск, ул. Правды, д. 31а

Общественные обсуждения проводятся в порядке, установленном статьями 5.1 и 28 Градостроительного кодекса Российской Федерации и Положением об организации и проведении общественных обсуждений по вопросам градостроительной деятельности в Городском округе Подольск Московской области.

Орган, уполномоченный на проведение общественных обсуждений — Комиссия по подготовке проекта правил землепользования и застройки муниципального образования «Городской округ Подольск Московской области».

Срок проведения общественных обсуждений — с 01.08.2018 по 24.08.2018.

Информационные материалы по теме общественных обсуждений представлены на экспозиции по адресу: Московская область, Городской округ Подольск, г. Подольск, ул. Кирова, д. 4, у каб. 311.

Экспозиция открыта с 01.08.2018 по 24.08.2018 в рабочие дни. Часы работы: 9.00 до 18.00. 16.08.2018 в 15.00 на выставке проводятся консультации по теме общественных обсуждений.

В период общественных обсуждений участники общественных обсуждений (граждане, постоянно проживающие в пределах территориальной зоны, в границах которой расположен земельный участок, в отношении которой подготовлен данный проект, правообладатели находящихся в границах этой территориальной зоны земельных участков и (или) расположенных на них объектов капитального строительства, граждане, постоянно проживающие в границах земельных участков, прилегающих к земельному участку, в отношении которого подготовлен данный проект, правообладатели таких земельных участков или расположенных на них объектов капитального строительства, правообладатели помещений, являющихся частью объекта капитального строительства, в отношении которого подготовлен данный проект) имеют право представить свои предложения и замечания в срок с 01.08.2018 до 24.08.2018 по обсуждаемому проекту посредством:

— записи предложений и замечаний в период работы экспозиции;
— личного обращения в уполномоченный орган;
— портала государственных и муниципальных услуг Московской области;
— почтового отправления.

Информационные материалы по проекту решения о предоставлении разрешения на условно разрешенный вид использования «магазины» земельного участка площадью 240 кв.м, с кадастровым номером 50:55:0020260:15, категория земель – «земли населенных пунктов», вид разрешенного использования — «территориальная зона-К-коммунальная зона», расположенного по адресу: Московская область, Городской округ Подольск, г. Подольск, ул. Правды, д. 31а, размещены на официальном сайте Администрации Городского округа Подольск http://подольск-администрация.рф/ в разделе «Документы», подраздел «Публичные слушания» и на сайте Комитета по строительству и архитектуре Администрации Городского округа Подольск в разделе «Деятельность», подраздел «Архитектура и Градостроительство», подраздел «Публичные слушания» (www.komstroi-podolsk.ru).

Телефон для справок 55 57 39.
http://xn----8sbancyabljpnebm2aiit6frfs ... zhdenij-3/
Аватара пользователя
летучка
Модератор
Модератор
Сообщения: 42332
Зарегистрирован: 17 дек 2004 11:07

Публичные слушания

Сообщение летучка »

На общественные обсуждения представляется по проект решения о предоставлении разрешения на отклонение от предельных параметров разрешенного строительства, реконструкции объектов капитального строительства на земельном участке площадью 475 кв.м, с кадастровым номером 50:55:0030513:1, расположенного по адресу: Московская область, Городской округ Подольск, г. Подольск, ул. Кирова, 17.

Общественные обсуждения проводятся в порядке, установленном статьями 5.1 и 28 Градостроительного кодекса Российской Федерации и Положением об организации и проведении общественных обсуждений по вопросам градостроительной деятельности в Городском округе Подольск Московской области.

Орган, уполномоченный на проведение общественных обсуждений — Комиссия по подготовке проекта правил землепользования и застройки муниципального образования «Городской округ Подольск Московской области».

Срок проведения общественных обсуждений — с 01.08.2018 по 24.08.2018.

Информационные материалы по теме общественных обсуждений представлены на экспозиции по адресу: Московская область, Городской округ Подольск, г. Подольск, ул. Кирова, д. 4, у каб. 311.

Экспозиция открыта с 01.08.2018 по 24.08.2018 в рабочие дни. Часы работы: 9.00 до 18.00. 16.08.2018 в 15.30 на выставке проводятся консультации по теме общественных обсуждений.

В период общественных обсуждений участники общественных обсуждений (граждане, постоянно проживающие в пределах территориальной зоны, в границах которой расположен земельный участок, в отношении которой подготовлен данный проект, правообладатели находящихся в границах этой территориальной зоны земельных участков и (или) расположенных на них объектов капитального строительства, граждане, постоянно проживающие в границах земельных участков, прилегающих к земельному участку, в отношении которого подготовлен данный проект, правообладатели таких земельных участков или расположенных на них объектов капитального строительства, правообладатели помещений, являющихся частью объекта капитального строительства, в отношении которого подготовлен данный проект) имеют право представить свои предложения и замечания в срок с 01.08.2018 до 24.08.2018 по обсуждаемому проекту посредством:

— записи предложений и замечаний в период работы экспозиции;
— личного обращения в уполномоченный орган;
— портала государственных и муниципальных услуг Московской области;
— почтового отправления.

Информационные материалы по проекту решения о предоставлении разрешения на отклонение от предельных параметров разрешенного строительства, реконструкции объектов капитального строительства на земельном участке площадью 475 кв.м, с кадастровым номером 50:55:0030513:1, расположенного по адресу: Московская область, Городской округ Подольск, г. Подольск, ул. Кирова, 17, размещены на официальном сайте Администрации Городского округа Подольск http://подольск-администрация.рф/ в разделе «Документы», подраздел «Публичные слушания» и на сайте Комитета по строительству и архитектуре Администрации Городского округа Подольск в разделе «Деятельность», подраздел «Архитектура и Градостроительство», подраздел «Публичные слушания» (www.komstroi-podolsk.ru).

Телефон для справок 55 57 39.
http://xn----8sbancyabljpnebm2aiit6frfs ... zhdenij-4/
Аватара пользователя
летучка
Модератор
Модератор
Сообщения: 42332
Зарегистрирован: 17 дек 2004 11:07

Публичные слушания

Сообщение летучка »

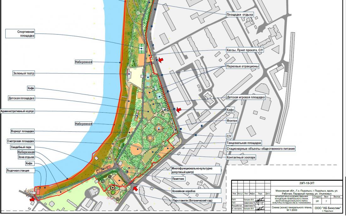
28 августа 2018 года состоятся общественные обсуждения концепции развития (реконструкции и благоустройства) парка им.В.Талалихина. Место проведения мероприятия: "Зеленая эстрада" в парке им.В.Талалихина, начало в 18.00.
23 августа 2018 года в ДК им.1 мая в микрорайоне Климовск в 18.00 состоятся общественные обсуждения концепции развития (реконструкции и благоустройства) детского городского парка в микрорайоне Климовск.
Вложения
677.jpg
676.jpg
Ответить

Вернуться в «Подольск»