Парки, скверы, аллеи Подольска

Жизнь города, его проблемы, новости

Модераторы: летучка, mike

Аватара пользователя
летучка
Модератор
Модератор
Сообщения: 42332
Зарегистрирован: 17 дек 2004 11:07

Парки, скверы, аллеи Подольска

Сообщение летучка »

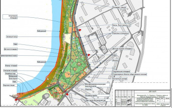
14 августа 2018 года в 18.00 в ДК "Машиностроитель" состоятся общественные обсуждения по проекту благоустройства территории для создания многофункционального парка культуры и отдыха "Дубрава" по адресу: Московская область, Городской округ Подольск, микрорайон Климовск.

Основным, принципиальным решением архитектурного и художественного облика парковых объектов и парковых сооружений по данной концепции является исключение загромождения существующего лесопарка архитектурой городской застройки, которая могла бы уничтожить лесопарковую, природную среду. Потому предложено не сооружать традиционные архитектурные коробки, а скрыть требуемые, одноэтажные, парковые объекты до половины высоты этажа, путём заглублений их в землю, с плавным поднятием кровли от уровня поверхности земли до требуемой высоты в гребне этих строений (создав тем самым вид колотых, природных холмов, как части природы, но с высоко эстетическим, архитектурно – художественным исполнением.

Все расчётные показатели, состав зон парка, включая перечень требуемых парковых объектов, сооружений и требуемых их площадей, определён согласно «Региональному парковому стандарту Московской области №1098/55 от 23 декабря 2013 года.

Вдоль продольной оси в активной его зоне предполагается расположить: аттракционный комплекс, детский парк, досуговый центр, зону массовых мероприятий, спортивно-развлекательный центр, а также кафе, рестораны и павильоны различного назначения.

В зоне спокойного отдыха (на территории лесопарка) размещены площадки для барбекю, административно-хозяйственная зона, буккроссинг, прогулочные дорожки, места для отдыха. Самыми посещаемыми объектами парка «Дубрава», безусловно, станут: летняя танцевальная площадка, скейт-парк, веревочный городок, мини-зоопарк, а также кафе «Корабль с плавающим островом». В парке планируется обустроить фонтан, который в летнее время будет привлекать отдыхающих всех возрастов.

Функциональные зоны парка расположены обособленно и не пересекаются внахлёст друг с другом. При этом все функциональные зоны расположены с минимальными расстояниями по доступности друг от друга, вдоль основных аллей парка .

Главные, основные аллеи парка решены по расчёту количества одновременно находящихся в парке людских потоков и обеспечивают сохранение всех существующих деревьев, произрастающих непосредственно на проектируемых аллеях (без сноса и пересадок этих деревьев) .

Принципиальной особенностью решения архитектурного и художественного облика парка является сохранение сложившегося живописного, природного Лесопарка, с лесистыми берегами, в сочетании с красивой водной гладью разлива реки Петрица.

Примечательной особенностью парка является историческая значимость данного места, связанного с жизнью и творчеством известного русского художника – живописца Поленова, проживавшего некогда в этих местах. В настоящее время в парке «Дубрава» (на участке существующей детской площадки), установлен памятник Поленову. И если концепция парка обретет реальные очертания, парк «Дубрава» станет одной из ярких достопримечательностей Большого Подольска и подмосковного региона.
https://www.komstroi-podolsk.ru/news/n659.html

Местные жители, не в восторге, мягко говоря. Потому что они видят, на что ушло уже около 40 миллионов рублей. Строить у нас не умеют, а вот деньги тратить - очень даже. В прошлом году у Петрицы делали пляж. В этом году на песке растет трава и срут собаки.
Вложения
659.jpg
Аватара пользователя
летучка
Модератор
Модератор
Сообщения: 42332
Зарегистрирован: 17 дек 2004 11:07

Парки, скверы, аллеи Подольска

Сообщение летучка »

В Подольском городском парке им. Виктора Талалихина состоялась встреча депутата мос обл думы Павала Максимовича и председателя фракции ЕР в совете депутатов городского округа Подольск Валерия Теличко с активистами городского Совета ветеранов и гостями парка.
Обсудили проект развития парка, жители высказали свои пожелания. Все они взяты на оперативный контроль и будут выполнены.
http://www.er-podolsk.ru/news/20180815/2386
Вложения
2018-08-17_100419.png
2018-08-17_100419.png (168.3 КБ) 15789 просмотров
Аватара пользователя
летучка
Модератор
Модератор
Сообщения: 42332
Зарегистрирован: 17 дек 2004 11:07

Парки, скверы, аллеи Подольска

Сообщение летучка »

28 августа 2018 года состоятся общественные обсуждения концепции развития (реконструкции и благоустройства) парка им.В.Талалихина. Место проведения мероприятия: "Зеленая эстрада" в парке им.В.Талалихина, начало в 18.00.
23 августа 2018 года в ДК им.1 мая в микрорайоне Климовск в 18.00 состоятся общественные обсуждения концепции развития (реконструкции и благоустройства) детского городского парка в микрорайоне Климовск.
Вложения
677.jpg
676.jpg
Аватара пользователя
летучка
Модератор
Модератор
Сообщения: 42332
Зарегистрирован: 17 дек 2004 11:07

Парки, скверы, аллеи Подольска

Сообщение летучка »

Тетки переорали самого председателя комитета по культуре. "Никаких признаков для отчаяния нет!" - сказал он им.
Коцепция реконструкции рассчитана на 25 лет.

https://www.youtube.com/watch?v=rOGUtWOvDOA
Аватара пользователя
летучка
Модератор
Модератор
Сообщения: 42332
Зарегистрирован: 17 дек 2004 11:07

Парки, скверы, аллеи Подольска

Сообщение летучка »

Работы по обустройству новой современной пешеходной зоны на ул.50 лет ВЛКСМ идут полным ходом. В настоящее время производятся следующие виды работ:


­ земляные работы по устройству инженерных коммуникаций и установке электротехнических изделий (кабели электроосвещения и подсветки зеленых насаждений, кабели связи для обеспечения видеонаблюдения и Интернет, трубопроводы системы водоснабжения и канализация, поливочного водопровода, закладные детали фундамента для опор освещения, электрические распределительные щиты). Выполнено более половины работ, предусмотренных проектом.
­ строительство автомобильного проезда к жилым домам №16, 18, 18а по ул. 50 лет ВЛКСМ с устройством дополнительных парковочных мест. Выполнено корыто, завершаются работы по устройству песчано-щебеночного основания дороги.
­ построен новый въезд на территорию автомойки по ул. 50 лет ВЛКСМ, д. 20, который в настоящее время используется как временный проезд к жилым домам №16, 18, 18а.
­ завершается бетонирование подпорной стенки, отделяющей пешеходную зону от существующего гаражно-строительного кооператива по ул. 50 лет ВЛКСМ, д. 17.
­ завершается выполнение работ по защите существующих кабельных линий электроснабжение и прокладке резервной электрической канализации.
­ начаты работы по устройству новой автомобильной парковки вблизи ТЦ «Галерея» и ГСК «Межшоссейный» взамен демонтируемой согласно проекту благоустройства.
Напомним, что по итогам рейтингования территорий (в марте 2018 года) жители Большого Подольска сделали свой выбор в пользу того или иного общественного пространства, которое должно быть благоустроено в первую очередь в рамках приоритетного проекта «Комфортная городская среда».

В голосовании участвовали пять территорий. Большинство голосов (более 51 тысячи) было отдано жителями за благоустройство пешеходной зоны по ул. 50 лет ВЛКСМ.



Эта пешеходная зона будет располагаться в центре города на площади более 6 га и иметь протяженность около километра, от ул. Кирова до ул. Б. Серпуховская. Реализацию благоустройства планируется выполнить в два этапа:



1 этап строительства – от ул. Кирова до ул. Свердлова;

2 этап – от ул. Свердлова до ул. Б. Серпуховская.



Пешеходная аллея бульвара предусмотрена в мощении из разноформатной тротуарной плитки. Предусмотрены различные функциональные зоны: прогулочная и тихого отдыха, спортивная и детская площадки, зона массовых мероприятий. На всем протяжении улицы предусмотрена велодорожка с движением в обоих направлениях. В вечернее время бульвар будет насыщен оригинальной разноцветной архитектурно-художественной подсветкой зеленых насаждений и малых архитектурных форм. Для освещения территории в вечернее и ночное время предусмотрены уличные светодиодные светильники. А неповторимый облик бульвара создадут оригинальные полукруглые арки с подсветкой.

Бульвар будет оснащен современными электронными системами «Умный город»: это умные пешеходные переходы, которые помогают людям переходить дорогу, рисуя в реальном времени красные линии «стой» и зеленые линии «иди», интерактивная плитка с возможностью программирования нескольких десятков подвижных игр для детей, светодиодная брусчатка. Современному человеку трудно представить существование без доступа к сети интернет, поэтому в середине улицы предусмотрена установка системы «Клевер», раздающей сигнал WiFi в радиусе до 500 м. Также в ней реализована возможность подзарядки мобильных телефонов и аксессуаров.

Безопасность пребывания людей будет обеспечивать система видеонаблюдения «Безопасный регион»: это порядка 30-ти видеокамер, которыми будет охвачена вся территория пешеходной зоны.
https://www.komstroi-podolsk.ru/
Вложения
692.jpg
Аватара пользователя
летучка
Модератор
Модератор
Сообщения: 42332
Зарегистрирован: 17 дек 2004 11:07

Парки, скверы, аллеи Подольска

Сообщение летучка »

Лес в парке Талалихина у реки превратили в свалку, урны переполнены, мусор не вывозится.
https://dobrodel.mosreg.ru/claims/2012938
Вложения
0da4239c-b4bd-482a-a93a-c3d50e3dc870.jpg
Аватара пользователя
летучка
Модератор
Модератор
Сообщения: 42332
Зарегистрирован: 17 дек 2004 11:07

Парки, скверы, аллеи Подольска

Сообщение летучка »

Концепция развития парка Талалихина

https://www.youtube.com/watch?v=mK0ZrFTkGqw
konopyshka
Member
Member
Сообщения: 168
Зарегистрирован: 11 дек 2009 14:39

Парки, скверы, аллеи Подольска

Сообщение konopyshka »

Пусть все получится!
Но это ж сколько деревьев надо вырубить... А сколько денег и времени на это все. Плюс, прежде чем пускать лодочки, Пахру надо почистить.
Аватара пользователя
Aviator
Странный гуру с адептами
Странный гуру с адептами
Сообщения: 33250
Зарегистрирован: 28 май 2007 10:42

Парки, скверы, аллеи Подольска

Сообщение Aviator »

konopyshka писал(а): 28 сен 2018 23:58 Пусть все получится!
Естественно, пусть получится! Все только за! :clap:
Раз у Воробьёва почти получилось облагоустроиться по-большому - и у Пестова тоже получится, пусть и по-малому! :5+:
Скрытый текст:
Не без уважения, ваш Вольдемар Абрамович
Аватара пользователя
Севенши
Super expert
Super expert
Сообщения: 6714
Зарегистрирован: 06 янв 2010 16:12
Откуда: город ПОДОЛЬСК

Парки, скверы, аллеи Подольска

Сообщение Севенши »

konopyshka писал(а): 28 сен 2018 23:58 Но это ж сколько деревьев надо вырубить... А сколько денег и времени на это все.
нисколько, этого не будет просто на все +100500 говорю ;)
…наиболее выгодным для производства является тот товар, который необходимо выбрасывать после использования.(William Painter)
«Конечно, не каждый человек это на себе ощущает. Но это правда!»
Весь объем информации держать в голове неспособен ни один человек, кроме Путина (с)
Аватара пользователя
momus
Advanced Member
Advanced Member
Сообщения: 391
Зарегистрирован: 15 апр 2011 14:03

Парки, скверы, аллеи Подольска

Сообщение momus »

Aviator писал(а):
Раз у Воробьёва почти получилось облагоустроиться по-большому - и у Пестова тоже получится, пусть и по-малому! :5+:
Скрытый текст:
«Вот же круто!.. А зачем?» :)
Аватара пользователя
летучка
Модератор
Модератор
Сообщения: 42332
Зарегистрирован: 17 дек 2004 11:07

Парки, скверы, аллеи Подольска

Сообщение летучка »

Первую часть пешеходной зоны улицы 50-летия ВЛКСМ В Городском округе Подольск — от ул. Кирова до ул. Свердлова — планируется завершить в этом году. Об этом сообщил Олег Сабинин, начальник производственного отдела МКУ «Градостроительное управление».

Начали с прокладки коммуникаций. Под землю укладывают около 7 километров кабеля: для освещения, подсветки деревьев, интернета, камер видеонаблюдения и современных электронных систем «Умный город».

Это интерактивная площадка для детей с возможностью программирования нескольких десятков подвижных игр. Это светодиодная брусчатка. Также предусматривается строительство умного пешеходного перехода, где переходить дорогу людям будет помогать светящаяся полоса наземная, которая будет обрисовывать красной линией «стой» и зеленой линией «иди», — рассказал Олег Сабинин.

Вся пешеходная аллея будет выполнена в мощении из разноформатной тротуарной плитки. Это порядка 6 тысяч квадратных метров мощения. Это будет очень красиво выглядеть, поскольку предусматривается три колористических решения, — продолжил Олег Геннадьевич.

Вдоль бульвара будут установлены скамейки для отдыха и велопарковки. Остальную территорию засадят газонами, цветами, кустарниками и деревьями. А бетонное ограждение котельной будет отделено живой изгородью из высоких туй. По газону будут сделаны тропинки из мраморной крошки. Особенно красиво бульвар будет выглядеть вечером.

Это архитектурно-художественная подсветка зеленых насаждений, она разноцветная, программируется. Территория вся освещается светодиодными светильниками в современном стиле. Неповторимый облик бульвару должны придать полукруглые арки индивидуального изготовления со светодиодной подсветкой, — заключил начальник производственного отдела МКУ «Градостроительное управление».

А еще на территории будут фонтан, Wi-Fi и даже возможность подзарядки гаджетов. Бульвар будет выполнен в современном стиле с погружением в историческое прошлое, символизирующее название данной улицы.

Площадь благоустраиваемой территории 62255 кв. м. Протяженность прокладываемой автодороги: от ул. Кирова до ул. Свердлова – 488 м, от ул. Литейной до ул. Б. Серпуховской – 240 м.

Источник: Телекомпания «Кварц»

Фото Кирилла Шутилина
http://xn----8sbancyabljpnebm2aiit6frfs ... e-podolsk/
Вложения
2018.10.09.jpg
2018.10.0.jpg
Аватара пользователя
летучка
Модератор
Модератор
Сообщения: 42332
Зарегистрирован: 17 дек 2004 11:07

Парки, скверы, аллеи Подольска

Сообщение летучка »

В пятницу, 19 октября, на будущем бульваре 50 лет ВЛКСМ в Подольске высадили более 400 саженцев туи, сирени, клена, яблони, черемухи, а также кустарников – чубушника, форзиции, кизильника, барбариса и других.
https://www.youtube.com/watch?v=TUTjAxVvuYA

Бульвар будет называться "Молодой Подольск", а не 50 лет ВЛКСМ.
Аватара пользователя
летучка
Модератор
Модератор
Сообщения: 42332
Зарегистрирован: 17 дек 2004 11:07

Парки, скверы, аллеи Подольска

Сообщение летучка »

Скверу им. Карелова от силы год, а уже отсутствует половина, если не больше скамеек, на беговой дорожке "провал", который чреват травмами
https://dobrodel.mosreg.ru/claims/1930517

Ответ директора МКУ "Окружное хозяйство": "По существу поставленного вопроса сообщаю. Ремонт лавочек будет произведен в срок до 29.11.2018".

"Беговая" дорожка, которая вообще-то велодорожка, проигнорирована.
Вложения
488.jpg
21cff5b2-752d-4d63-8194-09c91ad51ea5.jpg
1aa97.jpg
Аватара пользователя
летучка
Модератор
Модератор
Сообщения: 42332
Зарегистрирован: 17 дек 2004 11:07

Парки, скверы, аллеи Подольска

Сообщение летучка »

Перспективы Детского парка на Весенней

https://www.youtube.com/watch?time_cont ... ljHcyKZ5w8
Аватара пользователя
летучка
Модератор
Модератор
Сообщения: 42332
Зарегистрирован: 17 дек 2004 11:07

Парки, скверы, аллеи Подольска

Сообщение летучка »

Аватара пользователя
летучка
Модератор
Модератор
Сообщения: 42332
Зарегистрирован: 17 дек 2004 11:07

Парки, скверы, аллеи Подольска

Сообщение летучка »

Концепция реконструкции и благоустройства ПКиО имени Виктора Талалихина, разработанная архитектурным бюро «Бинолим».

ПРОГРАММА ПО ФОРМИРОВАНИЮ ПАРКА

1. Устройство набережной вдоль реки Пахры:
Необходимо предусмотреть размещение на набережной следующих функций:
- прогулочная зона вдоль набережной;
- зоны неактивного отдыха (малые архитектурные формы, террасы летних кафе и т.п.);
- функциональные зоны для различных видов активного отдыха (спортзоны, дорожки для велосипедных прогулок и прогулок на роликах);
- зоны отдыха на реке Пахре (катание на лодках и катамаранах);
- ограждение набережной, обеспечивающее ее безопасность;
- связать пешеходные прогулочные зоны парка спусками к набережной с устройством смотровых площадок с лестницами, ведущими к воде.

2. Создание новой зоны в парке «Голландская деревня», в состав которой войдут:
- культурно-досуговый центр;
- спортивная база отдыха с раздевалками, общественными и командными санузлами, душевыми и прочими вспомогательными помещениями;
- павильон для тира;
- спортивная база;
- площадки для игры в баскетбол, волейбол, теннис;
- площадка веревочного парка;
- площадка скейт-парка;
- площадка для пейнтбола;
- кафе со свободной wi-fi зоной;
- площадки «Привал» для пикников;
- площадки аттракционов;
- амфитеатр для общественных мероприятий;
- галерея павильонов, стилизованная под голландские домики, для проведения ярмарок и фестивалей и размещения технических служб парка;
- административно-хозяйственное здание.

3. Создание 4-х дополнительных входов в парк и реконструкция 2-х существующих и приведение их в соответствие с нормативными требованиями «Региональный парковый стандарт Московской области» №1098/55 от 23.12.2013 г.

4. Создание «Парка памяти» на территории, прилегающей к Воскресенской церкви.
В парк войдут:
- оранжерея для выращивания и экспозиции экзотических растений;
- озеленение парка с цветочным оформлением;
- аллеи парка, оборудованные малыми архитектурными формами, а также подпорными стенками, декоративными скульптурами и питьевым фонтанчиком в виде грота.

5. Благоустройство аллеи «Семейной», которая пролегает вдоль забора по Парадному проезду, начиная от входа №4 и заканчивая входом №5.
Проектом предусматриваются следующие мероприятия:
- разместить малые архитектурные формы в стиле «ампир», продолжая традицию уже построенных на аллее балюстрад;
- оборудовать спуски ко 2-му и 1-му уровню набережной;
- в рамках проекта предлагается разместить историческую скульптуру бога Бахуса на площадке перед спуском вдоль липовых аллей;
- проложить велосипедную дорожку.

6. Реконструировать «Зеленый театр».
Цель реконструкции:
- устройство двух спусков вдоль «Зеленого театра»;
- создание дополнительных технических помещений;
- устройство большой смотровой площадки;
- заложить конструкции для устройства тентового навеса над трибунами зрителей.

7. Реконструкция площади у Главного входа в парк со стороны улицы Рабочей и «Танцевальной веранды».
Мероприятия по реконструкции предусматривают соблюдение традиций и насыщение новыми функциями:
- усилить скульптурную композицию памятника Виктору Талалихину. Вместо ряда туй, которые закрывают скульптуру для обозрения, расширить площадку, установив декоративную подпорную стенку с сидениями, торшеры.
- противоположную сторону украсить декоративными скамьями, имитирующими трибуны, врезанными в рельеф пригорка;
- площадь замостить крупноразмерными плитами и оборудовать сухой фонтан;
- «Танцевальную веранду» предлагается восстановить, но в более легком и изящном варианте. Площадка должна стать многофункциональной и являться местом проведения самых разных мероприятий – конкурсов, фестивалей, праздников;
Площадь «Танцевальной веранды» замостить красивой декоративной плиткой, оборудовать сцену и сидения для зрителей по бокам площадки.

8. Организовать парковочные места вдоль улицы Рабочей и Парадного проезда.

9. Создать комфортабельную зону отдыха в районе пляжа.
В зоне пляжа предусмотреть:
- открытый бассейн;
- раздевалки с туалетами и душевыми;
- пункт проката оборудования;
- детский игровой городок;
- площадку для пляжного волейбола;
- кафе.

АРХИТЕКТУРНЫЕ РЕШЕНИЯ

Проект благоустройства ПКиО им. Виктора Талалихина разработан с учетом сложившейся градостроительной ситуации и существующей планировки самого парка, а также, в целях установления единых требований к организации, реконструкции парков, сохранения исторической и природной среды, создания благоприятных, безопасных и комфортных условий для жителей Московской области, на основании постановления Правительства Московской области от 23 декабря 2013 г. № 1098/55 «Региональный парковый стандарт Московской области».
Основная цель проекта не только привести все к региональному стандарту парков Московской области, но и создать природно-рекреационный комплекс, который войдет в систему городских парков области, функционально разнообразить, насытить спортивной инфраструктурой, инфраструктурой для проведения культурных мероприятий горожанами разных возрастов.
Перед нами стоит задача создать комплексное благоустройство территории парка. Проект благоустройства ПКиО им. Виктора Талалихина представляет собой совокупность интерактивного времяпровождения и тихого уединенного отдыха, классического стиля с современными стандартами парка, его прошлого и настоящего. Зонирование парка призвано не только разграничить пространство на отдельные зоны, но и отразить временные циклы его истории.
Проектом предусматривается выделение в парке следующих основных зон: лесопарковая, прогулочная, спортивно-оздоровительная, отдыха детей, массовых мероприятий, парковых аттракционов, административно-хозяйственная, зона размещения досуговых объектов.

1. Прогулочная и тихого отдыха зона включает в себя лесопарковую территорию с существующими деревьями и предназначена для проведения тихого отдыха, длительных пеших прогулок. Она занимает основную площадь парка 18 га. Для удобной навигации в парке продумана дорожно-тропиночная сеть, общая протяженность которой составит около 10 километров.

По всей территории зоны предлагается организовать:
- места для тихого отдыха - скамьи, беседки, парковую мебель для отдыха, питьевые фонтанчики;
- бук-кроссинг - для чтения книг и их обмена;
- общественные туалеты с площадками для контейнеров для сбора мусора;
- участки для заготовки и продажи кормов, для кормления животных и птиц, обитающих в парке.
Вся территория лесопарковой зоны освещена парковыми фонарями, оборудованными энергосберегающими лампами.

К прогулочной зоне нужно отнести и заложенную проектом набережную вдоль реки Пахры.
Базовыми элементами проекта становятся две набережные: нижняя, проходящая прямо у воды вдоль нижней границы склона, и верхняя, занимающая вытянутый участок, вверху обрывающаяся и собирающая на себе все основные видовые точки с кульминацией на центральной смотровой площадке. Нижняя набережная имеет характер легкой конструкции, вытянувшейся в линию вдоль берега и приглашающей к неспешному спокойному променаду в непосредственной вблизи к водной глади. Обе набережные связываются системой лестниц и пандусов. Крутой склон с существующими взрослыми деревьями подчеркивается дополнительными посадками, выполняющими также функцию укрепления склона.
Необходимо предусмотреть размещение на набережной следующих функций:
- прогулочная зона вдоль набережной;
- зоны неактивного отдыха (малые архитектурные формы, террасы летних кафе и т.п.);
- функциональные зоны для различных видов активного отдыха (спортзоны, дорожки для велосипедных прогулок и прогулок на роликах);
- зоны отдыха на реке (катание на лодках и катамаранах);
- ограждение набережной, обеспечивающее ее безопасность;
- связать пешеходные прогулочные зоны парка спусками к набережной с устройством смотровых площадок с лестницами, ведущими к воде.
Общая протяженность набережной - 1500 метров. Ширина набережной от 3 до 10 метров (в районе лодочных станций).
Набережная должна стать соединяющим звеном всех зон парка и стать любимым местом отдыха жителей Подольска, удовлетворять запросам людей с различными досуговыми интересами и предпочтениями.

2. Спортивная зона включает в себя площадки с тренажерами, которые распределены по всей территории парка: площадка для воркаута, мини-футбольное поле, баскетбольная площадка, волейбольная площадка, площадка для игры в теннис, а также велодорожки, проложенные по всей линейной территории парка, включая набережную.
Спортивно-оздоровительная зона организована на свободной территории, расположенной в северной части парка, которая ранее не использовалась и занимает до 5 га.
На этом участке спортивной зоны запроектированы:
- спортивная база отдыха с раздевалками, с общественными и командными санузлами, с душевыми и прочими вспомогательными помещениями;
- площадки для игры в баскетбол, волейбол, теннис;
- площадка веревочного парка;
- площадка скейт-парка;
- площадка для пейнтбола;
- кафе со свободной wi-fi зоной.

3. Зона отдыха детей для разных возрастов подразумевает размещение аттракционов, спортивных площадок, игровых комплексов. В центральной части парка существует сложившийся комплекс аттракционов и детских площадок. Новые места для отдыха детей планируется рассредоточить по территории всего парка. Они будут представлять собой как игровые мини-городки, так и спортивные площадки.

4. Зоны массовых мероприятий: площадка «Зеленого театра», «Танцевальная веранда», площадка у Главного входа, которые необходимо реконструировать, вдохнуть в них новую жизнь, насытить новыми функциями. Одновременно реконструкция этих объектов должна рассматриваться как соблюдение традиций и их углубление.
«Танцевальную веранду» предлагается восстановить, но в более легком и изящном варианте. Танцевальная площадка должна стать многофункциональной и являться местом проведения самых разных мероприятий – конкурсов, фестивалей, праздников. «Зеленый театр» находится в удовлетворительном состоянии, но там необходимо предусмотреть дополнительные помещения для артистов и запроектировать спуски лестниц вдоль боковых границ «Зеленого театра» и продолжить их до набережной.
На площадке у Главного входа в парк проектом предлагается усилить скульптурную композицию памятника Виктору Талалихину. Вместо ряда туй, которые закрывали скульптуру для обозрения, расширить площадку, установив декоративную подпорную стенку с сидениями. Противоположную сторону украсить декоративными скамьями, врезанными в рельеф пригорка. На территории, плотно прилегающей к Воскресенской церкви, предлагается разбить ботанический сад с региональной планировкой и оранжереями, расположенными вдоль ограды парка по улице Рабочей.
Новые объекты для массовых мероприятий планируется разместить в северной части парка.

5 Зона парковых аттракционов.
Основная существующая зона расположена в центральной части парка и включает в себя:
- существующие площадки с парковыми аттракционами общей площадью 6 га, к которым примыкают: фонтан и круглая площадь с расположенной на ней скульптурной композицией Михаила Лермонтова, несколько с кафе с летней верандой и павильоны, которые необходимо модернизировать и привести к единому архитектурному стилю.
Новые площадки с аттракционами появятся в северной части парка в районе артезианской скважины.
Следует отметить, что вся прогулочная сеть объединена и имеет замкнутый цикл.
Планировочные решения и парковые объекты предусматривают равное пользование и отдых в парке для детей и людей с ограниченными возможностями.

6 Административно-хозяйственная зона.
Пункты охраны предусматриваются:
- при главном входе;
- в зоне массовых мероприятий;
- в зоне парковых аттракционов.
Пункты проката предусматриваются (не менее 3-5 пунктов проката на парк):
- при Главном и остальных входах;
- в административно-хозяйственной и спортивных зонах.
Общественные туалеты предусматриваются во всех зонах парка, в том числе непосредственно во всех стационарных парковых объектах.
Общественные объекты питания предусмотрены:
- в зоне массовых мероприятий;
- в зоне парковых аттракционов, в зоне Главного и остальных входов в парк, кроме служебного;
- в зоне пикников и прибрежной, пляжной зоны;
- в спортивно-развлекательной зоне;
- также предлагается создание передвижных пунктов проката, киосков общественного питания на всех основных парковых аллеях, в местах массовых прогулок и скопления людей.
В административно-хозяйственной зоне предусматривается разместить:
- дирекцию и бухгалтерию парка;
- техническую и аварийную службы парка;
- службу по благоустройству и уборке территории парка;
- ремонтную службу парка с ремонтными и складскими помещениями;
- складскую транспортную службу парка с площадкой и складскими помещениями для спецтранспорта парка;
- службу охраны правопорядка (опорный пункт охраны);
- пункт медицинской службы (медпункт) по оказанию медицинской помощи.
Вложения
ZTn-qLRsVOU.jpg
WhU-DNHWsiM.jpg
ufGsnom2SlU.jpg
srvglEuCBxk.jpg
q9wuZZ1Y9Ns.jpg
PSgMzqRjZck.jpg
lnQlsvLIAoA.jpg
H7OGlhU2mnU.jpg
fIcypLPG3LE.jpg
eUVETdW_W2I.jpg
Аватара пользователя
Aviator
Странный гуру с адептами
Странный гуру с адептами
Сообщения: 33250
Зарегистрирован: 28 май 2007 10:42

Парки, скверы, аллеи Подольска

Сообщение Aviator »

летучка,
Откуда деньги на всё это? Или так просто, картинки нарисовали?
На набережной у моста с разных сторон чего только не обещали и не проектировали, а как была одна баня с борделемгостиницей, так одна и стоит. Напротив - недострой, но картинки тоже были красивые. Детский парк с другой стороны рисовали, а там только спалили/снесли дома да стоянку построили.
Был вчера на ул. 50 лет ВЛКСМ, там по виду половину работ только сделали и оставили до весны. С лета делали. Хотя, площадь и объем работ там меньше в разы.
Не без уважения, ваш Вольдемар Абрамович
Аватара пользователя
летучка
Модератор
Модератор
Сообщения: 42332
Зарегистрирован: 17 дек 2004 11:07

Парки, скверы, аллеи Подольска

Сообщение летучка »

Aviator, это концепция где-то до 2025 года.

Губернатор сказал, что все парки Подмосковья должны быть в одном стандарте. Как и остановки.
Так что пилить и пилить Шурам.
Аватара пользователя
Aviator
Странный гуру с адептами
Странный гуру с адептами
Сообщения: 33250
Зарегистрирован: 28 май 2007 10:42

Парки, скверы, аллеи Подольска

Сообщение Aviator »

Aviator писал(а): 10 дек 2018 08:26 это концепция где-то до 2025 года
А, ну, может, и пронесет, и только на картинках попилили. Или он и до 2025-го досидит? facepalm: crazy:
Не без уважения, ваш Вольдемар Абрамович
Аватара пользователя
Севенши
Super expert
Super expert
Сообщения: 6714
Зарегистрирован: 06 янв 2010 16:12
Откуда: город ПОДОЛЬСК

Парки, скверы, аллеи Подольска

Сообщение Севенши »

судя по первой картинке, улица Рабочая будет заканчиваться возле входа в парк? :-k
…наиболее выгодным для производства является тот товар, который необходимо выбрасывать после использования.(William Painter)
«Конечно, не каждый человек это на себе ощущает. Но это правда!»
Весь объем информации держать в голове неспособен ни один человек, кроме Путина (с)
demiurg2013
Out of range
Out of range
Сообщения: 3
Зарегистрирован: 31 май 2013 11:37

Парки, скверы, аллеи Подольска

Сообщение demiurg2013 »

Очень понравилась иллюминация в парке Талалихина! Благодарность г-ну Теличко В. А. и его команде! С Новым годом! :clap:
Аватара пользователя
летучка
Модератор
Модератор
Сообщения: 42332
Зарегистрирован: 17 дек 2004 11:07

Парки, скверы, аллеи Подольска

Сообщение летучка »

Автор фото Анатолий
Вложения
mDPdcAKerTU.jpg
BOsg2X_OEj0.jpg
Аватара пользователя
летучка
Модератор
Модератор
Сообщения: 42332
Зарегистрирован: 17 дек 2004 11:07

Парки, скверы, аллеи Подольска

Сообщение летучка »

На территории загородного клуба «Айвенго» Городского округа Подольск приступили к строительству Детского парка культуры и отдыха по типу панда-парка. Это – веревочная трасса для детей всех возрастов.

— Площадь парка 7 гектаров, на сегодняшний день он сформирован, поставлен на кадастровый учёт, разработана концепция создания здесь детского спортивного развлекательного парка. Парк будет состоять из 3-х функциональных зон. Самая большая часть парка – это зона дорожно-тропиночной сети протяжённостью 2,5 километра для спокойного отдыха и прогулок в лесу. Вторая зона – спортивно-развлекательная, ядро которой составит верёвочный парк, рассчитанный на разные возрастные группы. Он будет создан по принципу панда-парка. Третья зона предназначена для массовых культурно-развлекательных мероприятий, – рассказал первый заместитель главы администрации Городского округа Подольск Виктор Чуб. Сейчас в части парка проведены санитарная и противопожарная обработки, намечена дорожно-тропиночная сеть. К лету будет создан верёвочный парк, которой станет круглогодичным. Летом здесь можно будет совершать пешие прогулки и посетить веревочный парк, а зимой построят снежные крепости и обустроят лыжную трассу, – поделился планами Виктор Владимирович.

Сейчас эта зона примыкает к территории загородного клуба «Айвенго». Здесь работает каток, который пользуется популярностью у жителей Подольска, пункт проката коньков и сеть общественного питания.

– На сегодняшний момент мы построили бельчатник, где разводим белок разных пород. После того, как они адаптируются, мы их переселим в наш замечательный парк. Кроме белок мы запустили в парк бурундуков, которые очень хорошо у нас приживаются. К весне планируем создать мини-зоопарк, в котором будут представлены редкие животные, занесенные в Красную книгу. Для нас очень привлекательно открытие Детского парка культуры и отдыха рядом с нашей территорией, так как в наш комплекс приезжают отдыхать много семей с детьми, и нам бы хотелось, чтобы детям здесь было интересно, – говорит генеральный директор загородного клуба «Айвенго» Оксана Кармелюк.

Новый панда-парк станет отличным местом досуга для любителей активных развлечений и здорового образа жизни всех возрастов.
http://xn----8sbancyabljpnebm2aiit6frfs ... anda-park/
Вложения
panda-park-osnovnoj-696x464.png
panda-park-2.png
panda-park-3.png
panda-park-1.png
Аватара пользователя
Cortez
Member
Member
Сообщения: 165
Зарегистрирован: 25 июл 2017 10:40

Парки, скверы, аллеи Подольска

Сообщение Cortez »

Зачем они вставили фотографию "Ёлочек"?)
Аватара пользователя
летучка
Модератор
Модератор
Сообщения: 42332
Зарегистрирован: 17 дек 2004 11:07

Парки, скверы, аллеи Подольска

Сообщение летучка »

Cortez, слух идет, что продали поляну.
Аватара пользователя
летучка
Модератор
Модератор
Сообщения: 42332
Зарегистрирован: 17 дек 2004 11:07

Парки, скверы, аллеи Подольска

Сообщение летучка »

Как уже сообщалось, 17 января в концертном зале администрации Городского округа Подольск состоялись общественные обсуждения по выбору территории для участия во Всероссийском конкурсе лучших проектов создания комфортной городской среды в малых городах и исторических поселениях в 2019 году.

Напомним, что 13 декабря 2018 года было подписано Постановление администрации об участии Городского округа Подольск в данном конкурсе. Его целью является поддержка проектов по созданию привлекательных городских пространств, способствующих повышению качества жизни, привлечению в город туристического потока, развитию индустрии услуг. Реализация проектов должна способствовать началу процесса устойчивого развития комфортной городской среды, способной обеспечить и поддерживать культурные, визуальные, пространственные, а также социально-экономические связи.

В декабре 2018 года было объявлено голосование среди жителей по выбору территории, всего с 16 декабря 2018 года по 17 января 2019 года в адрес Комитета по строительству и архитектуре поступило в общей сложности 140 заявок. Лидерами голосования стали 4 территории: площадь защитников Отечества в микрорайоне Кузнечики, лесопарк «Елочки» в микрорайоне Кутузово, село Сертякино, бульвар 65-летия Победы в Кузнечиках (второй этап). Во время общественных обсуждений прозвучали и иные предложения по участию в конкурсе других территорий муниципалитета.

Окончательное решение о выборе территории приняла 17 января общественная муниципальная комиссия по обеспечению реализации муниципальной программы «Формирование современной комфортной городской среды на 2018-2022 годы». Как значится в протоколе заседания, по результатам очного обсуждения в качестве территории для участия во Всероссийском конкурсе лучших проектов создания комфортной городской среды в 2019 году утвержден бульвар 65-летия Победы в микрорайоне Кузнечики.
http://xn----8sbancyabljpnebm2aiit6frfs ... 2019-godu/
Аватара пользователя
летучка
Модератор
Модератор
Сообщения: 42332
Зарегистрирован: 17 дек 2004 11:07

Парки, скверы, аллеи Подольска

Сообщение летучка »

В соответствии с утвержденным Порядком организации, проведения и приема предложений от жителей Городского округа Подольск по выбору общественной территории для участия во Всероссийском конкурсе прием заявок, мнений и пожеланий о планируемых мероприятиях по благоустройству бульвара 65-летия Победы в микрорайоне Кузнечики осуществляется в период с 25.01.2019 года по 08.02.2019 года в письменном и электронном виде по адресу: Подольск, ул. Кирова, д. 4, кабинет № 322, e-mail: ksia@adm.podolsk.ru.

По результатам сбора предложений общественная муниципальная комиссия по обеспечению реализации муниципальной программы «Формирование современной комфортной городской среды на 2018-2022 годы» подведет итоги не позднее 19 февраля 2019 года.
Аватара пользователя
летучка
Модератор
Модератор
Сообщения: 42332
Зарегистрирован: 17 дек 2004 11:07

Парки, скверы, аллеи Подольска

Сообщение летучка »

Заседание общественной муниципальной комиссии по обеспечению реализации муниципальной программы «Формирование современной комфортной городской среды на 2018-2022 годы» состоится 8 февраля в Городском округе Подольск. На встрече будут подведены итоги сбора мнений и предложений по определению мероприятий, связанных с благоустройством бульвара 65-летия Победы в микрорайоне Кузнечики.

Напомним, что эта территория была выбрана для участия во Всероссийском конкурсе на лучший проект по созданию комфортной городской среды. Место проведения заседания: Подольск, ул. Генерала Стрельбицкого, 11, школа № 34. Начало в 16.00.

Общественная муниципальная комиссия подведет окончательные итоги не позднее 19 февраля 2019 года.

Источник: Комитет по строительству и архитектуре администрации Городского округа Подольск
Аватара пользователя
летучка
Модератор
Модератор
Сообщения: 42332
Зарегистрирован: 17 дек 2004 11:07

Парки, скверы, аллеи Подольска

Сообщение летучка »

В школе № 34 города Подольска 8 февраля состоялось заседание общественной комиссии по обеспечению реализации муниципальной программы «Формирование современной комфортной городской среды на 2018-2022 годы». Тема обсуждения: мероприятия по благоустройству бульвара 65-летия Победы как территории, участвующей во Всероссийском конкурсе на лучший проект создания комфортной городской среды.

В Подольске продолжается благоустройство общественных мест отдыха, а помогают в этом активные горожане. Завершен сбор мнений о том, как должен выглядеть бульвар 65-летия Победы в Кузнечиках. Жители предлагают создать парк с аллеями, рампу для скейтеров и памятник. Поступило 25 заявок, их обсудили на встрече с активистами. Сейчас на этом месте пустырь, но вскоре здесь может появиться современная прогулочная зона — продолжение бульвара 65-летия Победы. Жители очень активны: они высказываются за фонтан, уличную библиотеку, мини-сцену, кафе.

— Месту, где проходит спортивная дорожка и стоят турники для занятий спортом, все-таки необходимо придать тематическое значение самого бульвара, а спортивные объекты перенести в соответствующую зону, — сказал Андрей Романов, житель микрорайона Кузнечики.

В микрорайоне нужна дорожка для проезда, катания на роликах, которая бы зимой трансформировалась в ледовую дорожку для ходьбы, бега на коньках, это мнение члена Общественной палаты Городского округа Подольск Ларисы Тарасовой, проживающей в Кузнечиках.

— У нас в микрорайоне существует всего лишь один каток, и его недостаточно для зимних видов отдыха жителей, — сказала она.

Главное, в чем сходится большинство жителей, — бульвару нужен памятник. Правда, при обсуждении вопроса, каким он должен быть, мнения разделились.

— Мне хотелось, чтобы, например, это была какая-то композиция из фильма «Они сражались за Родину». Потому что люди, которые защищали страну, были рабочими, именно такие люди, которые живут в Подольске, — высказала свое мнение Ирина Балаева, житель микрорайона Кузнечики.

Другие считают, что в микрорайоне живут семьи военнослужащих, представляющих различные рода войск, и образ военного должен быть более собирательным. Но что в итоге войдет в проект благоустройства, специальная комиссия озвучит не позднее 19 февраля.

— Безусловно, все эти предложения будут учтены при выполнении проектных работ. Я могу однозначно сказать, что здесь будут и детские площадки, и велосипедные дорожки, и места, где можно попить кофе, просто погулять, будут интересные скамейки. Мы планируем рассмотреть здесь обустройство фонтана. Работа продолжается, — отметил Сергей Цаплинский, председатель Комитета по строительству и архитектуре администрации.

Развитие этой территории небезразлично и самым юным жителям — воспитанникам Дворца молодежи. Свои предложения они оформили в виде творческих работ в рамках конкурса «Бульвар будущего». Над некоторыми проектами трудились коллективно. Всего на конкурс было представлено 30 различных идей. Лучшие определили в четырех номинациях. Участники награждены памятными грамотами и призами.

Источник: Комитет по строительству и архитектуре администрации по материалам ТВ «Кварц»
Аватара пользователя
летучка
Модератор
Модератор
Сообщения: 42332
Зарегистрирован: 17 дек 2004 11:07

Парки, скверы, аллеи Подольска

Сообщение летучка »

Бульвар "Молодой Подольск" в марте 2019.
Вложения
FAiNmybWLDQ.jpg
EzYFBVLpHvk.jpg
cq7H42kRv8s.jpg
6gyz29jGibw.jpg
cf579cc6-1ab9-47b7-ba63-79e1927a0a09.jpg
Аватара пользователя
Алехандро
Expert
Expert
Сообщения: 2144
Зарегистрирован: 13 сен 2016 12:16

Парки, скверы, аллеи Подольска

Сообщение Алехандро »

летучка, бывает, язвы вскрывают. А здесь под вашим предводительством обожают смаковать.
Аватара пользователя
летучка
Модератор
Модератор
Сообщения: 42332
Зарегистрирован: 17 дек 2004 11:07

Парки, скверы, аллеи Подольска

Сообщение летучка »

Лично я знаю цену деньгам, даже копейки мне очень непросто достаются, поэтому больно смотреть на то, как относятся к миллионам, в которых есть и мои личные копейки.

Чтобы вылечить запущенную болезнь, её нужно прежде всего правильно диагностировать. Бульвар строил близкий родственник одного председателя комитета администрации. На мой взгляд, это весомый симптом для диагноза.

"Смаковать язвы" - где вы набрались таких извращений вообще? facepalm:
Аватара пользователя
летучка
Модератор
Модератор
Сообщения: 42332
Зарегистрирован: 17 дек 2004 11:07

Парки, скверы, аллеи Подольска

Сообщение летучка »

После нескольких лет жалоб в этом году (благодаря контролю Госадмтехнадзора) на Симферопольской аллее (которую сажал глава Подольска будучи школьником) снег перестали раскладывать на деревья и фонари. По новой моде сугробы раскатывали между деревьями, трамбуя колесами и ковшом, попутно обдирая кору на деревьях. После очередного крика в соцсетях про такую работу МБУ "Подольский комбинат благоустройства" уволили механизатора.
Некоторые пострадавшие деревья обработали садовым варом и перевязали.

Сдвигание снега вместе с газонами продолжилось.
Вложения
TimePhoto_20190319_071345.jpg
TimePhoto_20190319_071359.jpg
Аватара пользователя
momus
Advanced Member
Advanced Member
Сообщения: 391
Зарегистрирован: 15 апр 2011 14:03

Парки, скверы, аллеи Подольска

Сообщение momus »

Бульвар "Молодой Подольск" в марте 2019.
Что там про продолжение работ слышно?
Или всё так и оставят? :)
Ответить

Вернуться в «Подольск»