СпасибоPlafonova писал(а):medvighonok
Вам страховая не присылали сообщение с номером Вашего менеджера?
Я позвонила в страховую, они выслали анкету, заполнила, оплатмла квитанцию и подписала договор. Потом отправила скан договора менеджеру в сбере. Всё)
Попробуйте связаться со своей страховой компанией
ЖК "Львовский" (ул.Горького,ул.Орджоникидзе). Часть 2
-
medvighonok
- New member

- Сообщения: 35
- Зарегистрирован: 28 окт 2013 12:30
ЖК "Львовский" (ул.Горького,ул.Орджоникидзе). Часть 2
ЖК "Львовский" (ул.Горького,ул.Орджоникидзе). Часть 2
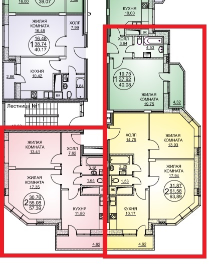
Друзья, добрый день, у меня к вам просьба, я дольщик квартиры в ЖК Рязановский 2-й очереди, у нас возникли проблемы с обмерами БТИ поэтому прошу вас, не могли бы сфотографировать или сделать скан своих планировок БТИ с размерами и коэффциентами по указанным на картинке квартирам, вы можете помочь нам раскрыть обман и спасти от финансовых трудностей сотни людей
!!! Заранее спасибо
-
Kirill1983
- New member

- Сообщения: 49
- Зарегистрирован: 13 ноя 2013 22:05
- Откуда: Горького 17, 3 подъезд
ЖК "Львовский" (ул.Горького,ул.Орджоникидзе). Часть 2
А в чем, собственно, вопрос?DLove писал(а):Друзья, добрый день, у меня к вам просьба, я дольщик квартиры в ЖК Рязановский 2-й очереди, у нас возникли проблемы с обмерами БТИ поэтому прошу вас, не могли бы сфотографировать или сделать скан своих планировок БТИ с размерами и коэффциентами по указанным на картинке квартирам, вы можете помочь нам раскрыть обман и спасти от финансовых трудностей сотни людей!!! Заранее спасибо
Все бы ничего, да все что-то не так!
ЖК "Львовский" (ул.Горького,ул.Орджоникидзе). Часть 2
В нашем доме БТИ все балконы посчитали как лоджии, то есть площадь квартир получилась на 1 кв.м. больше, чем есть на самом деле! А в доме по улице Горького абсолютно такие же конструкции посчитаны БТИ как балконы, судя по моим расчётам. Мы хотим написать коллективное письмо в БТИ с указанием на эту ошибку и чтобы аргументировать свою позицию конкретным примером, а не только определениями терминов балкон и лоджия из СНиПа, прошу у вас помощи...Kirill1983 писал(а):А в чем, собственно, вопрос?DLove писал(а):Друзья, добрый день, у меня к вам просьба, я дольщик квартиры в ЖК Рязановский 2-й очереди, у нас возникли проблемы с обмерами БТИ поэтому прошу вас, не могли бы сфотографировать или сделать скан своих планировок БТИ с размерами и коэффциентами по указанным на картинке квартирам, вы можете помочь нам раскрыть обман и спасти от финансовых трудностей сотни людей!!! Заранее спасибо
-
Kirill1983
- New member

- Сообщения: 49
- Зарегистрирован: 13 ноя 2013 22:05
- Откуда: Горького 17, 3 подъезд
ЖК "Львовский" (ул.Горького,ул.Орджоникидзе). Часть 2
Согласно СП 54.13330.2011. Приложение Б (действующий на сегодня документ):DLove писал(а):В нашем доме БТИ все балконы посчитали как лоджии, то есть площадь квартир получилась на 1 кв.м. больше, чем есть на самом деле! А в доме по улице Горького абсолютно такие же конструкции посчитаны БТИ как балконы, судя по моим расчётам. Мы хотим написать коллективное письмо в БТИ с указанием на эту ошибку и чтобы аргументировать свою позицию конкретным примером, а не только определениями терминов балкон и лоджия из СНиПа, прошу у вас помощи...Kirill1983 писал(а):А в чем, собственно, вопрос?DLove писал(а):Друзья, добрый день, у меня к вам просьба, я дольщик квартиры в ЖК Рязановский 2-й очереди, у нас возникли проблемы с обмерами БТИ поэтому прошу вас, не могли бы сфотографировать или сделать скан своих планировок БТИ с размерами и коэффциентами по указанным на картинке квартирам, вы можете помочь нам раскрыть обман и спасти от финансовых трудностей сотни людей!!! Заранее спасибо
3.8 Балкон - Выступающая из плоскости стены фасада огражденная площадка. Может быть остекленным
3.10 Лоджия - Встроенное или пристроенное, открытое во внешнее пространство, огражденное с трех сторон стенами (с двух – при угловом расположении) помещение с глубиной, ограниченной требованиями естественной освещенности помещения, к наружной стене которого она примыкает. Может быть остекленной.
Вот чем надо аргументировать!
Единственное, то что не могу сейчас сказать что у меня в договоре. Вечером гляну и отвечу. На сколько мне помнится) там балкон.
Все бы ничего, да все что-то не так!
ЖК "Львовский" (ул.Горького,ул.Орджоникидзе). Часть 2
Да всё я это знаю, я проектировщик, всё это в письме указываем, но согласитесь, что если продемонстрировать, что их же организация абсолютно такие же конструкции в другом доме считала балконами, а в нашем доме считает лоджиями, противопоставить нам будет нечего. Я же не проконсультировать прошуKirill1983 писал(а): Согласно СП 54.13330.2011. Приложение Б (действующий на сегодня документ):
3.8 Балкон - Выступающая из плоскости стены фасада огражденная площадка. Может быть остекленным
3.10 Лоджия - Встроенное или пристроенное, открытое во внешнее пространство, огражденное с трех сторон стенами (с двух – при угловом расположении) помещение с глубиной, ограниченной требованиями естественной освещенности помещения, к наружной стене которого она примыкает. Может быть остекленной.
Вот чем надо аргументировать!
Единственное, то что не могу сейчас сказать что у меня в договоре. Вечером гляну и отвечу. На сколько мне помнится) там балкон.
ЖК "Львовский" (ул.Горького,ул.Орджоникидзе). Часть 2
Пришли квитанции на квартплату.....отопление опять порадовало! Думаю,в начале неделе в бухгалтерии будет аншлаг!!Обратила внимание ,в квитанции постоянно меняется отапливаемая площадь дома.Может кто объяснит?
ЖК "Львовский" (ул.Горького,ул.Орджоникидзе). Часть 2
Уже который день не горит лампочка при входе в 4 подъезд,по Горького 17 .Цифр на домофоне не видно. Неоднократно оставляли заявку в диспетчерскую ,ничего не меняется!Будет ,как обычно,пока голову кто-то не разобьет.
-
Иринка82
- Advanced Member

- Сообщения: 299
- Зарегистрирован: 01 апр 2014 09:47
- Откуда: ул. Орджоникидзе 2к2
ЖК "Львовский" (ул.Горького,ул.Орджоникидзе). Часть 2
Всем добрый вечер. По сравнению с декабрем отопление еще на 1000 дороже... нет слов... Подскажите, у многих так? или они просто на квартиры раскидывают, кто не платит...не пойму. Как наша бухгалтерия работает?подскажите
ул. Орджоникидзе 2к2
ЖК "Львовский" (ул.Горького,ул.Орджоникидзе). Часть 2
Кто -то уже сходил в бухгалтерию? Чем объясняют такие заоблачные цифры?
ЖК "Львовский" (ул.Горького,ул.Орджоникидзе). Часть 2
Никак в толк не возьму, почему вы тут каждый месяц про отопление горюете. Вам что, не кажется логичным, что раз мы платим за отопление по общедомовому счетчику, то чем холоднее был месяц (а значит чем больше топили), тем дороже мы все платим? Там же не фиксированное количество тепла выделяется, а по факту. И как бы январь был жестяк, вот вам и отопление на 1000 больше (лично у меня на 700+ больше, и это совершенно нормально)
Орджоникидзе 2к3
ЖК "Львовский" (ул.Горького,ул.Орджоникидзе). Часть 2
Нам еще кажется не логичным ,что мы платим за мусоропровод(которого нет) ,обслуживание вентиляции,(которая отсутствует),какую-то диспетчерскую,на содержание УК и прочие расходы.(что за прочие расходы?)и тд. У нас в 4 подъезде висит распечатка(что входит в содержание и ремонт,за который мы платим около2000- 3000 с квартиры ,от метража...в месяц!!!)А про отопление..никто не видел этих показаний общедомовых счетчиков,так можно и еще больше насчитать.У нас в подъезде ,у многих батарее чуть теплые(2 эт)так люди еще и на обогреватель тратятся.Ну ,ходили в УК.Толку мало.
- alex-moskva
- Expert

- Сообщения: 984
- Зарегистрирован: 07 ноя 2012 11:08
ЖК "Львовский" (ул.Горького,ул.Орджоникидзе). Часть 2
Добрый день!
Кто-нибудь в курсе, куда подевались перила с лестницы у входа в 1 подъезд?
Кто-нибудь в курсе, куда подевались перила с лестницы у входа в 1 подъезд?
ул. Горького, д. 17 (1 секция)
-
Boris1111122222
- New member

- Сообщения: 20
- Зарегистрирован: 06 авг 2014 17:56
ЖК "Львовский" (ул.Горького,ул.Орджоникидзе). Часть 2
Утром пару дней назад она согнутая лежала на ступеньках при входе подъезд.Кому то ночью нечем было заняться. А потом наверное УК демонтировала ее, чтоб вид не портила.alex-moskva писал(а):Добрый день!
Кто-нибудь в курсе, куда подевались перила с лестницы у входа в 1 подъезд?
- alex-moskva
- Expert

- Сообщения: 984
- Зарегистрирован: 07 ноя 2012 11:08
ЖК "Львовский" (ул.Горького,ул.Орджоникидзе). Часть 2
Ясно. Спасибо.Boris1111122222 писал(а):Утром пару дней назад она согнутая лежала на ступеньках при входе подъезд.Кому то ночью нечем было заняться. А потом наверное УК демонтировала ее, чтоб вид не портила.alex-moskva писал(а):Добрый день!
Кто-нибудь в курсе, куда подевались перила с лестницы у входа в 1 подъезд?
ул. Горького, д. 17 (1 секция)
ЖК "Львовский" (ул.Горького,ул.Орджоникидзе). Часть 2
Для жителей Горького 17.Если вы не хотите платить УК за не существующие услуги(такие как мусоропровод)Обратитесь к консьержу в 4 подъезд и поставьте свою подпись.Мы платим за него со дня собственности по 2.29 за кв м. Умножьте на площадь вашей квартиры и на 12 месяцев(около 2000р с квартиры...не плохо получилось,
а за что? Не надоело отрывать такие суммы от семьи и кормить УК?Мы отдаем такие деньги ,а если просрочим платеж,то УК быстро насчитает нам пени.(хотя это бывает и без просрочки.)Ведь мы позволяем себя доить и доить...Не оставайтесь равнодушными,платим то мы из своего кошелька и отдаем свои ,кровно заработанные деньги.
ЖК "Львовский" (ул.Горького,ул.Орджоникидзе). Часть 2
Килька, какие вы-жители Горького 17 молодцы!!!
Я давно собираюсь написать заявление в УК по поводу перерасчета за оплату не предоставляемых услуг. Но, все руки никак не дойдут.
Я с Орджоникидзе, к сожалению, не могу поставить подпись в вашем заявлении. Если есть возможность, скиньте, пожалуйста, в личку образец обращения в УК, м.б. у нас на Орджоникидзе тоже получится организовать сбор подписей или хотя бы от себя лично напишу.
Я давно собираюсь написать заявление в УК по поводу перерасчета за оплату не предоставляемых услуг. Но, все руки никак не дойдут.
Я с Орджоникидзе, к сожалению, не могу поставить подпись в вашем заявлении. Если есть возможность, скиньте, пожалуйста, в личку образец обращения в УК, м.б. у нас на Орджоникидзе тоже получится организовать сбор подписей или хотя бы от себя лично напишу.
ЖК "Львовский" (ул.Горького,ул.Орджоникидзе). Часть 2
К сожалению,у меня нет такой возможности.А вот личное обращение ,ничего не даст.Нужен определенный процент голосов жителей дома...(что бы убрать не сущ услугу!!!Бред какой-то!!)S.Lana писал(а):Килька, какие вы-жители Горького 17 молодцы!!!
Я давно собираюсь написать заявление в УК по поводу перерасчета за оплату не предоставляемых услуг. Но, все руки никак не дойдут.
Я с Орджоникидзе, к сожалению, не могу поставить подпись в вашем заявлении. Если есть возможность, скиньте, пожалуйста, в личку образец обращения в УК, м.б. у нас на Орджоникидзе тоже получится организовать сбор подписей или хотя бы от себя лично напишу.
ЖК "Львовский" (ул.Горького,ул.Орджоникидзе). Часть 2
Интересно...а перерасчет за оплаченные ,но не предоставленные услуги будет???

ЖК "Львовский" (ул.Горького,ул.Орджоникидзе). Часть 2
По постановлению Правительства РФ №354 (глава 9) УК обязана сделать перерасчет за непредоставленные или предоставленные не в полном объеме коммунальные услуги за весь расчетный период.Килька писал(а):Интересно...а перерасчет за оплаченные ,но не предоставленные услуги будет???![]()
На самом деле можно обращаться с заявлением в УК индивидуально, просто одно заявление могут и футболить...Хотя, конечно, если заморочиться, все решаемо. Заявление в УК с регистрацией, они обязаны дать ответ. В случае отказа или отсутствии ответа (по моему до 30 дней законом отведено на ответ)- жалобы в вышестоящие органы. В итоге перерасчета можно добиться. Я давно планирую этим заняться, но дефицит времени
ЖК "Львовский" (ул.Горького,ул.Орджоникидзе). Часть 2
Орджоникидзе 2 к 3 тоже за перерасчет (но против мусоропровода
), заявление можно сфоткать у консьержки и перепечатать, чтобы текст не выдумывать. Давайте тоже организуемся.
Орджоникидзе дом 2 корпус 3
ЖК "Львовский" (ул.Горького,ул.Орджоникидзе). Часть 2
Ну вот...из квитанции удалили плату за мусоропровод.(чуть меньше 200 р в мес)Можно идти с заявлением на перерасчет .
-
Иринка82
- Advanced Member

- Сообщения: 299
- Зарегистрирован: 01 апр 2014 09:47
- Откуда: ул. Орджоникидзе 2к2
ЖК "Львовский" (ул.Горького,ул.Орджоникидзе). Часть 2
Добрый день. А как такое заявление писать?Килька писал(а):Ну вот...из квитанции удалили плату за мусоропровод.(чуть меньше 200 р в мес)Можно идти с заявлением на перерасчет .
ул. Орджоникидзе 2к2
ЖК "Львовский" (ул.Горького,ул.Орджоникидзе). Часть 2
Да можно хоть обписаться, мы с соседкой тоже такие умные еще в том году весной написали заявления на перерасчет мусоропровода и лифта, котораый 1,5 месяца не работао, а мы за него платили и немало.. У меня даже на копии моей официальный номер стоит. И знаете что? А ничего) Вот просто ничего) Ни ответа, ни привета, по телефону ничего не знают, ходить к Питанову на поклон с тремя детьми недосуг - вот и не перерасчитывает никто. А Ильинична вообще до сих пор думает, что мы за вывоз ТБО не платим, поэтому нам за мусоропровод насчитывают, хотя мы платим И то И другое.
Писала даже в каком-то портале для жалоб, тоже никакой реакции. Уж и не помню, где именно, потому что давно было.
Писала даже в каком-то портале для жалоб, тоже никакой реакции. Уж и не помню, где именно, потому что давно было.
Орджоникидзе 2к3
ЖК "Львовский" (ул.Горького,ул.Орджоникидзе). Часть 2
Погодите-ка.. а по ходу что-то свершилось! В свежей квитанции за февраль стоит плата за содержание и ремонт на 2.29руб меньше, чем раньше. То есть мусоропровод таки спустя год с копейками из квитанций убрали)
Только вот врятли нам вернут за него)
Хотя, может и такие чудеса случаются...
Только вот врятли нам вернут за него)
Хотя, может и такие чудеса случаются...
Орджоникидзе 2к3
ЖК "Львовский" (ул.Горького,ул.Орджоникидзе). Часть 2
Вы знаете отлично работает портал Сердитыц гражданин. Я тоже долго инфо по свету не могла добиться,а после моей жалобы на портале, сами позвонили
ЖК "Львовский" (ул.Горького,ул.Орджоникидзе). Часть 2
А про свет кто-нибудь знает, когда мы будем платить тот период с мая по декабрь, который до сих пор нам в квитанции не включают? Теперь только ежемесячные показания с декабря и все..
Орджоникидзе 2к3
ЖК "Львовский" (ул.Горького,ул.Орджоникидзе). Часть 2
Если бы жильцы были более активны...Вот добились же ,что вычли плату за мусоропровод.По ул Горького 17 собирают подписи ,чтобы сделали перерасчет за оплаченную,но не предоставленную услугу , мусоропр(около 2000р с кв,не плохо так огребла наша УК).Если не отреагируют,будем искать поддержки в прокуратуре.Plafonova писал(а):Вы знаете отлично работает портал Сердитыц гражданин. Я тоже долго инфо по свету не могла добиться,а после моей жалобы на портале, сами позвонили
ЖК "Львовский" (ул.Горького,ул.Орджоникидзе). Часть 2
Зачем подавать электр.энергию,если УК производит расчет учитывая свои цифры!?
ЖК "Львовский" (ул.Горького,ул.Орджоникидзе). Часть 2
Думаю,что половина жильцов ,вообще не обратила внимания,на изменения в платежке...Посчитайте,сколько вы заплатили своих кровных только за не раб мусоропровод.2.29 умножьте на площадь вашей кв и умножьте на число месяцев проживания...Ombre писал(а):Погодите-ка.. а по ходу что-то свершилось! В свежей квитанции за февраль стоит плата за содержание и ремонт на 2.29руб меньше, чем раньше. То есть мусоропровод таки спустя год с копейками из квитанций убрали)
Только вот врятли нам вернут за него)
Хотя, может и такие чудеса случаются...
ЖК "Львовский" (ул.Горького,ул.Орджоникидзе). Часть 2
Может и не обратили, я тоже не сразу обратила. А сколько я кровных уже заплатила я прекрасно знаю, чего считать их каждый раз. Другое дело, что эти деньги вернуть обратно будет еще сложнее, чем заставить перестать брать лишнее..Килька писал(а):Думаю,что половина жильцов ,вообще не обратила внимания,на изменения в платежке...Посчитайте,сколько вы заплатили своих кровных только за не раб мусоропровод.2.29 умножьте на площадь вашей кв и умножьте на число месяцев проживания...Ombre писал(а):Погодите-ка.. а по ходу что-то свершилось! В свежей квитанции за февраль стоит плата за содержание и ремонт на 2.29руб меньше, чем раньше. То есть мусоропровод таки спустя год с копейками из квитанций убрали)
Только вот врятли нам вернут за него)
Хотя, может и такие чудеса случаются...
Орджоникидзе 2к3
-
medvighonok
- New member

- Сообщения: 35
- Зарегистрирован: 28 окт 2013 12:30
ЖК "Львовский" (ул.Горького,ул.Орджоникидзе). Часть 2
Уважаемые жители дома номер 2к2 на Орджоникидзе, кто-нибудь вчера слышал музыку часа в 2 ночи? по ощущениям в караоке песни звучали.
- Светлячокс
- Pro Member

- Сообщения: 607
- Зарегистрирован: 20 ноя 2012 21:43
ЖК "Львовский" (ул.Горького,ул.Орджоникидзе). Часть 2
Орджоникидзе 2/1 тоже с Вами ,если соберетесь!!!S.Lana писал(а):По постановлению Правительства РФ №354 (глава 9) УК обязана сделать перерасчет за непредоставленные или предоставленные не в полном объеме коммунальные услуги за весь расчетный период.Килька писал(а):Интересно...а перерасчет за оплаченные ,но не предоставленные услуги будет???![]()
На самом деле можно обращаться с заявлением в УК индивидуально, просто одно заявление могут и футболить...Хотя, конечно, если заморочиться, все решаемо. Заявление в УК с регистрацией, они обязаны дать ответ. В случае отказа или отсутствии ответа (по моему до 30 дней законом отведено на ответ)- жалобы в вышестоящие органы. В итоге перерасчета можно добиться. Я давно планирую этим заняться, но дефицит времени
Думаю,что не многие на форуме сидят, а от экономии НЕ откажутся!!!
Моя совместная закупка ВЕРХНЕЙ ДЕТСКОЙ ОДЕЖДЫ ФОБОС http://forum.podolsk.ru/viewtopic.php?f=144&t=174909&p=2814794#p2814794
Одежда ГЕПЮР- https://vk.com/gepurpodolsk
HAPPYWEAR Закупка для всей семьи- https://vk.com/happywearpodolsk
Одежда Модный остров! https://forum.podolsk.ru/viewtopic.php?f=145&t=178704
Одежда ГЕПЮР- https://vk.com/gepurpodolsk
HAPPYWEAR Закупка для всей семьи- https://vk.com/happywearpodolsk
Одежда Модный остров! https://forum.podolsk.ru/viewtopic.php?f=145&t=178704
ЖК "Львовский" (ул.Горького,ул.Орджоникидзе). Часть 2
Заявление от всего подъезда на перерасчет подано....ждем.Сказали ,что мы все не далекие(слово было другое)что не потребовали перерасчет раньше.И вообще ,мусоропровод же не заварен...Ваши проблемы ,что вы не пользовались им! Во как! Мы же еще и идиоты!!!Услуги не было ,а денежки брал каждый месяц.И все в порядке вещей!Ну-ну...посмотрим!Да,прошел слух ,что Мосэнерго заключает индивидуальные договора...Очень жду этого .Я в первых рядах!!Вы договор свой почитайте,найдете много интересного.Подписываем не глядя,как всегда.
ЖК "Львовский" (ул.Горького,ул.Орджоникидзе). Часть 2
Моя копия заявления (с номером входящего) на перерасчет мусоропровода, поданная в апреле ПРОШЛОГО года у меня хранится. У соседки точно такое же, я уверена, тоже хранится. Напомню, письменного ответа нам не давали, устно ответили, что никакого перерасчета не будет. А еще мусоропровод ЗАВАРЕН или иначе заблокирован, открыть его нельзя. Они такими выходками реально дожидаются кляуз в совсем другие инстанции за обман и поборы что ли?
Орджоникидзе 2к3
