ЖК "Московский" г. Подольск, ул. Садовая, д3, корпус 1А, 1Б (ГлавГрадоСтрой)
Садовая, 3, корпус 1А (ГлавГрадоСтрой)
Честно говоря будет он работать или нет, особо не интересует, скорее даже плюс что будет не работать-не будет вони.....а вот если будет и будет расположен напротив квартиры-это жесть! поэтому и интересуюсь этим вопросом.....
На каждую хорошую мысль неизбежно находится свой дурак, аккуратно доводящий её до абсурда.
Садовая, 3, корпус 1А (ГлавГрадоСтрой)
Привет из 6-й секции. Малиновка - молодец скидывай по возможности фотки, а то на официальном сайте раз в месяц выкладывают. Там Крюк ещё обещал выложить. Приятно смотреть на продвижение.
- Татьяна Филина
- Member

- Сообщения: 145
- Зарегистрирован: 16 янв 2016 00:21
Садовая, 3, корпус 1А (ГлавГрадоСтрой)
Дом на дом становится похожим)))
Садовая, 3, корпус 1А (ГлавГрадоСтрой)
В пятницу договор забирала, к стройке подошла, не особо там все активно(((
Садовая, 3, корпус 1А (ГлавГрадоСтрой)
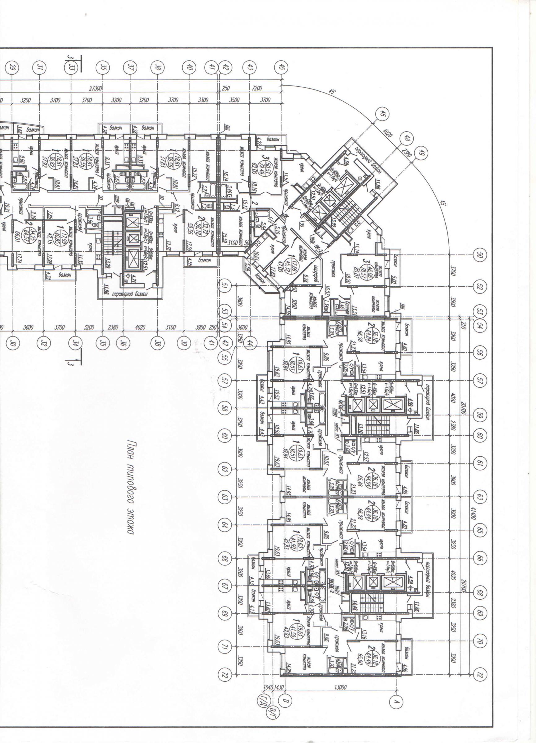
Мусоропровод будет между лифтами и переходным балконом.Veron225 писал(а):Добрый день, возможно будущие соседи)) Решили тоже здесь присмотреть квартиру, так вот вопрос, по схеме не понятно, где будет мусоропровод?? не напротив ли однокомнатной квартиры? Кто нибудь в курсе???
Садовая, 3, корпус 1А (ГлавГрадоСтрой)
А что такое ШДУ?
На каждую хорошую мысль неизбежно находится свой дурак, аккуратно доводящий её до абсурда.
Садовая, 3, корпус 1А (ГлавГрадоСтрой)
Мусоропровод будет условный. По традиции у ГГС он заварен.
Садовая, 3, корпус 1А (ГлавГрадоСтрой)
ну и хорошо, что заварен будет!
Садовая, 3, корпус 1А (ГлавГрадоСтрой)
Шкаф управления вентилятором дымоудаления ШДУ-5,5 (ШУ-ДУ-5,5) (Рдв=5,5 кВт, Iном=16А) У3, навесной, IP66 предназначен для управления вентилятором системы дымоудаления и вытяжной протоводымной вентиляции при возникновении пожара, визуальной световой индикации режимов работы и выдачи управляющих сигналов. Используется совместно с шкафом управления противопожарной вентиляцией ШУПВ, который управляет группой вентиляторов противодымной защиты.Veron225 писал(а):А что такое ШДУ?
Режимы управления работой ШДУ:
- автоматический – включение вентилятора по сигналу от систем автоматической пожарной сигнализации или установок пожаротушения;
- ручной – для проверки работоспособности вентилятора и клапана дымоудаления.
Световая сигнализация режимов работы ШДУ:
- наличие питания
- работа вентилятора
- пожар
Выпускается в унифицированном металлокорпусе навесного исполнения со степенью защиты IP66 и рассчитан для работы в закрытых помещениях. Климатическое исполнение и категория размещения У3.
Садовая, 3, корпус 1А (ГлавГрадоСтрой)
Добрый день, секция 6! Я правильно понимаю, что у нас 3 лифта будет?
Садовая, 3, корпус 1А (ГлавГрадоСтрой)
Спасибо за ответ!!!)))
На каждую хорошую мысль неизбежно находится свой дурак, аккуратно доводящий её до абсурда.
- Татьяна Филина
- Member

- Сообщения: 145
- Зарегистрирован: 16 янв 2016 00:21
Садовая, 3, корпус 1А (ГлавГрадоСтрой)
Привет, соседка)))вроде бы да....три лифтаАлина И писал(а):Добрый день, секция 6! Я правильно понимаю, что у нас 3 лифта будет?
Садовая, 3, корпус 1А (ГлавГрадоСтрой)
Я покупала квартиру в доме с мусоропроводом и поэтому хотелось , что бы он функционировал. Категорически против того, что бы мусоропровод был заварен. 
Садовая, 3, корпус 1А (ГлавГрадоСтрой)
Для выражения мнений о мусоропроводе есть тема http://forum.podolsk.ru/viewtopic.php?f=85&t=100243
Тут это размазывать не надо.
Тут это размазывать не надо.
Садовая, 3, корпус 1А (ГлавГрадоСтрой)
Татьяна Филина

- Татьяна Филина
- Member

- Сообщения: 145
- Зарегистрирован: 16 янв 2016 00:21
Садовая, 3, корпус 1А (ГлавГрадоСтрой)
летучка писал(а):Для выражения мнений о мусоропроводе есть тема http://forum.podolsk.ru/viewtopic.php?f=85&t=100243
Тут это размазывать не надо.
- Татьяна Филина
- Member

- Сообщения: 145
- Зарегистрирован: 16 янв 2016 00:21
Садовая, 3, корпус 1А (ГлавГрадоСтрой)
грубо(((((летучка писал(а):Для выражения мнений о мусоропроводе есть тема http://forum.podolsk.ru/viewtopic.php?f=85&t=100243
Тут это размазывать не надо.
Садовая, 3, корпус 1А (ГлавГрадоСтрой)
Согласна!Татьяна Филина писал(а):грубо(((((летучка писал(а):Для выражения мнений о мусоропроводе есть тема http://forum.podolsk.ru/viewtopic.php?f=85&t=100243
Тут это размазывать не надо.
- Татьяна Филина
- Member

- Сообщения: 145
- Зарегистрирован: 16 янв 2016 00:21
Садовая, 3, корпус 1А (ГлавГрадоСтрой)
и к с тати....вопрос конкретно этого дома, а не всей округи.....летучка писал(а):Для выражения мнений о мусоропроводе есть тема http://forum.podolsk.ru/viewtopic.php?f=85&t=100243
Тут это размазывать не надо.
Садовая, 3, корпус 1А (ГлавГрадоСтрой)
Да, грубо. Потому что вы не читали правила форума и раздела, и продолжаете их игнорировать.
http://forum.podolsk.ru/viewtopic.php?f=73&t=112930
http://forum.podolsk.ru/viewtopic.php?f=73&t=112930
- Татьяна Филина
- Member

- Сообщения: 145
- Зарегистрирован: 16 янв 2016 00:21
Садовая, 3, корпус 1А (ГлавГрадоСтрой)
нет ...не грубить не хамить не стоит... тем более ,что я вообще не знала где найти эти правила.... спасибо за наводку...теперь прочитала и поняла, что тут тупо сидим и ждём пока кто то скинет фотку ,ну или просто по " переливать воду".....летучка писал(а):Да, грубо. Потому что вы не читали правила форума и раздела, и продолжаете их игнорировать.
http://forum.podolsk.ru/viewtopic.php?f=73&t=112930
тем не менее... ещё раз спасибо за наводку и наберитесь терпения и такта)))
Садовая, 3, корпус 1А (ГлавГрадоСтрой)
И слава Богу!!! Я бы на месте ГГС его бы еще и забетонировал, чтобы даже соблазна пользоваться не было. На самом деле, большей беды для дома я не знаю. Полнейший рассадник антисанитарии. И по опыту знакомых, у которых в доме он есть и использовался - максимум через год его заваривают или управляющая компания, или сами жильцы.Perchinka писал(а):Мусоропровод будет условный. По традиции у ГГС он заварен.
предупреждение
Выгнан из ада с формулировкой "Достал чертей"
Садовая, 3, корпус 1А (ГлавГрадоСтрой)
Что сегодня на Яндексе выскочили, наверное, в свете скорых выборов в ГосДуму... http://360tv.ru/news/gubernator-mo-poru ... one-46708/
предупреждение
читайте правила!
предупреждение
читайте правила!
Выгнан из ада с формулировкой "Достал чертей"
- Татьяна Филина
- Member

- Сообщения: 145
- Зарегистрирован: 16 янв 2016 00:21
Садовая, 3, корпус 1А (ГлавГрадоСтрой)
Кто нибудь знает, что за акция с подарочный сертификатми на 50 000? Что такое и с чем это едят?))))
Садовая, 3, корпус 1А (ГлавГрадоСтрой)
как нам сказали, это скидка на покупку квартирыТатьяна Филина писал(а):Кто нибудь знает, что за акция с подарочный сертификатми на 50 000? Что такое и с чем это едят?))))
На каждую хорошую мысль неизбежно находится свой дурак, аккуратно доводящий её до абсурда.
Садовая, 3, корпус 1А (ГлавГрадоСтрой)
Люди, у кого есть возможность, выложите плиз свежие фотки!!!! 
На каждую хорошую мысль неизбежно находится свой дурак, аккуратно доводящий её до абсурда.
Садовая, 3, корпус 1А (ГлавГрадоСтрой)
--=XAOC=--
Садовая, 3, корпус 1А (ГлавГрадоСтрой)
Спасибо за фото!!
На каждую хорошую мысль неизбежно находится свой дурак, аккуратно доводящий её до абсурда.
Садовая, 3, корпус 1А (ГлавГрадоСтрой)
Приветствую. Товарищи есть у кого-нибудь информация сколько в среднем за квартиру платить будем ? Говоря о ЖКХ
Садовая, 3, корпус 1А (ГлавГрадоСтрой)
Сможете скинуть начало этой схемы, где первый подъезд виден, спасибо !MitSH писал(а):Мусоропровод будет между лифтами и переходным балконом.Veron225 писал(а):Добрый день, возможно будущие соседи)) Решили тоже здесь присмотреть квартиру, так вот вопрос, по схеме не понятно, где будет мусоропровод?? не напротив ли однокомнатной квартиры? Кто нибудь в курсе???
Садовая, 3, корпус 1А (ГлавГрадоСтрой)
Додрый день!Dimon999 писал(а):Приветствую. Товарищи есть у кого-нибудь информация сколько в среднем за квартиру платить будем ? Говоря о ЖКХ
Я плачу за однушку,с отоплением-3,5-4т.р.,без отопления,около 2т.р.,управляющая компания будет та же.
Садовая, 3, корпус 1А (ГлавГрадоСтрой)
Добрый вечер!Не могу понять,как здесь выкладывать фото,поскажите пж.





