ЖК Южный, Электромонтажный проезд 11

Выбор обслуживания дома: Управляющая компания или ТСЖ

Я за ТСЖ.
13
30%
Я за УК.
24
55%
Не вижу разницы, мне всё равно.
7
16%
 
Всего голосов: 44
Аватара пользователя
Lee
New member
New member
Сообщения: 55
Зарегистрирован: 04 мар 2015 13:04

ЖК Южный, Электромонтажный проезд 11

Сообщение Lee »

kut-kut писал(а):Не особо понимаю к чему такой кипишь. И за неустойку деньги тоже забрать не очень получится. По договору - дом сдается до 28 февраля (но Застройщик в праве отложить этот срок на пол года). Т.е. февраль +6мес = август. Далее сдача дома, но сдача не означает выдача ключей ....
Вообще-то в ДДУ п.2.2 написано Застройщик обязуется передать Участнику долевого сториительства объект не позднее 28 феввраля (в нашем случае 31 августа)
ПЕРЕДАТЬ, а не сдать госкомиссии. То есть сдать дом госкомисии он должен был раньше...
Дмитрий 70
Member
Member
Сообщения: 157
Зарегистрирован: 19 дек 2014 15:36

ЖК Южный, Электромонтажный проезд 11

Сообщение Дмитрий 70 »

Lee писал(а):
kut-kut писал(а):Не особо понимаю к чему такой кипишь. И за неустойку деньги тоже забрать не очень получится. По договору - дом сдается до 28 февраля (но Застройщик в праве отложить этот срок на пол года). Т.е. февраль +6мес = август. Далее сдача дома, но сдача не означает выдача ключей ....
Вообще-то в ДДУ п.2.2 написано Застройщик обязуется передать Участнику долевого сториительства объект не позднее 28 феввраля (в нашем случае 31 августа)
ПЕРЕДАТЬ, а не сдать госкомиссии. То есть сдать дом госкомисии он должен был раньше...
Сегодня задал этот вопрос своему юристу, жду ответа
kut-kut
Member
Member
Сообщения: 117
Зарегистрирован: 19 авг 2015 10:48

ЖК Южный, Электромонтажный проезд 11

Сообщение kut-kut »

Lee писал(а):
kut-kut писал(а):Не особо понимаю к чему такой кипишь. И за неустойку деньги тоже забрать не очень получится. По договору - дом сдается до 28 февраля (но Застройщик в праве отложить этот срок на пол года). Т.е. февраль +6мес = август. Далее сдача дома, но сдача не означает выдача ключей ....
Вообще-то в ДДУ п.2.2 написано Застройщик обязуется передать Участнику долевого сториительства объект не позднее 28 феввраля (в нашем случае 31 августа)
ПЕРЕДАТЬ, а не сдать госкомиссии. То есть сдать дом госкомисии он должен был раньше...
Если я не ошибаюсь продолжение этой фразы- но не ранее, чем ввод в эксплуатацию. К сожалению, договора нет под рукой. А если так, то застройщик себя обезопасил.
Сирожа
Advanced Member
Advanced Member
Сообщения: 312
Зарегистрирован: 18 апр 2015 19:11

ЖК Южный, Электромонтажный проезд 11

Сообщение Сирожа »

Форумчане есть у кого соображения кто и как будет делать в квартире разводку электрики и сантехнических труб ?
kut-kut
Member
Member
Сообщения: 117
Зарегистрирован: 19 авг 2015 10:48

ЖК Южный, Электромонтажный проезд 11

Сообщение kut-kut »

Сирожа писал(а):Форумчане есть у кого соображения кто и как будет делать в квартире разводку электрики и сантехнических труб ?
Я делаю план разводки электрики, т.к. планируем небольшие переделки планировки. А по сантехнике проблем не возникает, в предыдущей квартире так проводили, без плана.
Сирожа
Advanced Member
Advanced Member
Сообщения: 312
Зарегистрирован: 18 апр 2015 19:11

ЖК Южный, Электромонтажный проезд 11

Сообщение Сирожа »

kut-kut писал(а):
Сирожа писал(а):Форумчане есть у кого соображения кто и как будет делать в квартире разводку электрики и сантехнических труб ?
Я делаю план разводки электрики, т.к. планируем небольшие переделки планировки. А по сантехнике проблем не возникает, в предыдущей квартире так проводили, без плана.
Самостоятельно или фирму нанимали? Однушка или двушка у вас?
Семян
Out of range
Out of range
Сообщения: 4
Зарегистрирован: 24 июн 2015 11:04

ЖК Южный, Электромонтажный проезд 11

Сообщение Семян »

Добрый день! А вы сами делаете, или через кого то?
секция 6 этаж 10
Сирожа
Advanced Member
Advanced Member
Сообщения: 312
Зарегистрирован: 18 апр 2015 19:11

ЖК Южный, Электромонтажный проезд 11

Сообщение Сирожа »

Семян писал(а):Добрый день! А вы сами делаете, или через кого то?
Самостоятельно думаю что сложно будет это сделать
kut-kut
Member
Member
Сообщения: 117
Зарегистрирован: 19 авг 2015 10:48

ЖК Южный, Электромонтажный проезд 11

Сообщение kut-kut »

Сирожа писал(а):
kut-kut писал(а):
Сирожа писал(а):Форумчане есть у кого соображения кто и как будет делать в квартире разводку электрики и сантехнических труб ?
Я делаю план разводки электрики, т.к. планируем небольшие переделки планировки. А по сантехнике проблем не возникает, в предыдущей квартире так проводили, без плана.
Самостоятельно или фирму нанимали? Однушка или двушка у вас?
Я сама проектировщик и делаю все сама.
У нас двушка. Но с сантехникой я не понимаю зачем план нужен, там все просто, да и с электрикой в принципе все понятно, наша загвоздка в том, что мы будем делать перепланировку, соответственно после того, как получим в собственность квартиру. Поэтому разводку делаем с перспективой на перепланировку, чтобы потом не пришлось штробить стены.
Сирожа
Advanced Member
Advanced Member
Сообщения: 312
Зарегистрирован: 18 апр 2015 19:11

ЖК Южный, Электромонтажный проезд 11

Сообщение Сирожа »

А кто знает, сколько проходит времени от сдачи дома до получения на руки свидетельства о собственности?
Geroi
Member
Member
Сообщения: 82
Зарегистрирован: 22 июл 2015 11:08

ЖК Южный, Электромонтажный проезд 11

Сообщение Geroi »

kut-kut писал(а):
Сирожа писал(а):Форумчане есть у кого соображения кто и как будет делать в квартире разводку электрики и сантехнических труб ?
Я делаю план разводки электрики, т.к. планируем небольшие переделки планировки. А по сантехнике проблем не возникает, в предыдущей квартире так проводили, без плана.
А не поделитесь, что за планировку думаете сделать??
Сирожа
Advanced Member
Advanced Member
Сообщения: 312
Зарегистрирован: 18 апр 2015 19:11

ЖК Южный, Электромонтажный проезд 11

Сообщение Сирожа »

Geroi писал(а):
kut-kut писал(а):
Сирожа писал(а):Форумчане есть у кого соображения кто и как будет делать в квартире разводку электрики и сантехнических труб ?
Я делаю план разводки электрики, т.к. планируем небольшие переделки планировки. А по сантехнике проблем не возникает, в предыдущей квартире так проводили, без плана.
А не поделитесь, что за планировку думаете сделать??
Тоже интересно.
kut-kut
Member
Member
Сообщения: 117
Зарегистрирован: 19 авг 2015 10:48

ЖК Южный, Электромонтажный проезд 11

Сообщение kut-kut »

А не поделитесь, что за планировку думаете сделать??[/quote]

Тоже интересно.[/quote]

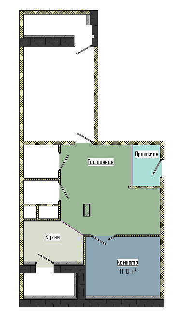
Думаем переделать квартиру в 3шку, со сводобной гостинной и кухонной зоной, т.е. большую комнату (19.25м) сделать меньше, и за счет коридора увеличить гостинную. Между ними находится колонна, которую сносить никто не даст - она и будет визуальным разделением кухонной и гостинной зоны, т.е. 3я комната останется свободной, стены достраивать не будем.
Сирожа
Advanced Member
Advanced Member
Сообщения: 312
Зарегистрирован: 18 апр 2015 19:11

ЖК Южный, Электромонтажный проезд 11

Сообщение Сирожа »

kut-kut писал(а):А не поделитесь, что за планировку думаете сделать??
Тоже интересно.[/quote]

Думаем переделать квартиру в 3шку, со сводобной гостинной и кухонной зоной, т.е. большую комнату (19.25м) сделать меньше, и за счет коридора увеличить гостинную. Между ними находится колонна, которую сносить никто не даст - она и будет визуальным разделением кухонной и гостинной зоны, т.е. 3я комната останется свободной, стены достраивать не будем.[/quote]

Интерессно очень :)
А можно графически это показать? :)
kut-kut
Member
Member
Сообщения: 117
Зарегистрирован: 19 авг 2015 10:48

ЖК Южный, Электромонтажный проезд 11

Сообщение kut-kut »

Мысль такая, но это очень сырой, не готовый вариант, т.к. замеров нет. Пришлось с сайта скачивать чужие замеры, масштабировать в каде и чертить, соответственно есть погрешности. Нужно сделать замеры и прорабатывать план. С сетями проблем у меня не возникает, проблема пока что с гардеробной, т.к. для экономии места лучше гардеробную сделать общую для 2х комнат, что не представляется возможным из-за отсутствия у комнат общей стены. Буду думать дальше.
Колонна, которая находится мд кухней и гостинной останется и будет как-то обыграна интерьером, думаю это больше будет + чем -
Вложения
2015-09-03_110925.png
(6.77 КБ) 666 скачиваний
Сирожа
Advanced Member
Advanced Member
Сообщения: 312
Зарегистрирован: 18 апр 2015 19:11

ЖК Южный, Электромонтажный проезд 11

Сообщение Сирожа »

kut-kut писал(а):Мысль такая, но это очень сырой, не готовый вариант, т.к. замеров нет. Пришлось с сайта скачивать чужие замеры, масштабировать в каде и чертить, соответственно есть погрешности. Нужно сделать замеры и прорабатывать план. С сетями проблем у меня не возникает, проблема пока что с гардеробной, т.к. для экономии места лучше гардеробную сделать общую для 2х комнат, что не представляется возможным из-за отсутствия у комнат общей стены. Буду думать дальше.
Колонна, которая находится мд кухней и гостинной останется и будет как-то обыграна интерьером, думаю это больше будет + чем -
Интересный вариант :)
orewek
New member
New member
Сообщения: 10
Зарегистрирован: 24 фев 2015 17:48

ЖК Южный, Электромонтажный проезд 11

Сообщение orewek »

kut-kut писал(а):Мысль такая, но это очень сырой, не готовый вариант, т.к. замеров нет. Пришлось с сайта скачивать чужие замеры, масштабировать в каде и чертить, соответственно есть погрешности. Нужно сделать замеры и прорабатывать план. С сетями проблем у меня не возникает, проблема пока что с гардеробной, т.к. для экономии места лучше гардеробную сделать общую для 2х комнат, что не представляется возможным из-за отсутствия у комнат общей стены. Буду думать дальше.
Колонна, которая находится мд кухней и гостинной останется и будет как-то обыграна интерьером, думаю это больше будет + чем -
очень классный вариант!!!! я тоже о подобном думала... единственное, что меня немного смущало - получается, что санузлы выходят в образуемую гостиную,а у нас трешка и поэтому в холл, из которого я думала сделать гостиную, выходят 2 санузла с разных сторон :D вы как-нибудь будете обыгрывать с этими санузлами? или так и оставите? :) извините за такие вопросы) я в вопросах дизайна не очень сильна))) хочется услышать мнение профессионала)
kut-kut
Member
Member
Сообщения: 117
Зарегистрирован: 19 авг 2015 10:48

ЖК Южный, Электромонтажный проезд 11

Сообщение kut-kut »

очень классный вариант!!!! я тоже о подобном думала... единственное, что меня немного смущало - получается, что санузлы выходят в образуемую гостиную,а у нас трешка и поэтому в холл, из которого я думала сделать гостиную, выходят 2 санузла с разных сторон :D вы как-нибудь будете обыгрывать с этими санузлами? или так и оставите? :) извините за такие вопросы) я в вопросах дизайна не очень сильна))) хочется услышать мнение профессионала)[/quote]

Я не очень-то профессионал, т.к. я проектирую пром. здания, но планировку сделать в состоянии, тем более мне помогает архитектор:)
Да, как я уже писала, это временный, сырой вариант, т.к. 70% этого плана еще будет дорабатываться после снятия замеров.
А с с/у некоторые варианты есть, это не так тяжело, как придумать где разместить общую гардеробную в квартире-распашонке.
kut-kut
Member
Member
Сообщения: 117
Зарегистрирован: 19 авг 2015 10:48

ЖК Южный, Электромонтажный проезд 11

Сообщение kut-kut »

При такой планировке, где нет четкого разделения я думала кухню отделить с помощью баркой стойки. Вот, наподобие того, как на картинке.
Вложения
2015-09-03_125143.png
kut-kut
Member
Member
Сообщения: 117
Зарегистрирован: 19 авг 2015 10:48

ЖК Южный, Электромонтажный проезд 11

Сообщение kut-kut »

По моей смете на ремонт такая кухня (Если включить мозг и распрямить руки из нужного места) выходит не дороже среднестатистической икеевской кухонной мебели. Если делать под заказ готовый вариант - будет дороже в 10 раз. Т.е. такой эконом вариант, который выглядит дорого.


предупреждение за мультипостинг


тема про кухни
http://forum.podolsk.ru/viewtopic.php?f=84&t=37289
Аватара пользователя
Miralibis
New member
New member
Сообщения: 57
Зарегистрирован: 08 дек 2014 10:19
Откуда: то

ЖК Южный, Электромонтажный проезд 11

Сообщение Miralibis »

гостинная без окон и с выходом к туалету- извените это корридор
Хочу график работы как у Деда Мороза, сутки через 365
kut-kut
Member
Member
Сообщения: 117
Зарегистрирован: 19 авг 2015 10:48

ЖК Южный, Электромонтажный проезд 11

Сообщение kut-kut »

Miralibis писал(а):гостинная без окон и с выходом к туалету- извините это корридор
в данной планировке вы видите другие варианты? если да- буду рада посмотреть ваш вариант.С/у я в любом случае отделю в процессе доработки, но доработанный проект я, разумеется, выкладывать не буду, как и дизайн-проект. А вот прорубить окно - не представляется возможным, да для меня это и не критично. Я была в квартире, где в гостинной окон нет - мне это не бросилось в глаза как дикий недостаток, во-первых. А во-вторых я же не для вас перепланировку рисую, а для себя, поэтому защищать свой проект не вижу смысла. Каждый сам себе сделает.
Аватара пользователя
Miralibis
New member
New member
Сообщения: 57
Зарегистрирован: 08 дек 2014 10:19
Откуда: то

ЖК Южный, Электромонтажный проезд 11

Сообщение Miralibis »

kut-kut писал(а):
Miralibis писал(а):гостинная без окон и с выходом к туалету- извините это корридор
в данной планировке вы видите другие варианты? если да- буду рада посмотреть ваш вариант.С/у я в любом случае отделю в процессе доработки, но доработанный проект я, разумеется, выкладывать не буду, как и дизайн-проект. А вот прорубить окно - не представляется возможным, да для меня это и не критично. Я была в квартире, где в гостинной окон нет - мне это не бросилось в глаза как дикий недостаток, во-первых. А во-вторых я же не для вас перепланировку рисую, а для себя, поэтому защищать свой проект не вижу смысла. Каждый сам себе сделает.
планирую совместить большую с кухней. расширить за счет корридора ванную
Хочу график работы как у Деда Мороза, сутки через 365
kut-kut
Member
Member
Сообщения: 117
Зарегистрирован: 19 авг 2015 10:48

ЖК Южный, Электромонтажный проезд 11

Сообщение kut-kut »

планирую совместить большую с кухней. расширить за счет корридора ванную[/quote]

И получится 1 закрытая комната и 1 огромная общая? Наша цель сделать 3 комнаты, а не уменьшить их кол-во. Площади ванной мне хватает. Туда вошла угловая ванна и стиральная машина.
На словах тяжело вопринимать, если будет планировка графическая - может покажете.
Дмитрий 70
Member
Member
Сообщения: 157
Зарегистрирован: 19 дек 2014 15:36

ЖК Южный, Электромонтажный проезд 11

Сообщение Дмитрий 70 »

orewek писал(а):
kut-kut писал(а):Мысль такая, но это очень сырой, не готовый вариант, т.к. замеров нет. Пришлось с сайта скачивать чужие замеры, масштабировать в каде и чертить, соответственно есть погрешности. Нужно сделать замеры и прорабатывать план. С сетями проблем у меня не возникает, проблема пока что с гардеробной, т.к. для экономии места лучше гардеробную сделать общую для 2х комнат, что не представляется возможным из-за отсутствия у комнат общей стены. Буду думать дальше.
Колонна, которая находится мд кухней и гостинной останется и будет как-то обыграна интерьером, думаю это больше будет + чем -
очень классный вариант!!!! я тоже о подобном думала... единственное, что меня немного смущало - получается, что санузлы выходят в образуемую гостиную,а у нас трешка и поэтому в холл, из которого я думала сделать гостиную, выходят 2 санузла с разных сторон :D вы как-нибудь будете обыгрывать с этими санузлами? или так и оставите? :) извините за такие вопросы) я в вопросах дизайна не очень сильна))) хочется услышать мнение профессионала)
А у Вас какой этаж? Если конечно не секрет
kut-kut
Member
Member
Сообщения: 117
Зарегистрирован: 19 авг 2015 10:48

ЖК Южный, Электромонтажный проезд 11

Сообщение kut-kut »

А у Вас какой этаж? Если конечно не секрет[/quote

не секрет - второй)
kut-kut
Member
Member
Сообщения: 117
Зарегистрирован: 19 авг 2015 10:48

ЖК Южный, Электромонтажный проезд 11

Сообщение kut-kut »

Можно коридор отвести в сторону маленькой комнаты, ее площадь за вычетом коридора останется - 12 м. Таким образом и коридор остается и в большой комнате мы не трогаем стены, возводим 1 новую.
Что так, что так - затронуты 2 стену, 1 снос 1 возведение. План и того и другого нужно показать БТИ, где стены стадии сноса отмечены пунктирными линиями.
Кто-нибудь может подсказать - у нашего дома есть, якобы, куратор, с которым можно пройти внутрь и сделать замеры. Кто-нибудь пробовал ему звонить?
kut-kut
Member
Member
Сообщения: 117
Зарегистрирован: 19 авг 2015 10:48

ЖК Южный, Электромонтажный проезд 11

Сообщение kut-kut »

Вообщем муж созвонился с куратором нашим, Михаил, отчество не помню. Последние новости такие - экспертизу дом на словах прошел, сертификат ЗОС должны выдать 14 числа. На вопрос о ключах ответил, что дадут через месяц, может быть чуть дольше (я думаю это приуменьшенно, минимум 2 месяца). Счетчики стоят, недоделки доделывают. Вчера-сегодня делает замеры БТИ. На следующей неделе, по предварительной договоренности можно ехать и делать замеры.
Вот такие, на мой взгляд, позитивные новости.
WESENOK
New member
New member
Сообщения: 44
Зарегистрирован: 19 июн 2015 12:54

ЖК Южный, Электромонтажный проезд 11

Сообщение WESENOK »

Спасибо за новую, хорошую информацию. А то уже как на иголках сидим, ждём когда можно будет замерить свою квартиру. Будем ждать хороших вестей!
Аватара пользователя
Miralibis
New member
New member
Сообщения: 57
Зарегистрирован: 08 дек 2014 10:19
Откуда: то

ЖК Южный, Электромонтажный проезд 11

Сообщение Miralibis »

спасибо за хорошие новости
Хочу график работы как у Деда Мороза, сутки через 365
kut-kut
Member
Member
Сообщения: 117
Зарегистрирован: 19 авг 2015 10:48

ЖК Южный, Электромонтажный проезд 11

Сообщение kut-kut »

WESENOK писал(а):Спасибо за новую, хорошую информацию. А то уже как на иголках сидим, ждём когда можно будет замерить свою квартиру. Будем ждать хороших вестей!
Да, мы на следующей неделе поедем замеры делать. Напишу еще новостей. Больше всего я бы хотела поговорить с работягами. Они точно знают когда намерены доделать наконец-то этот дом.
Ирландия
New member
New member
Сообщения: 5
Зарегистрирован: 04 июн 2015 19:18

ЖК Южный, Электромонтажный проезд 11

Сообщение Ирландия »

kut-kut писал(а):
WESENOK писал(а):Спасибо за новую, хорошую информацию. А то уже как на иголках сидим, ждём когда можно будет замерить свою квартиру. Будем ждать хороших вестей!
Да, мы на следующей неделе поедем замеры делать. Напишу еще новостей. Больше всего я бы хотела поговорить с работягами. Они точно знают когда намерены доделать наконец-то этот дом.

Подскажите, сами будете делать замеры?
kut-kut
Member
Member
Сообщения: 117
Зарегистрирован: 19 авг 2015 10:48

ЖК Южный, Электромонтажный проезд 11

Сообщение kut-kut »

Ирландия писал(а):
kut-kut писал(а):
WESENOK писал(а):Спасибо за новую, хорошую информацию. А то уже как на иголках сидим, ждём когда можно будет замерить свою квартиру. Будем ждать хороших вестей!
Да, мы на следующей неделе поедем замеры делать. Напишу еще новостей. Больше всего я бы хотела поговорить с работягами. Они точно знают когда намерены доделать наконец-то этот дом.

Подскажите, сами будете делать замеры?
Сами конечно, неужели и для этого нужно кого-то нанимать?)))) У меня в наличии электронная рулетка. Тем более это полезная процедура. Если вдруг нам БТИ лишнего припишет - поспорим.
Аватара пользователя
Olga_F
Expert
Expert
Сообщения: 911
Зарегистрирован: 06 фев 2013 12:26

ЖК Южный, Электромонтажный проезд 11

Сообщение Olga_F »

kut-kut писал(а):Вообщем муж созвонился с куратором нашим, Михаил, отчество не помню. Последние новости такие - экспертизу дом на словах прошел, сертификат ЗОС должны выдать 14 числа. На вопрос о ключах ответил, что дадут через месяц, может быть чуть дольше (я думаю это приуменьшенно, минимум 2 месяца). Счетчики стоят, недоделки доделывают. Вчера-сегодня делает замеры БТИ. На следующей неделе, по предварительной договоренности можно ехать и делать замеры.
Вот такие, на мой взгляд, позитивные новости.
А вы не могли бы дать телефон куратора Михаила (можно в личку). Тоже хотели бы доехать и обмерить квартиру.
Dmitry46
New member
New member
Сообщения: 18
Зарегистрирован: 30 май 2015 22:04

ЖК Южный, Электромонтажный проезд 11

Сообщение Dmitry46 »

Ребят,всем привет!Есть у кого нибудь актуальная выписка из егрп,может кто-нибудь скинуть?Заранее спасибо)
Закрыто

Вернуться в «Новостройки города»