Пос. Быково, ПДСК
Быково, ул. Академическая (ПДСК)
V34 спасибо за ответ. Усамих к сожалению нет возможности бывать на объекте, а судя по фотоотчётам становится грустно, ничего по нашему 2 дому не делается. Каждый месяц одни и теже цифры пишут по выполнению работ. Чувствуется нескоро мы увидим свои квартиры.
Быково, ул. Академическая (ПДСК)
Здравствуйте!slonik112233 писал(а):dir@mk-net.ruslonik112233 писал(а):ВНИМАНИЕ ВСЕМ! ЕСТЬ возможность подключить Академическую 8 и 10 к телеантенне и интернету МК-НЕТ.Пишите каждый гендиректору-как можно больше желающих-тогда подключат! :Я Сам уезжаю--пожалуйста подсуетитесь!!!!!!! МНЕ ОН НАПИСАЛ : А можете сообщить доп подробности.
Сколько соседей ещё желают? Сбросить точку на карте yandex с обозначением данной новостройки.
--
С уважением, Кочеров Владимир Генеральный директор ООО "БУКО" моб. 8(916)723-60-49 раб. 8(4967)58-35-31 мк-нет скорость 60 мегабит за 500 руб
На счет телеантены - не в курсе, нужна ли она?
на счет Интернета - я бы прежде чем писать письма с просьбой подключить уточнил что за провайдер, отзывы и тарифы посмотрел.
На Подольском форуме есть темы, посвещенные этой теме. Новый дом любой провайдер с удовольствием подключил-бы.
Например я пользуюсь провайдером Силинет, и надеюсь, что он придет в мою новую квартиру.
Быково, ул. Академическая (ПДСК)
Даже про четные дома я бы не был уверен, про нечетные - совсем точно не июнь.saniya8 писал(а):AFOKS в отделе продаж нас уверяли о готовности домов по спортивной в начале июня. Это так?
http://mybykovo.ru
Быково, ул. Академическая (ПДСК)
Вот бы знать как тарелка будет брать в яме... Если будет, то нафик не нужны все эти кабельные.oln107 писал(а):На счет телеантены - не в курсе, нужна ли она?
http://mybykovo.ru
Быково, ул. Академическая (ПДСК)
Помоему нечётные быстрее сдадут. Это раньше они стояли. Первый дом готов, даже опресовали. Подъездные блоки им сказали после праздников ставить будут. У первого дома только окна остаются а это недолго ставить. Даже у чётных подъезды появятся скоро, а наш 2 дом походу всеми забыт. 
Быково, ул. Академическая (ПДСК)
Согласен! Я себе на Академ,8 поставил НТВ+. Сейчас имею около 90 каналов в идеальном качестве за 29 руб. в месяц!V34 писал(а):Вот бы знать как тарелка будет брать в яме... Если будет, то нафик не нужны все эти кабельные.oln107 писал(а):На счет телеантены - не в курсе, нужна ли она?
При установке главное, чтобы было открыто направление на юг в небо, остальное не имеет значение. Ну в крайнем случае можно и на крыше поставить.
Быково, ул. Академическая (ПДСК)
Чем больше в наших домах будет провайдеров, тем привлекательнее будут тарифы!oln107 писал(а):Здравствуйте!slonik112233 писал(а):dir@mk-net.ruslonik112233 писал(а):ВНИМАНИЕ ВСЕМ! ЕСТЬ возможность подключить Академическую 8 и 10 к телеантенне и интернету МК-НЕТ.Пишите каждый гендиректору-как можно больше желающих-тогда подключат! :Я Сам уезжаю--пожалуйста подсуетитесь!!!!!!! МНЕ ОН НАПИСАЛ : А можете сообщить доп подробности.
Сколько соседей ещё желают? Сбросить точку на карте yandex с обозначением данной новостройки.
--
С уважением, Кочеров Владимир Генеральный директор ООО "БУКО" моб. 8(916)723-60-49 раб. 8(4967)58-35-31 мк-нет скорость 60 мегабит за 500 руб
На счет телеантены - не в курсе, нужна ли она?
на счет Интернета - я бы прежде чем писать письма с просьбой подключить уточнил что за провайдер, отзывы и тарифы посмотрел.
На Подольском форуме есть темы, посвещенные этой теме. Новый дом любой провайдер с удовольствием подключил-бы.
Например я пользуюсь провайдером Силинет, и надеюсь, что он придет в мою новую квартиру.
-
sobersu
- Member

- Сообщения: 115
- Зарегистрирован: 08 июн 2013 21:30
- Откуда: спортивная 6
- Контактная информация:
Быково, ул. Академическая (ПДСК)
AFOKS, Скажите пожалуйста, как узнать какое остекление ставит ПДСК?
Решил посмотреть образцы, на спортивной 10 - остекление разное, где-то бок заделан на глухо, где-то нет. Если я решу написать заявление на отказ от остекления, какие документы для этого нужно с собой будет взять?
Решил посмотреть образцы, на спортивной 10 - остекление разное, где-то бок заделан на глухо, где-то нет. Если я решу написать заявление на отказ от остекления, какие документы для этого нужно с собой будет взять?
http://mybykovo.ru
Быково, ул. Академическая (ПДСК)
AFOKS писал от29.04 о готовности первого дома. Несколько дней назад писал что залили под подъезды фундамент и после праздников будут возводить подъезды у первого дома. Почитайте ветку с 29.04 по сегодня сообщения от AFOKSA и всё найдёте.
Быково, ул. Академическая (ПДСК)
saniya8 я вам в личку написала.
Быково, ул. Академическая (ПДСК)
Быково, ул. Академическая (ПДСК)
Сообщение AFOKS » 29-04-2014 15:14
1. Первый дом вчера опрессовывали, то есть все готово. сейчас в работе 2,4,6. потом 3 начнут.
2. Эти строение не какого отношения к Вашим домам не имеют.
3. Электрика заложена в проекте изготовления панелей. В магистралях закладываются хорошие кабеля, далее вам потребуется всего лишь разнести розеточные блоки и перенести выключатели на уровень пояса. Менять проводку я не стал бы, ну а там лично Ваше дело
Сообщение AFOKS » 29-04-2014 15:14
1. Первый дом вчера опрессовывали, то есть все готово. сейчас в работе 2,4,6. потом 3 начнут.
2. Эти строение не какого отношения к Вашим домам не имеют.
3. Электрика заложена в проекте изготовления панелей. В магистралях закладываются хорошие кабеля, далее вам потребуется всего лишь разнести розеточные блоки и перенести выключатели на уровень пояса. Менять проводку я не стал бы, ну а там лично Ваше дело
- Чилли Вилли
- New member

- Сообщения: 39
- Зарегистрирован: 10 фев 2014 21:28
Быково, ул. Академическая (ПДСК)
......................ия !?
Последний раз редактировалось Чилли Вилли 08 ноя 2015 21:43, всего редактировалось 1 раз.
-
sobersu
- Member

- Сообщения: 115
- Зарегистрирован: 08 июн 2013 21:30
- Откуда: спортивная 6
- Контактная информация:
Быково, ул. Академическая (ПДСК)
декабрь 2013, проскакивали сроки и более ранние... Очень надеюсь, что к концу года закончат, хотя объем работ не малый, а темпы не радуют.saniya8 писал(а):В нашем договоре срок госкомиссии 20 мая. Какой в вашем?
http://mybykovo.ru
Быково, ул. Академическая (ПДСК)
По рассказам стариков, была свалка там, где сейчас СНТ Борисовка. Потом ее засыпали, говорят, что была не долго. В воскресенье ездил в это снт, свалки не видел. Рядом со стройкой свалки нет в помине и не было никогда.Чилли Вилли писал(а):по поводу СВАЛКИ возле нас , это как от Щербинки ехать по дороге в Быково справа , поговорил со знающим человеком он говорит что там свалка действующая т.е. мусорная свалка !? кто нибудь что нибудь знает
просто в теме кто то писал опровержение что мол никакой там свалки нет , у кого нибудь есть достоверная информация !?
http://mybykovo.ru
Быково, ул. Академическая (ПДСК)
V34 писал(а):По рассказам стариков, была свалка там, где сейчас СНТ Борисовка. Потом ее засыпали, говорят, что была не долго. В воскресенье ездил в это снт, свалки не видел. Рядом со стройкой свалки нет в помине и не было никогда.Чилли Вилли писал(а):по поводу СВАЛКИ возле нас , это как от Щербинки ехать по дороге в Быково справа , поговорил со знающим человеком он говорит что там свалка действующая т.е. мусорная свалка !? кто нибудь что нибудь знает
просто в теме кто то писал опровержение что мол никакой там свалки нет , у кого нибудь есть достоверная информация !?
Свалка была возле Борисовки, но ее пару лет назад начали рекультивировать, теперь на ее месте строят склады.
Быково, ул. Академическая (ПДСК)
Да, там сейчас строят склады.Tony777 писал(а):V34 писал(а):По рассказам стариков, была свалка там, где сейчас СНТ Борисовка. Потом ее засыпали, говорят, что была не долго. В воскресенье ездил в это снт, свалки не видел. Рядом со стройкой свалки нет в помине и не было никогда.Чилли Вилли писал(а):по поводу СВАЛКИ возле нас , это как от Щербинки ехать по дороге в Быково справа , поговорил со знающим человеком он говорит что там свалка действующая т.е. мусорная свалка !? кто нибудь что нибудь знает
просто в теме кто то писал опровержение что мол никакой там свалки нет , у кого нибудь есть достоверная информация !?
Свалка была возле Борисовки, но ее пару лет назад начали рекультивировать, теперь на ее месте строят склады.
Быково, ул. Академическая (ПДСК)
Написано - окончание строительства 26.02.2014. Хоть кто то строит к срокам? 
http://mybykovo.ru
Быково, ул. Академическая (ПДСК)
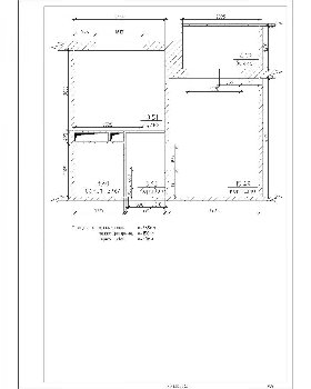
Был вчера проездом. Скажу так. Полностью остекленных домов нет. И на счет опрессовки - полная чушь!!! Кирпичную кладку подъезда заканчивают только у 4-го дома. остальные даже не начаты. Рабочие шубуршат у каждых домов. Видел несколько экскаваторов и бульдозеров. Электрика сделана, стоят розетки и выключатели. Стоит лифт, но к сожалению начинают двери шахты и направляющие с кронштейнами по шахте покрываться ржавчиной. Побывал в своей квартире 1Б в 3-ем доме. Снял размеры. Вроде начали ковыряться и со стадионом. Несколько фото прилагаю.
Быково, ул. Академическая (ПДСК)
Как, все печально!!!
Быково, ул. Академическая (ПДСК)
Щели между плитами действительно большие, видно соседей снизу и сверху, на фото видно))) Так что о дополнительной шумоизоляции придется позаботиться на стадии ремонта. Сейчас огромный плюс, это вид из окна - фото!
Быково, ул. Академическая (ПДСК)
Главное что работы ведутся, хоть и не в сроки(( Работало на всем объекте порядка 20 человек. Мои предположения, что готовность к запуску на ремонт квартир будет к НГ. А то что АФОКС пишет про сдачу к началу июня, полная лажа. Он пишет то, что ему сверху говорят. Реально оценить обстановку можно побывав на стройке.rover888 писал(а):На данный момент вид это самое радостное во всем этом!!!!!!
Быково, ул. Академическая (ПДСК)
Пишите сообщение, внизу радом с кнопкой "отправить" - "Предпросмотр" - жмите его,
увидите, что появилась внизу вкладка - "добавить вложения", жмите... потом "обзор" выберите в ваших папках фото, два раза щелкните на нем... между "обзор" и "добавить файл" появиться имя файла... жмите "добавить файл"
так можно несколько раз, смотря сколько фото
и жмите "отправить"
увидите, что появилась внизу вкладка - "добавить вложения", жмите... потом "обзор" выберите в ваших папках фото, два раза щелкните на нем... между "обзор" и "добавить файл" появиться имя файла... жмите "добавить файл"
так можно несколько раз, смотря сколько фото
и жмите "отправить"
http://mybykovo.ru
-
sobersu
- Member

- Сообщения: 115
- Зарегистрирован: 08 июн 2013 21:30
- Откуда: спортивная 6
- Контактная информация:
Быково, ул. Академическая (ПДСК)
Сейчас звонил подрядчику, что остекляет балконы. Он заверил что остекление ставится в алюминии, AFOKS утверждает, что пластик.
На следующей неделе поеду смотреть, что ставят и заявление на отказ напишу.
На следующей неделе поеду смотреть, что ставят и заявление на отказ напишу.
http://mybykovo.ru
-
sobersu
- Member

- Сообщения: 115
- Зарегистрирован: 08 июн 2013 21:30
- Откуда: спортивная 6
- Контактная информация:
Быково, ул. Академическая (ПДСК)
Не спрашивал, да и связи особой не вижу )rover888 писал(а):Подрядчик не говорил о сроках по спортивной. Может хоть так мы узнаем срок сдачи.
http://mybykovo.ru
Быково, ул. Академическая (ПДСК)
Добрый день, соседи по ул. Спортивной! Читаю переписку и в панике ,снова ничего не делают, снова нас обманули, никакой сдачи домов в июне не будет? Надо что-то предпринимать, сколько можно над нами издеваться непонятно. Нам вот например жить негде, последний месяц июль и нас выселяют и так хозяйка на уступки шла все это время. Наверное поедем жить в ПДСК. Звонили в ПДСК в строительный отдел, нам там мужчина ничего толкового не ответил,сначала сказал июль месяц, но это мы так поняли еще неточно, да еще и недовольный бросил трубку, вот вам еще и хамское отношение к своим дольщикам.Кто что думает по этому поводу, надо же что-то делать...
Быково, ул. Академическая (ПДСК)
AFOKS, как обстоят дела со сроками строительства ,что-то вы снова куда-то пропали? Как видите,что начинается волнение, сразу куда-то пропадаете, общайтесь со своими дольщиками, ведь это единственная связь с ПДСК, т.к в офисе ни до кого не дозвониться, вот как Вы уважаете своих дольщиков. Что получается снова обман по срокам? AFOKS нам жить негде, последний месяц съемного жилья июль, мы ждем сдачу нашей квартиры по Спортивной в июне, чтобы сделать ремонт в июле. У нас серьезные проблемы и это не шутка...
-
Ветка сирени
- Member

- Сообщения: 137
- Зарегистрирован: 31 янв 2014 16:37
Быково, ул. Академическая (ПДСК)
Да кстати мы тоже переезжаем в ПДСК издеваются над людьми сколько мы должны снимать жилье ? нужно в суд подавать так они и будут до декабря 2014 года тянуть сроки ни кокого июня нам не светит...
Быково, ул. Академическая (ПДСК)
Может быть трансформаторная подстанция...rover888 писал(а):Кто знает что это за конструкция у первого дома?
Быково, ул. Академическая (ПДСК)
Как ничего не делают???? Был пятью днями ранее и третий дом был вообще без остекления, а сейчас хоть что то ставят! И блоков под подъезд не было... Все таки сдвиги есть, пускай и не в сроки.rover888 писал(а):Надеюсь ПДСК не хотят нас видеть в таком близком соседстве. Есть немного фото со стройки. Сегодня были. Стали остеклять первый подъезд 3-его дома. Остекляют вместе с балконами. Про первый дом видимо решили забыть. У первого дома никаких подъездных блоков нет. Есть у третьего дома первого подъезда стоят плиты похожие на блок. Второй дом без подъезда. Получается это они только сантехнические трубы тянуть начали.
Быково, ул. Академическая (ПДСК)
ВНИМАНИЕ!!!!!!! ВНИМАНИЕ!!!!! ВНИМАНИЕ!!!!!
Собираем инициативную группу по Спортивной, договорилась о встрече с руководством ПДСК для отчета перед нами.
ЧЕТВЕРГ 22 мая, 17.00.
Кто сможет и заинтересован пойти, пишите в личку, оставляйте контакты (ФИО, Спортивная №дома/квартира, тел)
Собираем инициативную группу по Спортивной, договорилась о встрече с руководством ПДСК для отчета перед нами.
ЧЕТВЕРГ 22 мая, 17.00.
Кто сможет и заинтересован пойти, пишите в личку, оставляйте контакты (ФИО, Спортивная №дома/квартира, тел)
-
Ветка сирени
- Member

- Сообщения: 137
- Зарегистрирован: 31 янв 2014 16:37
Быково, ул. Академическая (ПДСК)
Приедим
Быково, ул. Академическая (ПДСК)
Тоже будет супруг.
Быково, ул. Академическая (ПДСК)
Ну уж не наговаривайте! Все работает!rover888 писал(а):Сейчас зашла на сайт семфиропольского он не работает. У них даже денег нет сайт оплатить?
-
sobersu
- Member

- Сообщения: 115
- Зарегистрирован: 08 июн 2013 21:30
- Откуда: спортивная 6
- Контактная информация:
Быково, ул. Академическая (ПДСК)
Оплатили, paid-till: 2015.05.18. Заработает в течении суток, у меня пока не открывается. У нас в конторе один раз было, забыли оплатить доменное имя клиента, его успели перекупить, долго потом за него бодалисьvja4es1av писал(а):Ну уж не наговаривайте! Все работает!rover888 писал(а):Сейчас зашла на сайт семфиропольского он не работает. У них даже денег нет сайт оплатить?
http://mybykovo.ru

