ЖК "Бородино" Бородинский бульвар
ЖК "Бородино" Бородинский бульвар (КАСКАД)
Добрый день, Марина!
Благодарим Вас за фоторепортажи!
Можно к вам небольшую просьбу, сфотографировать дом.7 в максимальном разрешении, максимально близко, так чтобы было видно обе стороны дома ?
У вас это так замечательно выходит
А то наш штатный фотограф никак не найдет точку откуда вы делаете фото.
З.Ы. Если их будет несколько, моей признательности не будет предела )))
Благодарим Вас за фоторепортажи!
Можно к вам небольшую просьбу, сфотографировать дом.7 в максимальном разрешении, максимально близко, так чтобы было видно обе стороны дома ?
У вас это так замечательно выходит
А то наш штатный фотограф никак не найдет точку откуда вы делаете фото.
З.Ы. Если их будет несколько, моей признательности не будет предела )))
"Есть такие люди, к которым просто хочется подойти и поинтересоваться, сложно ли без мозгов жить..."
Фаина Раневская
Фаина Раневская
ЖК "Бородино" Бородинский бульвар (КАСКАД)
По грязюке лазить не хочет_Serg_ писал(а):А то наш штатный фотограф никак не найдет точку откуда вы делаете фото.
ЖК "Бородино" Бородинский бульвар (КАСКАД)
Сергей, постараюсь на днях дойти. Фотографирую около голубятни
))) рядом с домом ул. Сосновая, д. 10
)) во время прогулки с сыном 
ЖК "Бородино" Бородинский бульвар (КАСКАД)
АхахаBrumbel писал(а):По грязюке лазить не хочет_Serg_ писал(а):А то наш штатный фотограф никак не найдет точку откуда вы делаете фото.
ЖК "Бородино" Бородинский бульвар (КАСКАД)
Видел, я в воскресенье подъезжал поглядеть на домики.МаринаVMS писал(а): Ахаха)) там подсохло уже
))
На прудик заодно глянул. Интересно там купаться зя?
ЖК "Бородино" Бородинский бульвар (КАСКАД)
Марина, благодарю за фото 
"Есть такие люди, к которым просто хочется подойти и поинтересоваться, сложно ли без мозгов жить..."
Фаина Раневская
Фаина Раневская
ЖК "Бородино" Бородинский бульвар (КАСКАД)
Сейчас купаются моржи, на Крещение прорубь батюшка освещает. Бассейн ( искусственный водоем) вообще чистят и обрабатывают воду от чего-то. Вода циркулирует. Летом купаются.Brumbel писал(а):Видел, я в воскресенье подъезжал поглядеть на домики.МаринаVMS писал(а): Ахаха)) там подсохло уже
))
На прудик заодно глянул. Интересно там купаться зя?
ЖК "Бородино" Бородинский бульвар (КАСКАД)
МаринаVMS
Здоровски.
Здоровски.
-
Светлана555
- New member

- Сообщения: 37
- Зарегистрирован: 20 мар 2014 14:14
ЖК "Бородино" Бородинский бульвар (КАСКАД)
Фото получилось классно!МаринаVMS писал(а):+7 дом
ЖК "Бородино" Бородинский бульвар (КАСКАД)
ОтличноСветлана555 писал(а):Фото получилось классно!МаринаVMS писал(а):+7 домВозможно скоро будем обладателями доли в этом доме)))
-
adekvatnaya
- New member

- Сообщения: 26
- Зарегистрирован: 05 мар 2014 23:41
ЖК "Бородино" Бородинский бульвар (КАСКАД)
Скажите а подъезд дома 5 на сторону леса выходит?
-
Чистое Кутузово
- Member

- Сообщения: 72
- Зарегистрирован: 28 дек 2012 00:02
ЖК "Бородино" Бородинский бульвар (КАСКАД)
Выход с черной лестнцы на лес, а парадка с противоположной.adekvatnaya писал(а):Скажите а подъезд дома 5 на сторону леса выходит?
Мы в контакте: http://vk.com/chistoektz -проект "Чистое Кутузово".
-
adekvatnaya
- New member

- Сообщения: 26
- Зарегистрирован: 05 мар 2014 23:41
ЖК "Бородино" Бородинский бульвар (КАСКАД)
Спасибо)Чистое Кутузово писал(а):Выход с черной лестнцы на лес, а парадка с противоположной.adekvatnaya писал(а):Скажите а подъезд дома 5 на сторону леса выходит?
ЖК "Бородино" Бородинский бульвар (КАСКАД)
Это как понимать?????Чистое Кутузово писал(а):Выход с черной лестнцы на лес, а парадка с противоположной.adekvatnaya писал(а):Скажите а подъезд дома 5 на сторону леса выходит?
-
Светлана555
- New member

- Сообщения: 37
- Зарегистрирован: 20 мар 2014 14:14
ЖК "Бородино" Бородинский бульвар (КАСКАД)
Гэ.Ка писал(а):Это как понимать?????Чистое Кутузово писал(а):Выход с черной лестнцы на лес, а парадка с противоположной.adekvatnaya писал(а):Скажите а подъезд дома 5 на сторону леса выходит?![]()
Во закрутили!!!! Разъясните непонятливым... Каскад утверждал, что подъезд со стороны леса, что-то поменялось???
Нет никаких "черных" и "парадных" все подъезды выходят на сторону леса
-
Чистое Кутузово
- Member

- Сообщения: 72
- Зарегистрирован: 28 дек 2012 00:02
ЖК "Бородино" Бородинский бульвар (КАСКАД)
Вы были на стройке? По адресу Бородинский бульвар д.5 я видел это собственными глазами. Готов поспорить на 5 мешков собранного мусора на предстоящем субботнике 26 апреля, согласны?т никаких "черных" и "парадных" все подъезды выходят на сторону леса
Мы в контакте: http://vk.com/chistoektz -проект "Чистое Кутузово".
ЖК "Бородино" Бородинский бульвар (КАСКАД)
Обсуждение водоема перенесено в тему водоемов
http://forum.podolsk.ru/viewtopic.php?p ... 5#p2042635
http://forum.podolsk.ru/viewtopic.php?p ... 5#p2042635
ЖК "Бородино" Бородинский бульвар (КАСКАД)
Вы были непосредственно в доме 5 ???? Где по Вашему вход в подъезд? Что Вы имеете ввиду под словом "парадка" - коммерческие помещения??Чистое Кутузово писал(а):Вы были на стройке? По адресу Бородинский бульвар д.5 я видел это собственными глазами. Готов поспорить на 5 мешков собранного мусора на предстоящем субботнике 26 апреля, согласны?т никаких "черных" и "парадных" все подъезды выходят на сторону леса
ЖК "Бородино" Бородинский бульвар (КАСКАД)
Парадка - парадный подъезд, главный и основной вход в дом, там где место для консьержа, лифты, и т.д. А на лес черный вход, запасной, который в некоторых домах бывает закрыт вообще, вход на лестницу там... Вообще, Сергей вроде утверждал, что основной вход в дом будет со стороны леса, но судя по тому, что построили, главный вход действительно со двора...Гэ.Ка писал(а):Вы были непосредственно в доме 5 ???? Где по Вашему вход в подъезд? Что Вы имеете ввиду под словом "парадка" - коммерческие помещения??Чистое Кутузово писал(а):Вы были на стройке? По адресу Бородинский бульвар д.5 я видел это собственными глазами. Готов поспорить на 5 мешков собранного мусора на предстоящем субботнике 26 апреля, согласны?т никаких "черных" и "парадных" все подъезды выходят на сторону леса
ЖК "Бородино" Бородинский бульвар (КАСКАД)
А Вы точно видели главный вход со двора????OSD писал(а): Парадка - парадный подъезд, главный и основной вход в дом, там где место для консьержа, лифты, и т.д. А на лес черный вход, запасной, который в некоторых домах бывает закрыт вообще, вход на лестницу там... Вообще, Сергей вроде утверждал, что основной вход в дом будет со стороны леса, но судя по тому, что построили, главный вход действительно со двора...
ЖК "Бородино" Бородинский бульвар (КАСКАД)
Мы там давно не были, но судя по последним фотографиям очень похоже... со стороны двора подъезды больше похожи на главный вход, вообще конечно хочется услышать ответ Сергея...Гэ.Ка писал(а):А Вы точно видели главный вход со двора????OSD писал(а): Парадка - парадный подъезд, главный и основной вход в дом, там где место для консьержа, лифты, и т.д. А на лес черный вход, запасной, который в некоторых домах бывает закрыт вообще, вход на лестницу там... Вообще, Сергей вроде утверждал, что основной вход в дом будет со стороны леса, но судя по тому, что построили, главный вход действительно со двора...
ЖК "Бородино" Бородинский бульвар (КАСКАД)
Когда я интересовалась относительно того, с какой стороны дома будет подъезд, представитель Каскада мне пояснила,что все подъезды будут со стороны леса...
ЖК "Бородино" Бородинский бульвар (КАСКАД)
Никто не в курсе - около леса огородили площадку и что-то копают?
Последний раз редактировалось SNatalyaw 18 апр 2014 14:26, всего редактировалось 1 раз.
ЖК "Бородино" Бородинский бульвар (КАСКАД)
Добрый день!
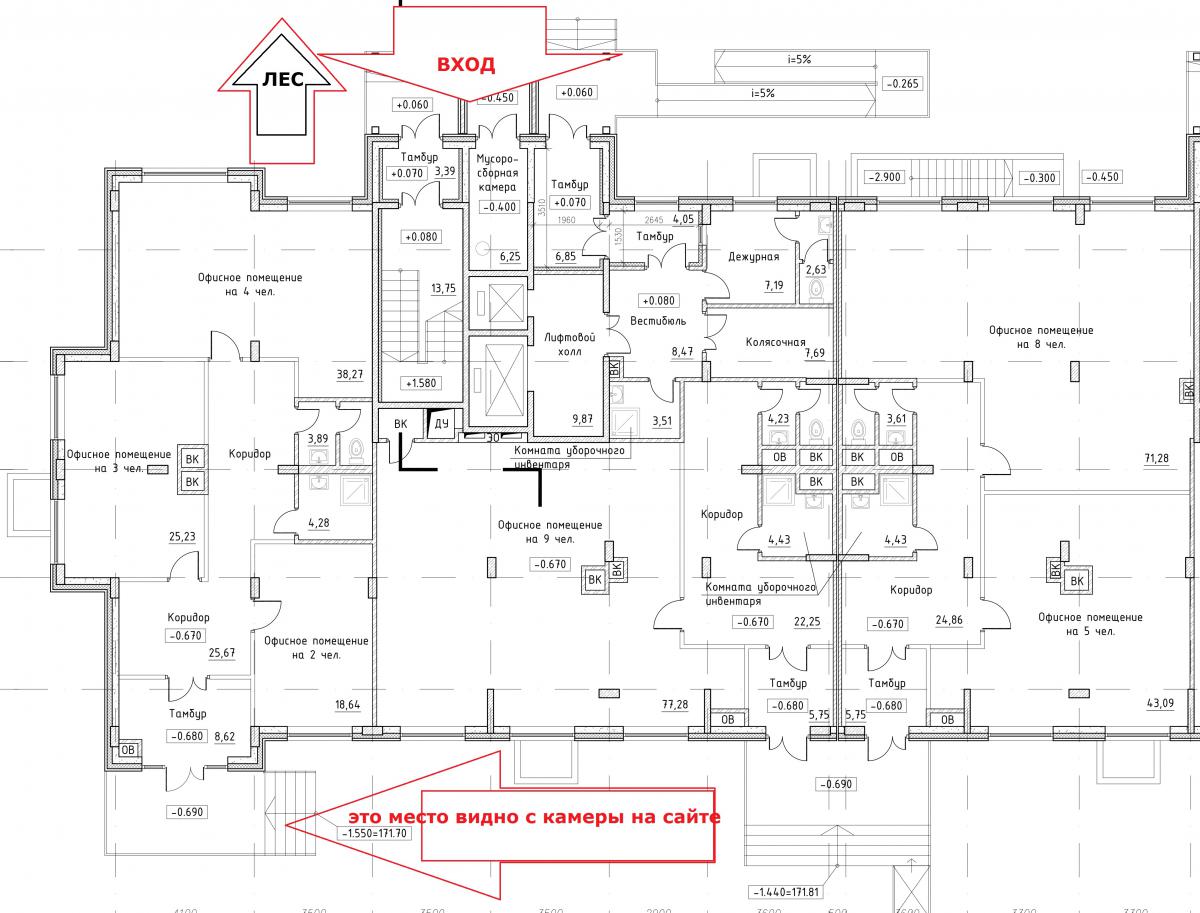
Около леса начинают строить строение № 10 по плану.
Что касается "парадки" :
Я говорил и говорю только ту информацию, подтверждение которой имею.
Получаю подтверждение информации либо у застройщика, либо у подрядчиков.
Вот схема нежилых помещений на первом этаже, я уже публиковал подобную, но другого дома.
Около леса начинают строить строение № 10 по плану.
Что касается "парадки" :
Я говорил и говорю только ту информацию, подтверждение которой имею.
Получаю подтверждение информации либо у застройщика, либо у подрядчиков.
Вот схема нежилых помещений на первом этаже, я уже публиковал подобную, но другого дома.
"Есть такие люди, к которым просто хочется подойти и поинтересоваться, сложно ли без мозгов жить..."
Фаина Раневская
Фаина Раневская
ЖК "Бородино" Бородинский бульвар (КАСКАД)
Толи дом пять горит, толи рядом с ним. Но брат сказал что точно строй горит. Сильно
С уважением к Вашему мнению, Елена
ЖК "Бородино" Бородинский бульвар (КАСКАД)
Потушили уже.
Сережа, это что такое было?
Сережа, это что такое было?
С уважением к Вашему мнению, Елена
ЖК "Бородино" Бородинский бульвар (КАСКАД)
Это пожар в пятом доме
[video]http://youtu.be/n0wKP4ZzLIY[/video]
[video]http://youtu.be/n0wKP4ZzLIY[/video]
ЖК "Бородино" Бородинский бульвар (КАСКАД)
19 апреля 2014 г. в 10.55 на пульт диспетчера Подольской пожарной охраны поступило сообщение о возгорании в новостройки по адресу: Московская область, Подольск, Бородинский бульвар, на территории ЖК "Бородино".
К прибытию первого пожарного подразделения, происходило горение стройматериалов на первом этаже.
В 11.50 - полная ликвидация последствий пожара.
Пострадавших нет.
Привлекаемые силы и средства: 2 единицы техники, 6 человек.
http://www.podolsk.ru/proisshestviya_v_ ... 16566.html
К прибытию первого пожарного подразделения, происходило горение стройматериалов на первом этаже.
В 11.50 - полная ликвидация последствий пожара.
Пострадавших нет.
Привлекаемые силы и средства: 2 единицы техники, 6 человек.
http://www.podolsk.ru/proisshestviya_v_ ... 16566.html

