Спасибо!Вико писал(а): Вчера звонила застройщику 8 (495) 221-11-34, попросила скинуть проектные размеры нашей квартиры. Скинули в течении 10 минут на элект. почту.

Спасибо!Вико писал(а): Вчера звонила застройщику 8 (495) 221-11-34, попросила скинуть проектные размеры нашей квартиры. Скинули в течении 10 минут на элект. почту.
Позвонил по данному номеру, мне отказали не в очень мягкой форме, звякнул в Азбуку жилья, мне сказали что у них размеров нет, предложили приехать на объект с рулеткой и померить, но на сколько я понял, мереть на объекте не разрешают, получается замкнутый круг????Tatyana474 писал(а):Спасибо!Вико писал(а): Вчера звонила застройщику 8 (495) 221-11-34, попросила скинуть проектные размеры нашей квартиры. Скинули в течении 10 минут на элект. почту.
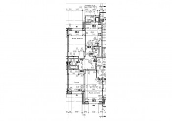
А есть у кого ни будь первый корпус 7 секция или второй корпус 1 или 6 секция ? мне интересна длинна комнаты.Anatoly писал(а):Кому интересно - размеры двушки 61,4 кв.м:
Попробуйте позвонить по этому телефону - 8 800 250-77-66 и скажите чтобы соединили с отделом продаж. Только сегодня им звонил и где-то часа через 2 выслали на почту размеры.udjin333 писал(а):Позвонил по данному номеру, мне отказали не в очень мягкой форме, звякнул в Азбуку жилья, мне сказали что у них размеров нет, предложили приехать на объект с рулеткой и померить, но на сколько я понял, мереть на объекте не разрешают, получается замкнутый круг????Tatyana474 писал(а):Спасибо!Вико писал(а): Вчера звонила застройщику 8 (495) 221-11-34, попросила скинуть проектные размеры нашей квартиры. Скинули в течении 10 минут на элект. почту.
Можно развернуть на весь экран и сделать прин скринВико писал(а):А как файл pdf тут прикрепить?
Pdf не прикрепляет - в adobe сохраните его как .jpgВико писал(а):А как файл pdf тут прикрепить?
Спасибо...marisha888 писал(а):Здравствуйте,какие размеры вас интересуют? про межкомнатные перегородки обсуждали в сентябре-октябре...страниц 30-35 назад....там даже фото былиDiyakon_Frost писал(а):Я читал что многие уже прошли на осмотр квартир в корпус 1
Расскажите к кому вы подходили и под каким предлогом? (я догадываюсь - хочу купить - покажите)
Хочу померить однушку 41,5 км2
А и что точно стало известно что они возводят теперь межкомнатные стены?
Мы с женой приобрели там квартиру в 1к 2п 9э 111кв (кстати соседи отзовитесь если читаете давайте знакомитьсяпока что на форуме)
да однушка 41,5...есть чертеж секции в автокадеDiyakon_Frost писал(а):Спасибо...marisha888 писал(а):Здравствуйте,какие размеры вас интересуют? про межкомнатные перегородки обсуждали в сентябре-октябре...страниц 30-35 назад....там даже фото былиDiyakon_Frost писал(а):Я читал что многие уже прошли на осмотр квартир в корпус 1
Расскажите к кому вы подходили и под каким предлогом? (я догадываюсь - хочу купить - покажите)
Хочу померить однушку 41,5 км2
А и что точно стало известно что они возводят теперь межкомнатные стены?
Мы с женой приобрели там квартиру в 1к 2п 9э 111кв (кстати соседи отзовитесь если читаете давайте знакомитьсяпока что на форуме)
На стр. 40 нашел ваши фото квартирки
У вас случайно не однушка тоже 41,5 (очень похожа) ?
Про размеры: Ну хотел бы воссоздать квартиру в какой нибудь программке для это нужна длины и ширине стен... (Хотя бы узнаем примерно во сколько ремонт нам выльется и насколько затянется, ну и какой примерно мы хотим видеть квартирку)
да однушка 41,5...есть чертеж секции в автокаде[/quote]marisha888 писал(а): Спасибо...
На стр. 40 нашел ваши фото квартирки
У вас случайно не однушка тоже 41,5 (очень похожа) ?
Про размеры: Ну хотел бы воссоздать квартиру в какой нибудь программке для это нужна длины и ширине стен... (Хотя бы узнаем примерно во сколько ремонт нам выльется и насколько затянется, ну и какой примерно мы хотим видеть квартирку)
почту в ЛС сброшу....2 корпус,1 секция, двушка 59,9sv.kos писал(а):У кого есть размеры двушки 2 корпус 59,9 ????? выложите пожалуйста!!!
А в чем у них разница?Ppave писал(а):Добрый день. А у кого есть размеры однушки 44.8 , та что в 1 корпусе 7 секция?
Поддерживаю! Правильно говоришь!))))Тропарь писал(а):Оу, товарищи, грязи льёте больше, чем грузовики со стройки вывозят на колесах.
Прекратите срач ) что ни страница - так негатив. Высказались, хватит. Оставьте форум для жильцов и тех, кто в перспективе видит себя жильцом. Советовать, вернее хаять, на каждой странице - попугая удел, твердить фразы одни. Кто Ищет информацию, тот прочтет ВСЮ ветку, и выводы свои сделает.
Не нравится - не лезьте, если вы уж такие сердобольные, то лучше энергию направьте в помощь животным и сироткам, им она нужнее будет.
А размеров трёшки у вас случайно нет? 79,1 кв.м...Таисия писал(а):почту в ЛС сброшу....2 корпус,1 секция, двушка 59,9sv.kos писал(а):У кого есть размеры двушки 2 корпус 59,9 ????? выложите пожалуйста!!!
chestoy-ili-ment писал(а):А размеров трёшки у вас случайно нет? 79,1 кв.м...Таисия писал(а):почту в ЛС сброшу....2 корпус,1 секция, двушка 59,9sv.kos писал(а):У кого есть размеры двушки 2 корпус 59,9 ????? выложите пожалуйста!!!![]()
На конец января уже совсем не актуальное состояниеЗастроЙЩЕГ писал(а):http://www.жк-весенний.рф/fotogalereya/aktualnoe-sostoyanie-korpusa-1.html
там на конец января, есть более свежие фото, давайте адрес, скину на почту
Через пару недель будем в тех местах, пощелкаю оба корпуса, если раньше кто-нибудь не выложитElisson писал(а):Уважаемый, ЗастроЙЩЕГ! Если у Вас есть свежие фото выложите их пожалуйста здесь на всеобщее обозрение и желательно фото не только первого корпуса, но и второго!