Спасибо!Вико писал(а): Вчера звонила застройщику 8 (495) 221-11-34, попросила скинуть проектные размеры нашей квартиры. Скинули в течении 10 минут на элект. почту.
ЖК "Весенний"
-
Tatyana Klychkova
- New member

- Сообщения: 33
- Зарегистрирован: 18 фев 2014 11:56
ЖК "Весенний"
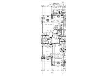
1 корпус, 6 секция
ЖК "Весенний"
Кому интересно - размеры двушки 61,4 кв.м:
ЖК "Весенний"
Позвонил по данному номеру, мне отказали не в очень мягкой форме, звякнул в Азбуку жилья, мне сказали что у них размеров нет, предложили приехать на объект с рулеткой и померить, но на сколько я понял, мереть на объекте не разрешают, получается замкнутый круг????Tatyana474 писал(а):Спасибо!Вико писал(а): Вчера звонила застройщику 8 (495) 221-11-34, попросила скинуть проектные размеры нашей квартиры. Скинули в течении 10 минут на элект. почту.
ЖК "Весенний"
А есть у кого ни будь первый корпус 7 секция или второй корпус 1 или 6 секция ? мне интересна длинна комнаты.Anatoly писал(а):Кому интересно - размеры двушки 61,4 кв.м:
ЖК "Весенний"
Попробуйте позвонить по этому телефону - 8 800 250-77-66 и скажите чтобы соединили с отделом продаж. Только сегодня им звонил и где-то часа через 2 выслали на почту размеры.udjin333 писал(а):Позвонил по данному номеру, мне отказали не в очень мягкой форме, звякнул в Азбуку жилья, мне сказали что у них размеров нет, предложили приехать на объект с рулеткой и померить, но на сколько я понял, мереть на объекте не разрешают, получается замкнутый круг????Tatyana474 писал(а):Спасибо!Вико писал(а): Вчера звонила застройщику 8 (495) 221-11-34, попросила скинуть проектные размеры нашей квартиры. Скинули в течении 10 минут на элект. почту.
ЖК "Весенний"
И может те, кто уже получил проектные размеры - здесь выложат файлы по типовым размерам квартир, чтобы каждому не звонить застройщику.
ЖК "Весенний"
Можно развернуть на весь экран и сделать прин скринВико писал(а):А как файл pdf тут прикрепить?
- marisha888
- New member

- Сообщения: 68
- Зарегистрирован: 11 мар 2013 23:00
ЖК "Весенний"
есть 1 корпус 2 секция автокад
ЖК "Весенний"
Pdf не прикрепляет - в adobe сохраните его как .jpgВико писал(а):А как файл pdf тут прикрепить?
ЖК "Весенний"
Анатолий, спасибо за размеры!
...на плане и моя "однушка" поместилась)
ЖК "Весенний"
Подскажите,кто покупал у КАПИТАЛА по договору уступки,деньги когда оплачивали?
ЖК "Весенний"
antonkol, я покупала у Капитала, оплатила в день подписания договора уступки (без оплаты они договор на регистрацию не подают).
- Diyakon_Frost
- Member

- Сообщения: 168
- Зарегистрирован: 31 авг 2010 09:26
ЖК "Весенний"
Спасибо...marisha888 писал(а):Здравствуйте,какие размеры вас интересуют? про межкомнатные перегородки обсуждали в сентябре-октябре...страниц 30-35 назад....там даже фото былиDiyakon_Frost писал(а):Я читал что многие уже прошли на осмотр квартир в корпус 1
Расскажите к кому вы подходили и под каким предлогом? (я догадываюсь - хочу купить - покажите)
Хочу померить однушку 41,5 км2
А и что точно стало известно что они возводят теперь межкомнатные стены?
Мы с женой приобрели там квартиру в 1к 2п 9э 111кв (кстати соседи отзовитесь если читаете давайте знакомитьсяпока что на форуме)
На стр. 40 нашел ваши фото квартирки
У вас случайно не однушка тоже 41,5 (очень похожа) ?
Про размеры: Ну хотел бы воссоздать квартиру в какой нибудь программке для это нужна длины и ширине стен... (Хотя бы узнаем примерно во сколько ремонт нам выльется и насколько затянется, ну и какой примерно мы хотим видеть квартирку)
- marisha888
- New member

- Сообщения: 68
- Зарегистрирован: 11 мар 2013 23:00
ЖК "Весенний"
да однушка 41,5...есть чертеж секции в автокадеDiyakon_Frost писал(а):Спасибо...marisha888 писал(а):Здравствуйте,какие размеры вас интересуют? про межкомнатные перегородки обсуждали в сентябре-октябре...страниц 30-35 назад....там даже фото былиDiyakon_Frost писал(а):Я читал что многие уже прошли на осмотр квартир в корпус 1
Расскажите к кому вы подходили и под каким предлогом? (я догадываюсь - хочу купить - покажите)
Хочу померить однушку 41,5 км2
А и что точно стало известно что они возводят теперь межкомнатные стены?
Мы с женой приобрели там квартиру в 1к 2п 9э 111кв (кстати соседи отзовитесь если читаете давайте знакомитьсяпока что на форуме)
На стр. 40 нашел ваши фото квартирки
У вас случайно не однушка тоже 41,5 (очень похожа) ?
Про размеры: Ну хотел бы воссоздать квартиру в какой нибудь программке для это нужна длины и ширине стен... (Хотя бы узнаем примерно во сколько ремонт нам выльется и насколько затянется, ну и какой примерно мы хотим видеть квартирку)
- Diyakon_Frost
- Member

- Сообщения: 168
- Зарегистрирован: 31 авг 2010 09:26
ЖК "Весенний"
да однушка 41,5...есть чертеж секции в автокаде[/quote]marisha888 писал(а): Спасибо...
На стр. 40 нашел ваши фото квартирки
У вас случайно не однушка тоже 41,5 (очень похожа) ?
Про размеры: Ну хотел бы воссоздать квартиру в какой нибудь программке для это нужна длины и ширине стен... (Хотя бы узнаем примерно во сколько ремонт нам выльется и насколько затянется, ну и какой примерно мы хотим видеть квартирку)
Дайте дайте дайте
Скинте пожалуйста на почту
Последний раз редактировалось Diyakon_Frost 03 мар 2014 11:23, всего редактировалось 1 раз.
- MarsGaspar
- Member

- Сообщения: 207
- Зарегистрирован: 02 авг 2013 12:42
ЖК "Весенний"
Если кто будет однушку 44.8 запрашивать, закинтье в личку.
Когда интересно закроют дорогу? Который день езжу, все открыто, хотя яндекс упорно показывает перекрытия, но все давно знают, что он еще тот врунишка
Когда интересно закроют дорогу? Который день езжу, все открыто, хотя яндекс упорно показывает перекрытия, но все давно знают, что он еще тот врунишка
ЖК "Весенний"
Это однушка 44,8 - 2 корпус 1 секция 
- MarsGaspar
- Member

- Сообщения: 207
- Зарегистрирован: 02 авг 2013 12:42
ЖК "Весенний"
Kanistra
Спасибо!!!
Спасибо!!!
ЖК "Весенний"
Добрый день. А у кого есть размеры однушки 44.8 , та что в 1 корпусе 7 секция?
ЖК "Весенний"
Все однушки 44,8 одинаковые. Мы, например, купили во втором корпусе, но нас водили смотреть на квартиру в первом корпусе 7 секции, т.к. во втором корпусе еще на тот момент перегородок нигде не было.
ЖК "Весенний"
почту в ЛС сброшу....2 корпус,1 секция, двушка 59,9sv.kos писал(а):У кого есть размеры двушки 2 корпус 59,9 ????? выложите пожалуйста!!!
ЖК "Весенний"
А в чем у них разница?Ppave писал(а):Добрый день. А у кого есть размеры однушки 44.8 , та что в 1 корпусе 7 секция?
ЖК "Весенний"
Доброго дня.
Встречайте нового соседа
Кор 1 сек 5 эт 2 кв 3 на площадке
Встречайте нового соседа
Кор 1 сек 5 эт 2 кв 3 на площадке
ЖК "Весенний"
Добрый день,форумчане! в понедельник собираюсь начать покупку квартиры 547 во втором корпусе,подскажите какие подводные камни могут ожидать,может соседи объявятся...
ЖК "Весенний"
Поддерживаю! Правильно говоришь!))))Тропарь писал(а):Оу, товарищи, грязи льёте больше, чем грузовики со стройки вывозят на колесах.
Прекратите срач ) что ни страница - так негатив. Высказались, хватит. Оставьте форум для жильцов и тех, кто в перспективе видит себя жильцом. Советовать, вернее хаять, на каждой странице - попугая удел, твердить фразы одни. Кто Ищет информацию, тот прочтет ВСЮ ветку, и выводы свои сделает.
Не нравится - не лезьте, если вы уж такие сердобольные, то лучше энергию направьте в помощь животным и сироткам, им она нужнее будет.
Чтобы в старости не мерзнуть от мороза.... Нельзя дышать прохладой на детей....
- chestoy-ili-ment
- Advanced Member

- Сообщения: 465
- Зарегистрирован: 24 ноя 2013 15:37
ЖК "Весенний"
А размеров трёшки у вас случайно нет? 79,1 кв.м...Таисия писал(а):почту в ЛС сброшу....2 корпус,1 секция, двушка 59,9sv.kos писал(а):У кого есть размеры двушки 2 корпус 59,9 ????? выложите пожалуйста!!!
ЖК "Весенний"
chestoy-ili-ment писал(а):А размеров трёшки у вас случайно нет? 79,1 кв.м...Таисия писал(а):почту в ЛС сброшу....2 корпус,1 секция, двушка 59,9sv.kos писал(а):У кого есть размеры двушки 2 корпус 59,9 ????? выложите пожалуйста!!!![]()
- chestoy-ili-ment
- Advanced Member

- Сообщения: 465
- Зарегистрирован: 24 ноя 2013 15:37
ЖК "Весенний"
Люди,кто мимо Весеннего ездит, сделайте плиз фотки первого корпуса со стороны дороги. Давно что-то свежих нет.
На ВСН только какие-то обрезки фоток , крыша и окрестности 
-
ЗастроЙЩЕГ
- Out of range

- Сообщения: 4
- Зарегистрирован: 02 мар 2014 16:30
ЖК "Весенний"
Доброго времени суток Вам товарищи приобредшие жилье и сочувствующие! Давайте знакомиться, я буду для Вас консультантом по всем проблемам (насущным и не только)
-
ЗастроЙЩЕГ
- Out of range

- Сообщения: 4
- Зарегистрирован: 02 мар 2014 16:30
ЖК "Весенний"
http://www.жк-весенний.рф/fotogalereya/aktualnoe-sostoyanie-korpusa-1.html
там на конец января, есть более свежие фото, давайте адрес, скину на почту
там на конец января, есть более свежие фото, давайте адрес, скину на почту
ЖК "Весенний"
Уважаемый, ЗастроЙЩЕГ! Если у Вас есть свежие фото выложите их пожалуйста здесь на всеобщее обозрение и желательно фото не только первого корпуса, но и второго!
- chestoy-ili-ment
- Advanced Member

- Сообщения: 465
- Зарегистрирован: 24 ноя 2013 15:37
ЖК "Весенний"
На конец января уже совсем не актуальное состояниеЗастроЙЩЕГ писал(а):http://www.жк-весенний.рф/fotogalereya/aktualnoe-sostoyanie-korpusa-1.html
там на конец января, есть более свежие фото, давайте адрес, скину на почту
- chestoy-ili-ment
- Advanced Member

- Сообщения: 465
- Зарегистрирован: 24 ноя 2013 15:37
ЖК "Весенний"
Через пару недель будем в тех местах, пощелкаю оба корпуса, если раньше кто-нибудь не выложитElisson писал(а):Уважаемый, ЗастроЙЩЕГ! Если у Вас есть свежие фото выложите их пожалуйста здесь на всеобщее обозрение и желательно фото не только первого корпуса, но и второго!