ул. Колхозная, д. 20

beaver2002
Member
Member
Сообщения: 88
Зарегистрирован: 11 апр 2009 10:31

ул. Колхозная, д. 20

Сообщение beaver2002 »

.
vja4es1av
Expert
Expert
Сообщения: 1280
Зарегистрирован: 30 янв 2013 15:18

ул. Колхозная, д. 20

Сообщение vja4es1av »

Тут же все написано: http://riakom.com/newbuildings/resident/k20
Угрюмый
Expert
Expert
Сообщения: 1071
Зарегистрирован: 02 июл 2006 22:54

ул. Колхозная, д. 20

Сообщение Угрюмый »

Смущает то, что будут строить этот дом в две очереди. И цена завышенная как мне кажется.
Дом П111м. Вроде чуть выше (на 5см) потолки должны быть по сравнению с соседними риакомовскими домами, зато 19 этажей и панели наверное просто покрашены будут снаружи. Мне больше нравится отделка плиткой, как в П3М. Считаю, что такие панели долговечнее.
По планировкам - не нравится мне узкий проход рядом с сортиром. Маловаты кухни (кроме трёшек в центральной секции). Кладовки совсем маленькие. В большинстве однушек неудобная комната. В целом жилая площадь тоже маловата. Много жилых комнат рядом со стояками канализационными, что тоже не есть гуд. Вид из окон не фонтанистый будет. В угловой секции, если окна выходят во внутрь, вообще лучше светонепроницаемые шторы вешать. :mrgreen:
beaver2002
Member
Member
Сообщения: 88
Зарегистрирован: 11 апр 2009 10:31

ул. Колхозная, д. 20

Сообщение beaver2002 »

Так материал не понятно какой будет, плитка, монолит или кирпич?
Угрюмый
Expert
Expert
Сообщения: 1071
Зарегистрирован: 02 июл 2006 22:54

ул. Колхозная, д. 20

Сообщение Угрюмый »

beaver2002 писал(а):Так материал не понятно какой будет, плитка, монолит или кирпич?
Вроде П111 - это просто крашеный бетон. Внутри наружных стен - утеплитель, разумеется. Внутренние стены и перекрытия- стандартные панели.
А что, что-то не так?
beaver2002
Member
Member
Сообщения: 88
Зарегистрирован: 11 апр 2009 10:31

ул. Колхозная, д. 20

Сообщение beaver2002 »

Как то странно новострой и такие маленькие кухни, от чего люди стараются бежать к тому же и возвращаются получается, и не понятны цены, еще даже котлована нет, а уже не дешево.
Аватара пользователя
Julianna
Pro Member
Pro Member
Сообщения: 809
Зарегистрирован: 27 фев 2007 22:34
Откуда: 4 микрорайон

ул. Колхозная, д. 20

Сообщение Julianna »

ребят,никто еще не купил тут?
Аватара пользователя
Aviator
Странный гуру с адептами
Странный гуру с адептами
Сообщения: 33250
Зарегистрирован: 28 май 2007 10:42

ул. Колхозная, д. 20

Сообщение Aviator »

Julianna писал(а):ребят,никто еще не купил тут?
На Садовой лучше возьмите. Цены там ещё нормалные. И сдадут быстрее, и дома ближе к транспорту, и планировки получше.
Не без уважения, ваш Вольдемар Абрамович
Аватара пользователя
Swedly
Advanced Member
Advanced Member
Сообщения: 281
Зарегистрирован: 26 июн 2012 08:08

ул. Колхозная, д. 20

Сообщение Swedly »

Julianna писал(а):ребят,никто еще не купил тут?
Тут пока только бронируют (40-50 тыс. р., в зависимости от числа комнат в квартире). По словам менеджеров, после получения разрешения на строительство (ориентировочно в ноябре) еще с месяц займёт регистрация первого договора долевого участия. И только потом уже надо будет заносить деньги.
Аватара пользователя
Julianna
Pro Member
Pro Member
Сообщения: 809
Зарегистрирован: 27 фев 2007 22:34
Откуда: 4 микрорайон

ул. Колхозная, д. 20

Сообщение Julianna »

Swedly
Aviator
спасибо
nt_steb
Out of range
Out of range
Сообщения: 1
Зарегистрирован: 05 ноя 2013 20:23

ул. Колхозная, д. 20

Сообщение nt_steb »

Подработка наборщиком текстов
удалено, бан
beaver2002
Member
Member
Сообщения: 88
Зарегистрирован: 11 апр 2009 10:31

ул. Колхозная, д. 20

Сообщение beaver2002 »

котлован там не роют еще, кто нибудь знает?
vja4es1av
Expert
Expert
Сообщения: 1280
Зарегистрирован: 30 янв 2013 15:18

ул. Колхозная, д. 20

Сообщение vja4es1av »

beaver2002
А на сайт новостройки слабо зайти и посмотреть довольно свежую фотографию, на которой имеется исчерпывающий ответ на Ваш вопрос?
Угрюмый
Expert
Expert
Сообщения: 1071
Зарегистрирован: 02 июл 2006 22:54

ул. Колхозная, д. 20

Сообщение Угрюмый »

Ну так строить будут целый дом или половинку?
P.S. Пришлось снизить цены. Думаю, что на трёшки ещё придётся снижать, т.к. в соседнем доме предложение выгоднее по трёшкам
beaver2002
Member
Member
Сообщения: 88
Зарегистрирован: 11 апр 2009 10:31

ул. Колхозная, д. 20

Сообщение beaver2002 »

vja4es1av писал(а):beaver2002
А на сайт новостройки слабо зайти и посмотреть довольно свежую фотографию, на которой имеется исчерпывающий ответ на Ваш вопрос?
вчера заходила, еще не было информации, спасибо что с ориентировали.
Аватара пользователя
Swedly
Advanced Member
Advanced Member
Сообщения: 281
Зарегистрирован: 26 июн 2012 08:08

ул. Колхозная, д. 20

Сообщение Swedly »

beaver2002 писал(а):котлован там не роют еще, кто нибудь знает?
Числа 11 декабря там экскаватор работал, но сколько раскопал мне не видно было из-за 7к2.
По поводу получения разрешения на строительство в этот раз сказали, что ждут до конца года. :)

Upd:
О, действительно, новости и свежие фотки появились!
beaver2002
Member
Member
Сообщения: 88
Зарегистрирован: 11 апр 2009 10:31

ул. Колхозная, д. 20

Сообщение beaver2002 »

старт продаж начнется в марте, как получат все документы. вот.
Угрюмый
Expert
Expert
Сообщения: 1071
Зарегистрирован: 02 июл 2006 22:54

ул. Колхозная, д. 20

Сообщение Угрюмый »

beaver2002 писал(а):старт продаж начнется в марте, как получат все документы. вот.
Интересное дело.. А зачем тогда цены висят на сайте, если ничего не продаётся? Да ещё и уменьшаются периодически. Просто, чтобы лучше в соседнем доме брали что ли? :mrgreen:
beaver2002
Member
Member
Сообщения: 88
Зарегистрирован: 11 апр 2009 10:31

ул. Колхозная, д. 20

Сообщение beaver2002 »

видимо цены висят для предварительного бронирования, но и возможно маркетинговый ход такой :lol: :D
Угрюмый
Expert
Expert
Сообщения: 1071
Зарегистрирован: 02 июл 2006 22:54

ул. Колхозная, д. 20

Сообщение Угрюмый »

beaver2002 писал(а):видимо цены висят для предварительного бронирования, но и возможно маркетинговый ход такой :lol: :D
И что же это за "маркетинговый ход", если приходится показывать всем, что цены падают? Какой-то неправильный маркетинговый ход получается. Лучше бы собрались с силами и стали бы строить целый дом, а не его половинку. Потому как не все поверят, что сдавать будут именно половинку дома, что несомненно скажется на ценах. Правда для этого ещё нужно расселить дома.
Аватара пользователя
Aviator
Странный гуру с адептами
Странный гуру с адептами
Сообщения: 33250
Зарегистрирован: 28 май 2007 10:42

ул. Колхозная, д. 20

Сообщение Aviator »

Угрюмый писал(а):Лучше бы собрались с силами и стали бы строить целый дом, а не его половинку.
Дело там не в отсутствии сил, а в бумагах. Вопрос они решат, просто в один день дела не решаются у нас.
Так что не знаешь - лучше помолчи со своими прогнозами. ;) :D
Угрюмый писал(а):Потому как не все поверят, что сдавать будут именно половинку дома
Там очень большой дом, то ли 7, то ли 8 секций. Вполне можно сдавать его частями. Как у РПК на Пионерской. Они сначала одну половину построили, а потом к нему же рядом пристраивают ещё две секции.
Не без уважения, ваш Вольдемар Абрамович
Угрюмый
Expert
Expert
Сообщения: 1071
Зарегистрирован: 02 июл 2006 22:54

ул. Колхозная, д. 20

Сообщение Угрюмый »

Aviator писал(а):Так что не знаешь - лучше помолчи со своими прогнозами. ;) :D
Да ну? :shock: Что я не знаю? Что бумаги нужно оформлять? Это знают все. У нас в стране - это любимое занятие и основной тормоз процессов. Для сведения. ;) Просто это не отменяет тезиса о том, что лучше строить и продавать целый дом, чем его половинку.
Aviator писал(а):Там очень большой дом, то ли 7, то ли 8 секций. Вполне можно сдавать его частями. Как у РПК на Пионерской. Они сначала одну половину построили, а потом к нему же рядом пристраивают ещё две секции.
Не, ты опять не прав. Там 9 секций. :)
Аватара пользователя
Aviator
Странный гуру с адептами
Странный гуру с адептами
Сообщения: 33250
Зарегистрирован: 28 май 2007 10:42

ул. Колхозная, д. 20

Сообщение Aviator »

Угрюмый писал(а):лучше строить и продавать целый дом, чем его половинку
Конечно, лучше быть богатым и здоровым, чем бедным и больным. meeting:
Не пиши просто глупостей про "собрались бы с силами". Они вполне готовы собраться, просто есть объективные обстоятельства, которые пока не дают возможности строить весь дом сразу.
Угрюмый писал(а):Не, ты опять не прав. Там 9 секций.
Я ещё больше прав. В том, что такой большой дом можно сдавать частями. :)
Не без уважения, ваш Вольдемар Абрамович
Угрюмый
Expert
Expert
Сообщения: 1071
Зарегистрирован: 02 июл 2006 22:54

ул. Колхозная, д. 20

Сообщение Угрюмый »

Aviator писал(а):Не пиши просто глупостей про "собрались бы с силами". Они вполне готовы собраться, просто есть объективные обстоятельства, которые пока не дают возможности строить весь дом сразу.
Ну как же, как же. Вон, в ЖК Бородино "никому неизвестный застройщик" (как многие поначалу поднимали панику) строит сразу ТРИ дома и котельную. А тут такой "монстр", у которого уже несколько сданных домов прямо здесь же, и ещё три "в проекте" не может осилить строительство 9-подъездного дома. Как-то неубедительно будет выглядеть.
"Обстоятельства" там небось стандартные - никто не хочет вкладываться даже на пару-тройку лет вперёд. Хотят побыстрее срочно начать строить очередной дом (ну хоть половинку), не сдав два дома рядом, и дом на Парковой. Точнее не строить хотят начать, а ПРОДАВАТЬ разумеется. Вот и все "объективные обстоятельства". СтарО как мир. Называются эти "объективные обстоятельства" - жадность и "срубить бабла здесь и сейчас".
Угрюмый писал(а):Я ещё больше прав. В том, что такой большой дом можно сдавать частями. :)
Ага, больше правым по-моему уже быть просто невозможно! :mrgreen:
Можно-то оно можно конечно. Но не факт, что так и будут делать. Это ещё "бабка надвое сказала". А вторую часть дома чтобы достроить - нужно ещё двухэтажки расселять. Накладно и долго. И теперь представь, если они не будут сдавать половинку дома, а будут сдавать целый - на сколько лет могут попасть счастливые инвесторы. Года на четыре запросто могут.
Ну и самое главное - ты "ещё меньше прав" в том, что так делать хорошо.
;)
Аватара пользователя
Aviator
Странный гуру с адептами
Странный гуру с адептами
Сообщения: 33250
Зарегистрирован: 28 май 2007 10:42

ул. Колхозная, д. 20

Сообщение Aviator »

Угрюмый писал(а):"Обстоятельства" там небось стандартные - никто не хочет вкладываться даже на пару-тройку лет вперёд
Нет, ты неправ. Там другие обстоятельства.
Угрюмый писал(а):И теперь представь, если они не будут сдавать половинку дома, а будут сдавать целый - на сколько лет могут попасть счастливые инвесторы. Года на четыре запросто могут.
Можно и 11 лет строить, как некоторые у нас в городе. Только зачем гадать? pardon:
Не без уважения, ваш Вольдемар Абрамович
Угрюмый
Expert
Expert
Сообщения: 1071
Зарегистрирован: 02 июл 2006 22:54

ул. Колхозная, д. 20

Сообщение Угрюмый »

Aviator писал(а):Нет, ты неправ. Там другие обстоятельства.
Рассказывай. А то пока как-то неубедительно звучит. :)
Аватара пользователя
Aviator
Странный гуру с адептами
Странный гуру с адептами
Сообщения: 33250
Зарегистрирован: 28 май 2007 10:42

ул. Колхозная, д. 20

Сообщение Aviator »

Угрюмый
Мне их озвучивали не для того, чтобы я их озвучивал тебе. Там ничего криминального, просто я ж не трепло. :naughty:
Можешь сходить в господину Дьякову и пообщаться. Тем более, ты его клиент. С радостью примет. Он в конторе на Садовой обычно по понедельникам и четвергам бывает. meeting:
Не без уважения, ваш Вольдемар Абрамович
Угрюмый
Expert
Expert
Сообщения: 1071
Зарегистрирован: 02 июл 2006 22:54

ул. Колхозная, д. 20

Сообщение Угрюмый »

Aviator писал(а):Угрюмый Мне их озвучивали не для того, чтобы я их озвучивал тебе. Там ничего криминального, просто я ж не трепло. :naughty:
Во-первых, откуда тебе знать, для чего их тебе озвучивали. Этот вопрос находится в компетенции того, кто озвучивает, а не того, кому озвучивают. ;)
А во-вторых, раз уж сказал "А", говори и "Б" тогда уже. А уж криминал там или нет - каждый решит для себя сам. :)
По-моему это всё-таки стандартное желание "понадкусывать" побольше с целью максимизации сиюминутной прибыли. :mrgreen:
Ну несолидно строить половинку дома и убеждать всех, что это здорово и они её сдадут очень быстро, а рядом ещё несколько лет "почти не будет шума и грязи". Несерьёзный подход.
Аватара пользователя
Swedly
Advanced Member
Advanced Member
Сообщения: 281
Зарегистрирован: 26 июн 2012 08:08

ул. Колхозная, д. 20

Сообщение Swedly »

Сейчас уже говорят, что разрешение на строительство ждут в середине марта, а в конце марта - начале апреля начнут собирать деньги.
А пока неспешно работают - рабочих, вроде немного, но даже в выходные что-то делают.
Ал
New member
New member
Сообщения: 25
Зарегистрирован: 18 фев 2014 22:06

ул. Колхозная, д. 20

Сообщение Ал »

Всем привет.
сейчас стоимость квадратного метра маленькой однушки = 69 тыр
Каково ваше мнение, перед госкомиссией стоимость около 90 тыс руб - реальна для такой квартиры?

и насколько велика вероятность того, что уважаемый Диском доведет строительство до госкомиссии?

Заранее спасибо.
Аватара пользователя
Swedly
Advanced Member
Advanced Member
Сообщения: 281
Зарегистрирован: 26 июн 2012 08:08

ул. Колхозная, д. 20

Сообщение Swedly »

Сегодня позвонили из Риакома и сказали, что дом будут сдавать не в две очереди, а целиком: сдача - 4-й квартал 2015-го, ключи - начало 2016-го года.
Деньги будут собирать с конца марта, после получения разрешения на строительство, как и обещали, но можно принести сейчас и получить скидку 5% от цены указанной в договоре бронирования. :lol:
Аватара пользователя
Mikhail_Podolsk
Advanced Member
Advanced Member
Сообщения: 263
Зарегистрирован: 28 окт 2013 13:50

ул. Колхозная, д. 20

Сообщение Mikhail_Podolsk »

Swedly писал(а):Сегодня позвонили из Риакома и сказали, что дом будут сдавать не в две очереди, а целиком: сдача - 4-й квартал 2015-го, ключи - начало 2016-го года.
Деньги будут собирать с конца марта, после получения разрешения на строительство, как и обещали, но можно принести сейчас и получить скидку 5% от цены указанной в договоре бронирования. :lol:
Вы планируете получать скидку?
Аватара пользователя
Swedly
Advanced Member
Advanced Member
Сообщения: 281
Зарегистрирован: 26 июн 2012 08:08

ул. Колхозная, д. 20

Сообщение Swedly »

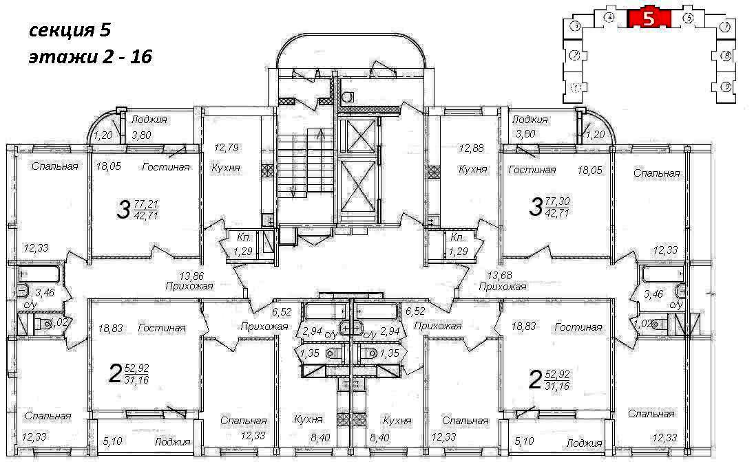
На сайте Риакома выложили новые планировки. Что странно: раньше по этим планировкам дом был переменной этажности (17-19 этажей), а сейчас - все секции 16 этажей.
Вложения
Новая планировка
Новая планировка
Старая планировка
Старая планировка
Угрюмый
Expert
Expert
Сообщения: 1071
Зарегистрирован: 02 июл 2006 22:54

ул. Колхозная, д. 20

Сообщение Угрюмый »

16 этажей - это лучше, чем 19. Планировки вроде те же, т.к. разделить санузел и самому можно.
Лучше бы они нашли в себе силы строить сразу весь дом, а не по половинкам
Mishiko
Advanced Member
Advanced Member
Сообщения: 406
Зарегистрирован: 13 окт 2009 22:10

ул. Колхозная, д. 20

Сообщение Mishiko »

Угрюмый
там проблемо. они старые дома снести не могут. На сайте администрации есть обращение и ответ на него:

Вопрос: По улице Колхозная есть дом №30, который выселили еще летом 2013 года, и он теперь стоит как дом-призрак. Мимо него в темное время суток страшно ходить, отсутствует уличное освещение. Местные жители из него превратили в помойку, а бомжи - место для посиделок. Перед Новым годом в нем кто-то устроил пожар. Вокруг него уже началось строительство нового дома, а его не сносят. Пожалуйста, примите меры по его сносу. Спасибо!!! Рядом с этим домом есть здание бывшего магазина. По вечерам его растаскивают на стройматериалы. Его тоже не сносят. Что с ним будет?

Ответ: По информации инвестора застройщика ООО «Диском» в настоящее время ведется работа по оформлению документов по перерегистрации жителей, из жилых домов №№ 30, 32 по ул. Колхозная, после снятия с учета граждан проживающих в данных домах, строения будут снесены.

Двухэтажное здание по адресу: г. Подольск, ул. Колхозная, д. 28, где был размещен магазин, находится на развиваемой территории микрорайона «Красная горка», но не входит в перечень жилых домов попадающих под переселение. Данное строение с прилегающим земельным участком находится в частной собственности ООО «Нико».

В настоящее время инвестор-застройщик ООО «Диском» проводит переговоры по выкупу данного строения и земельного участка, для освобождения территории под строительство многоэтажного, 6-ти секционного, многоквартирного жилого дома.

Планируемый срок сноса домов-февраль 2014 года.
Ответить

Вернуться в «Новостройки города»